Version: 8.24.0Navigation überspringen
Realogis Immobilien Berlin GmbH
Mietkosten auf Anfrage
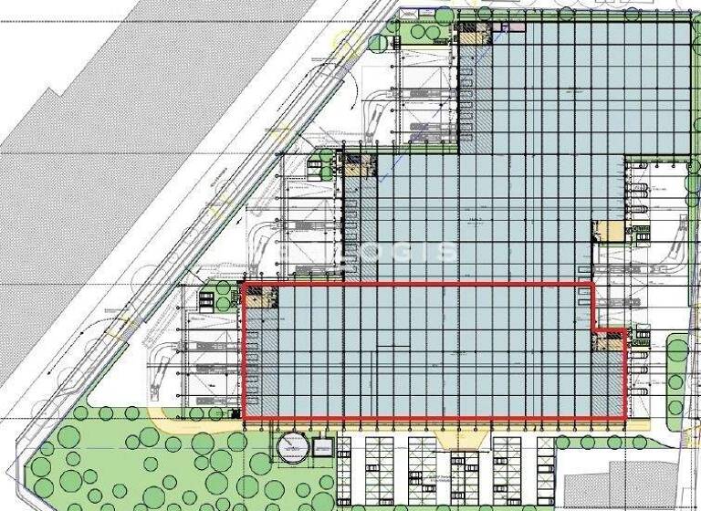
6.559 m² Lagerfläche  •  teilbar ab 4.124 m²

Halle/Industriefläche zur Miete • provisionsfrei
Mietkosten auf Anfrage
6.559 m² Lagerfläche  •  teilbar ab 4.124 m²

Neubau für Lagerung und Logistik

Ab Q4/2026 - Q1/2027 stehen rund 6.559 m² Hallenfläche zzgl. Büro- und Mezzanineflächen zur Verfügung.

Merkmale

  • Bezug: Q4 2026/Q1 2027
  • 99 Stellplätze
  • Laderampe
  • LKW-Zufahrt
  • Raumaufteilung flexibel
  • Bodenbelag: Estrich
- Deckenhöhe: ca. 10 m UKB
- Andienung : ebenerdige und Rampentore
- Bodentraglast: ca. 5 t/m²
- Heizung: vorhanden
- Stellplätze: vorhanden
- Mieterwünsche werden berücksichtigt
- Brandmeldeanlage
- LED-Beleuchtung

Grundrisse

Grundrisse
1 / 1

Realisiere Dein Projekt

Bausubstanz und Energie

Der Anbieter hat keine Informationen zu Energieverbrauch oder Zustand der Immobilie bereit gestellt.
MediumRectangleTop

Mietkosten

Miete auf Anfrage
Provision für Mieter
provisionsfrei; Dieses Angebot unterbreiten wir Ihnen ---provisionsfrei für den Mieter---
Dieses Angebot unterbreiten wir Ihnen ---provisionsfrei für den Mieter---
Kaution
keine Angabe

Lage

address-icon
WeißenseeBerlin (13088)
Der Anbieter hat die genaue Adresse nicht freigegeben
Diese Liegenschaft befindet sich im Nordosten von Berlin. In direkter Nähe befinden sich die Anschlüsse zu den öffentlichen Verkehrsmitteln. Ebenso unweit entfernt befindet sich die Bundesstraße in Richtung Bernau.

Weitere Informationen

Sonstiges Sehr geehrter Interessent,
bitte beachten Sie, dass wir folgende Anfragen für Grundstücke und Bestandsflächen nicht bearbeiten können:
- Sportstätten und Fitness-Studios
- Veranstaltungen und Events (d.h. Hochzeiten, Filmdrehs, Konzerte etc.)
- religiöse Einrichtungen
- Wohnzwecke
Die Eigentümer der von uns vermarkteten Immobilien wünschen ausschließlich eine Nutzung für Lager, Logistik und Produktion.

-------------------------------------------------------------------------------------------------------------------------------------
EnEV 2014: Kein Energieausweis vorhanden/ in Vorbereitung.
-------------------------------------------------------------------------------------------------------------------------------------

Dieses Angebot unterbreiten wir Ihnen --- provisionsfrei für den Mieter ---.
Mietpreise verstehen sich als Nettomietpreise, jeweils zzgl. Betriebskosten und der gesetzlich geltenden MwSt. Kaufpreise verstehen sich als Nettokaufpreise, zzgl. der gesetzlich geltenden MwSt.
Bei den Flächengrößen handelt es sich um ca.-Angaben.
Wir bitten um Beachtung, dass wir die Angaben in diesem Exposé vom Vermieter/Verkäufer erhalten haben und hierfür keine Haftung übernehmen können. Stichworte Stellplatz vorhanden, Lagerfläche: 6.559,00 m², Nutzfläche: 6.559,00 m², Gesamtfläche: 6.559,00 m², Hallenhöhe: 10,00 m

Weitere Services

Lust auf eine Besichtigung?
Eine Frage zur Immobilie?
Nachricht hinzufügen
Mit der Nutzung der oben angegebenen Telefonnummer oder durch Klicken auf „Kontaktieren“ akzeptierst Du die Allgemeinen Nutzungsbedingungen, denen Du jederzeit widersprechen kannst. Weitere Informationen zum Datenschutz

Über den Anbieter

Wilhelm-Kabus-Str. 77, 10829 Berlin
partner badge
Partnerschaft
Herr Miguel Schwarz
Herr Miguel SchwarzDein Kontakt
Online-ID: 2hu8s58
Referenznummer: 1029709
Realogis Immobilien Berlin GmbH
title
Realogis Immobilien Berlin GmbH
Nachricht hinzufügen
Mit der Nutzung der oben angegebenen Telefonnummer oder durch Klicken auf „Kontaktieren“ akzeptierst Du die Allgemeinen Nutzungsbedingungen, denen Du jederzeit widersprechen kannst. Weitere Informationen zum Datenschutz
MediumRectangleTop
MediumRectangleBottom
MediumRectangleTop
Wie zufrieden bist du mit dieser Seite (nicht mit der Immobilie selbst)?