Version: 8.25.1Navigation überspringen
team19 Immobilien GmbH
997 €
2 Zimmer  •  49,5 m²  •  6. Geschoss

Wohnung zur Miete
997 €
2 Zimmer  •  49,5 m²  •  6. Geschoss

Charmante 2-Zimmer-Wohnung nahe Mariahilfer Straße - Ihr neues Zuhause in 1070 Wien!

Urban wohnen in 1070 Wien - kompakt, modern und perfekt angebunden

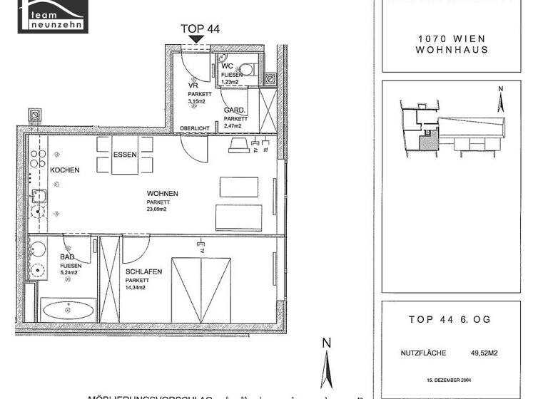
Diese gut geschnittene 2-Zimmer-Wohnung im beliebten 7. Wiener Gemeindebezirk Neubau überzeugt durch ihre durchdachte Raumaufteilung und eine angenehme Wohnatmosphäre auf rund 49 m² Wohnfläche. Im 6. Liftstock gelegen, bietet sie ein ideales Zuhause für Singles oder Paare, die das urbane Leben in einer der gefragtesten Lagen Wiens genießen möchten.

Bereits beim Betreten der Wohnung gelangen Sie über den Vorraum direkt in die helle Wohnküche, die mit einer modernen Einbauküche ausgestattet ist und ausreichend Platz für Wohnen und Essen bietet. Von hier aus erschließen sich sowohl das ruhige Schlafzimmer als auch das Badezimmer mit Badewanne, wodurch eine angenehme und praktische Raumstruktur entsteht. Ein separates WC, ebenfalls vom Vorraum aus begehbar, sorgt für zusätzlichen Komfort im Alltag.

Dank der Ost-Ausrichtung profitieren Sie von angenehmem Morgenlicht, das die Räume freundlich und einladend wirken lässt. Ein Kellerabteil bietet zusätzlichen Stauraum und rundet das Angebot sinnvoll ab.

 

Bitte beachten Sie, dass es sich bei den verwendeten Bildern um Musterfotos handelt. Die Wohnung wird jedoch gleichwertig ausgestattet übergeben. Die Wohnung ist ab sofort beziehbar und wird auf 5 Jahre befristet vermietet.

 

Eckdaten:

*
2 Zimmer aufgeteilt auf ca. 49 m² Wohnfläche

*
6. Liftstock

*
Wohnküche mit Einbauküche

*
separates Schlafzimmer

*
Badezimmer mit Badewanne

*
separates WC

*
Ost-Ausrichtung

*
ab sofort beziehbar & 5 Jahre befristet

 

Fazit: "Eine kompakte, durchdacht geschnittene Wohnung in absoluter Top-Lage - ideal für alle, die urbanes Wohnen mit bester Infrastruktur und perfekter Anbindung verbinden möchten."

Wir weisen höflichst darauf hin, dass es sich bei den Fotos anbei um Musterfotos handelt. Die Wohnung wird gleich oder gleichwertig übergeben.

 

Mietkosten:

Der Mietpreis für die Wohnung beläuft sich auf € 1.214,35 (inkl. BK, USt.) 

Akonto Heizung: € 41,59

Akonto Warmwasser: € 19,06

 

Nebenkosten:

Kaution: 3 Bruttomonatsmieten

Mietvertragserrichtung: € 155,00 inkl. USt.

 

Infrastruktur:

Die Wohnung befindet sich in ausgezeichneter Lage in der Kaiserstraße 68 im 7. Bezirk Neubau, einer der lebendigsten und begehrtesten Wohngegenden Wiens. Die unmittelbare Umgebung überzeugt durch eine erstklassige Infrastruktur: Zahlreiche Supermärkte, Bäckereien, Apotheken sowie vielfältige Cafés, Restaurants und Bars befinden sich direkt vor der Haustüre. Die nur wenige Gehminuten entfernte Mariahilfer Straße bietet zudem ein umfangreiches Angebot an Einkaufsmöglichkeiten, Boutiquen und Freizeitangeboten.

Die öffentliche Verkehrsanbindung ist hervorragend: Die U-Bahn-Linie U6 (Station Thaliastraße) sowie die U3 (Station Zieglergasse oder Neubaugasse) sind rasch erreichbar und verbinden Sie schnell mit der Innenstadt und anderen Bezirken. Zusätzlich sorgen die Straßenbahnlinien 5 und 49 sowie die Buslinie 48A für eine optimale Anbindung im gesamten Stadtgebiet.

 

Energieausweis:

Der Heizwärmebedarf beträgt 36,20 kWh/m²a, welcher der Klasse B entspricht.

 

 

Für Fragen bzw. Besichtigungen steht Ihnen Frau Sylwia Zagula sehr gerne unter 0676 852 243 502 oder via E-Mail unter zagula@teamneunzehn.at zur Verfügung.

 

Wir weisen darauf hin, dass zwischen dem Vermittler und dem zu vermittelnden Dritten ein familiäres oder wirtschaftliches Naheverhältnis besteht.

Der Immobilienmakler erklärt, dass er - entgegen dem in der Immobilienwirtschaft üblichen Geschäftsgebrauch des Doppelmaklers - einseitig nur für den Vermieter tätig ist.

"Leben braucht Raum" * T19-RE Real Estate GmbH & Co KG * www.teamneunzehn.at [https://www.teamneunzehn.at]

Doppelmakler

Wir werden als Immobilienmakler kraft bestehenden Geschäftsgebrauchs als Doppelmakler tätig und haben sohin beide Seiten des Vertrages (Verkäufer-Käufer, Vermieter-Mieter) zu unterstützen.

Wirtschaftliches Naheverhältnis

Es wird bekannt gegeben, dass folgendes wirtschaftliches Naheverhältnis zwischen der teamneunzehn-Gruppe und dem Verkäufer/der vermietenden Partei besteht: ständige und dauerhafte Beauftragung mit der Vermittlung des bestehenden Immobilienportfolios

Haftungserklärung zum Inserat

Irrtum und Änderungen vorbehalten! Sofern es sich bei Bildern um Visualisierungen handelt, können Abänderungen zur tatsächlichen Ausführung resultieren. Wir weisen ausdrücklich darauf hin, dass das auf Fotos oder Visualisierungen ersichtliche Mobiliar bzw. Inventar nicht Bestandteil des inserierten Preises ist.

 

 

Infrastruktur / Entfernungen

Gesundheit
Arzt <100m
Apotheke <50m
Klinik <225m
Krankenhaus <1.350m

Kinder & Schulen
Schule <200m
Kindergarten <325m
Universität <500m
Höhere Schule <250m

Nahversorgung
Supermarkt <50m
Bäckerei <225m
Einkaufszentrum <400m

Sonstige
Geldautomat <450m
Bank <450m
Post <475m
Polizei <275m

Verkehr
Bus <50m
U-Bahn <250m
Straßenbahn <50m
Bahnhof <250m
Autobahnanschluss <4.300m

Angaben Entfernung Luftlinie / Quelle: OpenStreetMap

Merkmale

  • Bezug: ab sofort
  • 6. Geschoss
  • Einbauküche, offene Küche
  • Personenaufzug
  • Badewanne
  • Bodenbelag: Fliesen, Parkett

Grundrisse

Grundrisse
1 / 1

Realisiere Dein Projekt

Bausubstanz und Energie

Heizwärmebedarf (HWB)

B

Gesamtenergieeffizienz (fGEE)

B
  • Baujahr2004
  • Zustand der ImmobilieNeubau, Gepflegt
  • HeizungsartZentralheizung
  • EnergieträgerGas
MediumRectangleTop

Mietkosten

Gesamtmiete
1.214,35 €
Nettokaltmiete
22,29 €/m²
997,48 €
Betriebskosten
106,47 €
Kaution
3 Bruttomonatsmieten
Weitere Preisinformationen
Nettokaltmiete: 997,48 EUR

Lage

address-icon
Kaiserstraße 68Wien (1070)
Burggasse, Stadthalle, Lerchenfelder Gürtel, Kandlgasse, Mariahilfer Straße

Weitere Informationen

Stichworte Nutzfläche: 49,52 m², Gesamtfläche: 49,52 m², Anzahl der Badezimmer: 1, Anzahl der separaten WCs: 1, Bundesland: Wien, Wohnungsnr.: 44 TV: Kabelanschluss, DVBT

Weitere Services

Lust auf eine Besichtigung?
Eine Frage zur Immobilie?
Mit einer persönlichen Nachricht hast du bessere Chancen auf eine Antwort.
Mit der Nutzung der oben angegebenen Telefonnummer oder durch Klicken auf „Kontaktieren“ akzeptierst Du die Allgemeinen Nutzungsbedingungen, denen Du jederzeit widersprechen kannst. Weitere Informationen zum Datenschutz

Über den Anbieter

Handelskai 94-96/21. Stock, 1200 BRIGITTENAU
partner badge
Partnerschaft
Frau Sylwia ZagulaDein Kontakt
Online-ID: 26N7DL7PPHYB
Referenznummer: OBGC202604062114383573a38fc8b2d
team19 Immobilien GmbH
team19 Immobilien GmbH
Mit einer persönlichen Nachricht hast du bessere Chancen auf eine Antwort.
Mit der Nutzung der oben angegebenen Telefonnummer oder durch Klicken auf „Kontaktieren“ akzeptierst Du die Allgemeinen Nutzungsbedingungen, denen Du jederzeit widersprechen kannst. Weitere Informationen zum Datenschutz
MediumRectangleTop
MediumRectangleBottom
MediumRectangleTop
Wie zufrieden bist du mit dieser Seite (nicht mit der Immobilie selbst)?