Version: 8.24.0Navigation überspringen
ohne-makler.net - Immobilien selbst vermarkten
570.000 €
6 Zimmer  •  200 m²  •  713 m² Grundstück

Einfamilienhaus zum Kauf • provisionsfrei
570000 €
2.850 €/m²
6 Zimmer  •  200 m²  •  713 m² Grundstück

Einfamilienhaus mit Einliegerwohnung in Görwihl-Niederwihl

Dieses einladende Einfamilienhaus bietet mit ca. 200 m² Wohnfläche und einem großzügigen Grundstück von 713 m² ideale Voraussetzungen für komfortables Wohnen. Die Immobilie befindet sich in ruhiger Lage von Görwihl-Niederwihl und überzeugt durch eine durchdachte Raumaufteilung sowie vielfältige Nutzungsmöglichkeiten - perfekt für Familien, Mehrgenerationenwohnen oder als entspannte Sommerresidenz.

Ein besonderes Highlight ist die separat zugängliche Einliegerwohnung, die sich hervorragend als Ferienwohnung, Gästebereich oder zur langfristigen Vermietung eignet. Dadurch profitieren Sie von zusätzlicher Flexibilität und attraktiven Nutzungsperspektiven.

Das Grundstück liegt in attraktiver Hanglage und erstreckt sich über zwei Ebenen, was dem Außenbereich eine besondere Struktur und Großzügigkeit verleiht. Die obere Ebene bietet sich ideal für Terrasse, Garten oder gemütliche Sitzbereiche an, während die untere Ebene zusätzlichen Platz für Freizeit, Spiel oder individuelle Gestaltungsideen schafft. So entsteht ein abwechslungsreicher Außenbereich mit viel Potenzial.

Auf insgesamt drei Etagen erwarten Sie 6 gut geschnittene Zimmer sowie 3 Badezimmer, die hohen Wohnkomfort bieten. Ein Gäste-WC ergänzt das Raumangebot sinnvoll. Ein Kellerraum schafft zusätzlichen Stauraum und erweitert die Nutzfläche praktisch.

Die Innenausstattung ist gepflegt und bietet eine solide Basis, um eigene Vorstellungen und Modernisierungswünsche umzusetzen. Große Fenster sorgen für helle, freundliche Räume und eine angenehme Wohnatmosphäre.

Die Übergabe ist ab sofort möglich.

Ein Haus mit viel Charme, Platz und Potenzial - ideal für alle, die ein vielseitiges Zuhause mit zusätzlicher Vermietungsoption suchen.

Merkmale

  • Bezug: nach Absprache
  • 713 m² Grundstück
  • Einbauküche
  • Keller
  • Garage, 3 Außen-Stellplätze
  • Balkon
  • Garten
  • Terrasse

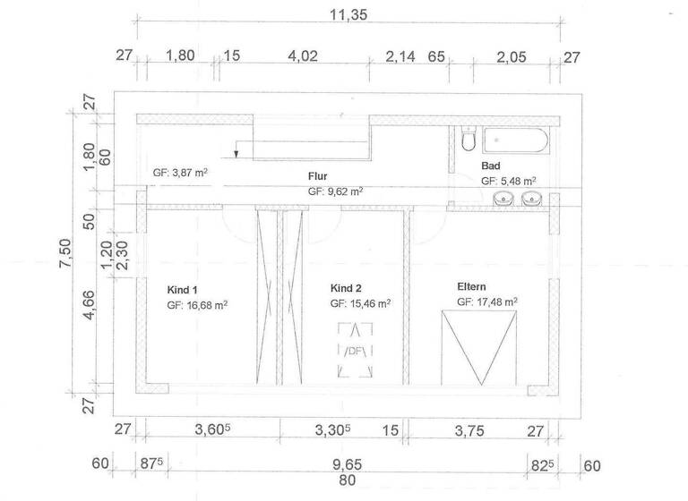
Grundrisse

Grundrisse
1 / 3

Realisiere Dein Projekt

Bausubstanz und Energie

Energieausweis

D
  • Baujahr2005
  • Zustand der ImmobilieGepflegt
  • HeizungsartFußbodenheizung
  • EnergieträgerElektro
MediumRectangleTop

Preisdetails

Kaufpreis
570000 €
2.850 €/m²
Provision für Käufer
provisionsfrei; keine Provision, courtagefrei
Weitere Preisinformationen
3 Stellplätze
1 Garagenstellplatz
Geschätzte Gesamtkosten
609.900 €1
Kaufpreis
570.000 €
Notarkosten (1,5%)
8.550 €
Grunderwerbsteuer (5%)
28.500 €
Grundbucheintrag (0,5%)
2.850 €
1Der angezeigte Wert ist eine automatisch berechnete Schätzung von immowelt.
2Bei den Angaben handelt es sich um ortsübliche Werte. Individuelle Kosten können abweichen.

Lage

address-icon
Niederwihl 95NiederwihlGörwihl (79733)
Görwihl ist eine ländlich geprägte Gemeinde im Landkreis Waldshut und bietet eine ruhige, naturnahe Wohnumgebung mit hohem Erholungswert. Die umliegende Landschaft lädt zu vielfältigen Freizeitaktivitäten wie Wandern, Radfahren und ausgedehnten Spaziergängen ein.

Die Nahversorgung ist durch Geschäfte des täglichen Bedarfs in der näheren Umgebung gewährleistet. Zudem besteht eine gute Anbindung an den öffentlichen Nahverkehr: Lokale Buslinien verbinden Görwihl zuverlässig mit den umliegenden Ortschaften und regionalen Zentren.

Ein besonderer Vorteil ist die Nähe zur Schweizer Grenze, die sich in nur etwa 8 km Entfernung befindet. Dadurch profitieren Sie von kurzen Wegen in die Schweiz - ideal für Berufspendler oder Freizeitaktivitäten im Nachbarland.
Infrastruktur (im Umkreis von 5 km):
Öffentliche Verkehrsmittel

Weitere Informationen

Sonstiges Heizungsart: Fußbodenheizung
Energieträger: Strom


ohne-makler (OM) ist weder Anbieter noch Vermittler der Immobilie. OM betreibt eine Plattform für Immobilieneigentümer, die unter anderem die gleichzeitige Veröffentlichung einzelner Inserate auf mehreren Immobilienportalen ermöglicht. Die Inhalte dieser Inserate werden ausschließlich von Dritten verantwortet. Für die Richtigkeit, Vollständigkeit oder Rechtmäßigkeit der Angaben übernimmt OM keine Haftung. Hinweise auf mögliche Rechtsverstöße können jederzeit gemeldet werden und werden nach Prüfung umgehend bearbeitet. Stichworte Garage vorhanden, Stellplatz vorhanden, Nutzfläche: 37,00 m², Anzahl der Schlafzimmer: 3, Anzahl der Badezimmer: 3, Anzahl der separaten WCs: 1, Anzahl Balkone: 1, Anzahl Terrassen: 1, Bundesland: Baden-Württemberg, 3 Etagen

Weitere Services

Lust auf eine Besichtigung?
Eine Frage zur Immobilie?
Nachricht hinzufügen
Mit der Nutzung der oben angegebenen Telefonnummer oder durch Klicken auf „Kontaktieren“ akzeptierst Du die Allgemeinen Nutzungsbedingungen, denen Du jederzeit widersprechen kannst. Weitere Informationen zum Datenschutz

Über den Anbieter

Humboldtstr. 25 A, 21509 Glinde
partner badge
Partnerschaft
Privat vom EigentümerDein Kontakt
Keine Telefonnummer hinterlegt
Keine Telefonnummer hinterlegt
Online-ID: 2nba35g
Referenznummer: 427696
ohne-makler.net - Immobilien selbst vermarkten
ohne-makler.net - Immobilien selbst vermarkten
Nachricht hinzufügen
Mit der Nutzung der oben angegebenen Telefonnummer oder durch Klicken auf „Kontaktieren“ akzeptierst Du die Allgemeinen Nutzungsbedingungen, denen Du jederzeit widersprechen kannst. Weitere Informationen zum Datenschutz
MediumRectangleTop
MediumRectangleBottom
MediumRectangleTop
Wie zufrieden bist du mit dieser Seite (nicht mit der Immobilie selbst)?