Version: 8.22.6Navigation überspringen
ICB GmbH Immobilien Consulting Berlin
624.000 €
3 Zimmer  •  89,2 m²  •  4. Geschoss

Wohnung zum Kauf
624000 €
6.996 €/m²
3 Zimmer  •  89,2 m²  •  4. Geschoss

Erste Reihe am Weinbergspark: sanierte Altbauwohnung - vermietet

Parkpeak Weinbergspark. Das "Flat Iron" an der Zionskirche.
Die zugespitzte Architektur erinnert an das berühmte Vorbild in New York in exponierter City-Lage. Doch was Ihnen hier geboten wird, weist überaus mehr Lebensqualität auf als sein bekannter Überseezwilling.
Die Lage in erster Reihe direkt am Weinbergspark und in Nachbarschaft zum Zionskirchplatz machen das Projekt PARKPEAK nicht nur architektonisch zum Unikat. Zudem ist es dem erfahrenen Architekten- und Bauherrnteam in Absprache mit dem Stadtplanungsamt gelungen, Loggien in der zum Park hin gelegenen Fassade zu realisieren, die den Blick weit hinaus auf den Park und die Berliner Skyline öffnen und den Wohnwert deutlich erhöhen.
Das Objekt wurde zwischen 2021 und 2023 aufwendig saniert. Die Errichtung einer neuen Aufzugsanlage, der Neubau einer Penthouse-Wohnung, neue Stränge für Wasser, Abwasser und Elektro sowie neue Balkone und Loggien sind die Hauptmerkmale der aufwendigen Baumaßnahmen. Neue Isolierglas-Holzfenster im historischen Stil, die Renovierung des Foyers und des Treppenhauses sowie die Neugestaltung der Fassaden in Abstimmung mit der Stadtplanung vervollständigen das attraktive Gesamtbild.


Die in dieser Präsentation abgebildeten Fotos sind aktuelle Originalaufnahmen kurz vor Fertigstellung des Objektes. Zum Zeitpunkt der Erstellung konnten nicht alle Wohnungstypen abgebildet werden. Die Wohnungen sind jedoch in Ausstattung und Qualität vergleichbar.
Insgesamt stehen 6 sanierte Altbauwohnungen, 2 vermietete Altbauwohnungen, 2 Gewerbeeinheiten und 1 Penthouse-Neubau zum Verkauf.

Merkmale

  • Bezug: VERMIETET
  • vermietet
  • 4. Geschoss
  • Personenaufzug
  • Kelleranteil
  • Balkon
  • Bodenbelag: Parkett
weiß gespachtelte Wände (Qualitätsstufe Q2)
Wandflächen im abgedämpften grauweiß
Decke in perlweiß
Sockelleiste, glatt, weiß, 8 cm
Eichendielen, weiß gekalkt
Türen, weiß mit verdeckten Türbändern
Holzisolierglasfenster mit Schallschutz im historischen Stil (straßenseitig)
Holzisolierglasfenster mit Schallschutz im modernen Stil (parkseitig)
Edelstahlgarnituren für Fenster und Türen
Edelstahlheizkörper in Anthrazitoptik (sanierter Altbau)
Edelstahlschalterprogramm von Busch Jaeger
Smart Home mit Bedienungspanel (alles steuerbar)
Neue Hofbalkone bzw. Loggien zur Parkseite
Premium-Bäder mit Markenobjekten
gut dimensionierte Raumgrößen
neue Aufzugsanlage
neue Innenhofgestaltung
Gegensprechanlage
Keller

Sanierung Wohnungen 2023
Sanierung Gemeinschaftseigentum 2023
vermietet

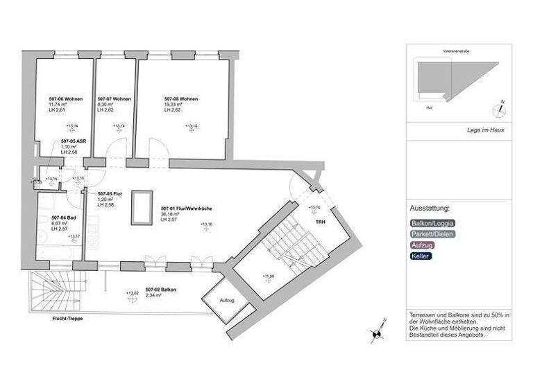
Grundrisse

Grundrisse
1 / 1

Realisiere Dein Projekt

Bausubstanz und Energie

Energieausweis

D
  • Baujahr1900
  • Zustand der ImmobilieAltbau (bis 1945), renoviert / saniert
  • HeizungsartZentralheizung
MediumRectangleTop

Preisdetails

Kaufpreis
624000 €
6.995,52 €/m²
Hausgeld
397 €
Provision für Käufer
3,57% Käufercourtage inkl. MwSt
Geschätzte Gesamtkosten
696.197 €1
Kaufpreis
624.000 €
Notarkosten (1,5%)
9.360 €
Grunderwerbsteuer (6%)
37.440 €
Provision für Käufer (3,57%)
22.277 €
Grundbucheintrag (0,5%)
3.120 €
1Der angezeigte Wert ist eine automatisch berechnete Schätzung von immowelt.
2Bei den Angaben handelt es sich um ortsübliche Werte. Individuelle Kosten können abweichen.

Lage

address-icon
Veteranenstr. 14MitteBerlin (10119)
Logenplatz am Weinbergspark/Ecke Zionskirche.
Die Mikrolage rund um die Veteranenstraße bietet Ihnen im direkten Umfeld ein buntes Kaleidoskop an Möglichkeiten und vereint, wie kaum ein zweiter Kiez in Berlin, Lebenslust mit Großstadtromantik mitten im Zentrum der Metropole. Die Wege, ganz gleich wohin, sind kurz - extrem kurz. Am schnellsten sind Sie aber im Weinbergspark, denn Sie wohnen direkt am Parkrand in erster Reihe. Ob Park, Restaurant, Café oder Bäcker - hier erbummeln Sie sich gastronomische, kulturelle und Freizeit-Erlebnisse in verschwenderischer Vielfalt.
Ein Blick auf die Entfernungskarte lässt die Vielfalt, die Sie erwartet, bereits erahnen. Hier zu wohnen bedeutet, das Leben in vollen Zügen genießen zu können.

Weitere Informationen

Mieteinnahmen NKM 608,41 € pro Monat Stichworte Gesamtfläche: 89,19 m², vermietbare Fläche: 89,19 m², Anzahl der Schlafzimmer: 2, Anzahl der Badezimmer: 1, Anzahl Balkone: 1, Anzahl der Wohn-Schlafzimmer: 3, 5 Etagen, Wohnungsnr.: VetK7n, modernisiert: 2023

Weitere Services

Lust auf eine Besichtigung?
Eine Frage zur Immobilie?
Nachricht hinzufügen
Mit der Nutzung der oben angegebenen Telefonnummer oder durch Klicken auf „Kontaktieren“ akzeptierst Du die Allgemeinen Nutzungsbedingungen, denen Du jederzeit widersprechen kannst. Weitere Informationen zum Datenschutz

Über den Anbieter

Niebuhrstraße 72, 10629 Berlin
partner badge
Partnerschaft
Team ICB Berlin
Team ICB BerlinDein Kontakt

Weitere Unterlagen

Online-ID: 2nrvg5k
Referenznummer: VetK7n
ICB GmbH Immobilien Consulting Berlin
title
ICB GmbH Immobilien Consulting Berlin
Nachricht hinzufügen
Mit der Nutzung der oben angegebenen Telefonnummer oder durch Klicken auf „Kontaktieren“ akzeptierst Du die Allgemeinen Nutzungsbedingungen, denen Du jederzeit widersprechen kannst. Weitere Informationen zum Datenschutz
MediumRectangleTop
MediumRectangleBottom
MediumRectangleTop
Wie zufrieden bist du mit dieser Seite (nicht mit der Immobilie selbst)?