
Immobilienverwaltung Schneider
Sven Schneider
Kontaktiere den Anbieter schriftlich, es ist keine Telefonnummer hinterlegt.
Preise & Kosten
Kaution
6.000,00
Provision für Mieter
provisionsfrei
Warum sehe ich diese Anzeige? – Du siehst diese Anzeige basierend auf Ihrer Navigation auf unserer Website und den Suchkriterien, die du verwendet hast.
Lage
Die Lage in Hanau, Vor der Kinzigbrücke, bietet nicht nur eine hervorragende Anbindung an die öffentlichen Verkehrsmittel sowie eine schnelle Erreichbarkeit der Innenstadt, vielmehr garantiert die Fläche auch maximale Aufmerksamkeit durch die stark frequentierte B45 und Frankfurter Landstraße.
Hanau ist bekannt für...
Büro-/Praxisfläche
Kategorie
Bürogebäude
Baujahr
2010
Bezug
01.01.2026
Geschoss
1. Geschoss
Energie & Heizung
Warum sehe ich diese Anzeige? – Du siehst diese Anzeige basierend auf Ihrer Navigation auf unserer Website und den Suchkriterien, die du verwendet hast.
Wärme
Energieausweistyp
Bedarfsausweis
Gebäudetyp
Nicht-Wohngebäude
Baujahr laut Energieausweis
2003
Wesentliche Energieträger
Gas
Endenergiebedarf (Wärme)
133,00 kWh/(m²·a)
Weitere Energiedaten
Energieträger
Gas
Details
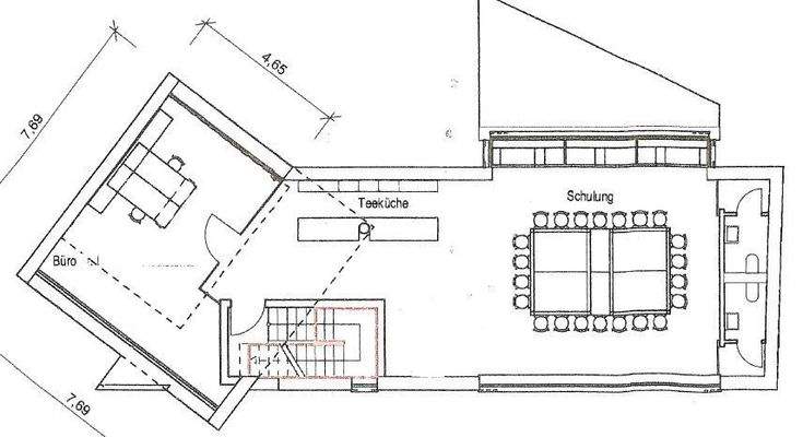
Objektbeschreibung
Diese außergewöhnliche Immobilie vereint repräsentatives Arbeiten mit einzigartigen Möglichkeiten zur Außendarstellung. Auf insgesamt ca. 154 m² stehen Ihnen ein elegantes, abgetrenntes Büro (ca. 30 m²) sowie ein großzügiger, lichtdurchfluteter Konferenz- und Präsentationsraum (ca. 115 m²) zur Verfügung. Die restlichen m²...
Ausstattung
Ausstattung & Highlights
- ca. 30 m² separates Chefbüro/Leitungsbüro
- ca. 115 m² offen gestaltete Fläche (Konferenzraum/Showroom/Atelier)
- komplette Glasfront mit hoher Außenwirkung
- repräsentative Architektur, stilvolles Ambiente
- zentrale Lage an stark frequentierter Straße
- sofort nutzbar und...
Weitere Informationen
Sonstiges
Die Büroeinheit ist ab sofort verfügbar. Dieses Objekt wird umsatzsteuerpflichtig vermietet.
Stichworte
2 Etagen
Sonstiges: EDV-Verkabelung
Anbieter der Immobilie
Immobilienverwaltung Schneider
Brüder-Grimm-Straße 17, 63450 Hanau
Sven Schneider
Dein Ansprechpartner
Kontaktiere den Anbieter schriftlich, es ist keine Telefonnummer hinterlegt.
Online-ID: 2lryt5l
Referenznummer: 159223
Finde Angebote wie dieses
Hier geht es zu unserem Impressum, den Allgemeinen Geschäftsbedingungen, den Hinweisen zum Datenschutz und nutzungsbasierter Online-Werbung.