Version: 8.24.0Navigation ĂĽberspringen
625 €
3 Zimmer  â€˘  75 m²  â€˘  frei ab sofort
Immowelt logo

Wohnung zur Miete • nur mit Wohnberechtigungsschein
625 €
3 Zimmer  â€˘  75 m²  â€˘  frei ab sofort

PreisTipp! familiengerecht! WBS

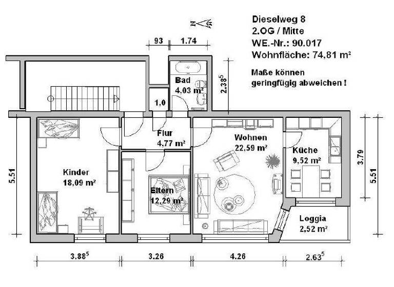
Die Wohnung befindet sich in der 2. Etage und ist mit einer Loggia in Westrichtung ausgestattet. Das Mehrfamilienhaus ist auf Grund der Lage und des gerringen Mietpreises ideal für Familien. Die großzügig geschnittene Wohnung ist komplett nach Süd-Westen mit großen Fenstern ausgerichtet. Das suggeriert in den Wintermonaten eine helle und warme Wohnung und in den Sommermonaten Entspannung. Ferner sind alle Fenster mit Rollläden ausgestattet, die zusätzlich vor Sonne und ungewollten Blicken schützen.

Zur Anmietung dieser preisgünstigen Wohnung benötigen Sie einen Wohnberechtigungsschein, den Sie bei der Stadt Minden beantragen können.

Merkmale

  • frei ab 01.08.2025 bis 31.12.9999
  • Kelleranteil
  • Garten
  • Bodenbelag: Kunststoff
Die familienfreundliche 3 Zimmer-Wohnung bietet genug Platz fĂĽr Ihre BedĂĽrfnisse. Vom Wohnzimmer geht es auf die Loggia in Westrichtung. Die KĂĽche ist groĂźzĂĽgig geschnitten und bietet Ihnen Platz fĂĽr einen Essbereich.

- die sonnige Loggia sorgt fĂĽr einen gehobenen Wohnstandard
- die Wohnräume sind mit Laminat ausgestattet
- Badezimmer mit Badewanne
- Abstellraum innerhalb der Wohnung
- es besteht die Möglichkeit einen Kellerraum zusätzlich anzumieten
- Waschkeller, Trockenraum sowie ein Fahrradkeller stehen im Kellergeschoss zur VerfĂĽgung

Grundrisse

Grundrisse
1 / 1

Realisiere Dein Projekt

Bausubstanz und Energie

Energieausweis

  • Baujahr1974
  • Zustand der ImmobilieNeubau
  • HeizungsartZentralheizung
  • EnergieträgerĂ–l
Immowelt logo

Mietkosten

Warmmiete
805 €
Kaltmiete
8,33 €/m²
625 €
Nebenkosten
180 €
Heizkosten
55 €
Kaution
1095 €

Lage

address-icon
Dieselweg 8, Innenstadt, Minden (32425)
Der Dieselweg liegt am nördlichen Grüngürtel der Stadt Nahe des Melittabads.

- der nächste Supermarkt ist in ca. 200m
- ein Kindergarten befindet sich nur eine StraĂźe in ca 100m
- ein Café in ca. 200m
- eine Bushaltestelle ist in 2 Minuten zu FuĂź zu erreichen
- Innenstadt erreichen Sie in ca. 3km

GenieĂźen Sie die Ruhe beim Spaziergehen am nahegelegenen Mittellandkanal.

Weitere Informationen

Sonstiges Energiekennwert: 205 kWh/(m²*a)
Energieausweistyp: Bedarfsausweis
Befeuerung/Energieträger: Öl
Baujahr: 1974
Heizungsart: Zentralheizung
Energieeffizienzklasse: E

Wir bieten Ihnen zusätzlich:
- Hausmeisterservice
- Unser Notdienst: Erreichbarkeit 365 Tage im Jahr, rund um die Uhr! Auf uns können Sie zählen!

Die Kaution beträgt 3 Nettokaltmieten.
Tierhaltung ist nach Absprache gestattet.

Ein Besichtigungstermin kann individuell unter (0571) 8885 595 vereinbart werden - oder Sie besuchen uns in unseren Geschäftsräumen in der Hahler Str. 34, 32427 Minden - setzen Sie sich auch gerne wegen weiterer Angebote mit uns in Verbindung!
Unsere Geschäftszeiten sind täglich von 9-18 Uhr, freitags von 9-14 Uhr und samstags von 10-15 Uhr.

Unsere aktuellen Angebote finden Sie auch unter www.Wohnhaus-Minden.de
Klicken Sie mal rein! Stichworte Bundesland: 05, 3 Etagen

Weitere Services

Lust auf eine Besichtigung?
Eine Frage zur Immobilie?
Nachricht hinzufĂĽgen
Mit der Nutzung der oben angegebenen Telefonnummer oder durch Klicken auf „Kontaktieren“ akzeptierst Du die Allgemeinen Nutzungsbedingungen, denen Du jederzeit widersprechen kannst. Weitere Informationen zum Datenschutz

Ăśber den Anbieter

Friedrichstr. 30, 10969 Berlin
partner badge
6 Jahre Partnerschaft
Herr Alexander-Constantin BrummDein Kontakt
Online-ID: 2l93n5x
Referenznummer: 1317
Berlinhaus Verwaltung GmbH
Berlinhaus Verwaltung GmbH
Bewertung: 4 von 5 Sternen
Nachricht hinzufĂĽgen
Mit der Nutzung der oben angegebenen Telefonnummer oder durch Klicken auf „Kontaktieren“ akzeptierst Du die Allgemeinen Nutzungsbedingungen, denen Du jederzeit widersprechen kannst. Weitere Informationen zum Datenschutz
Wie zufrieden bist du mit dieser Seite (nicht mit der Immobilie selbst)?