Version: 8.24.0Navigation ĂĽberspringen
16 €
4.507 m² BĂĽrofläche  â€˘  teilbar ab 97 m²

Bürofläche zur Miete • provisionsfrei
16 €
/m²
4.507 m² BĂĽrofläche  â€˘  teilbar ab 97 m²

Büroflächen im Palais am Zoo

Zur Vermietung steht das gesamte Bürogebäude. Vom EG bis zum 3. OG befinden sich unterschiedlich große Büroeinheiten, welche auch einzeln angemietet werden können. Im Untergeschoss befinden sich Lagerflächen.
Die Gesamtmietfläche des Gebäudes beträgt (inkl. Lagerflächen) ca. 4.507 m².

Die Mietflächen teilen sich wie folgt auf:
EG: 806 m², teilbar ab 104 m²
ZG: 435 m², teilbar ab 97 m²
1. OG: 948 m², teilbar ab 133 m²
2. OG: 933 m², teilbar ab 134 m²
3. OG: 900 m², teilbar ab 130 m²
UG: 485 m² (Lager)
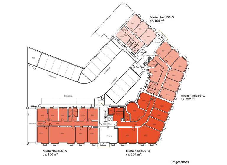
Im Erdgeschoss stehen stehen insgesamt ca. 806 m² Bürofläche zur
Verfügung. Diese können in bis zu vier Einheiten unterteilt werden, die
kleinste Teilfläche ist rd. 104 m² groß.
Im Untergeschoss stehen Lagerflächen zur Verfügung, die separat
angemietet werden können (UG ohne Abbildung).

Grundrisse

Grundrisse
1 / 2

Realisiere Dein Projekt

Bausubstanz und Energie

Energieausweis

Der Anbieter hat keine Daten zum Energieausweis hinterlegt.
  • Zustand der Immobilierenoviert / saniert
  • EnergieträgerFernwärme
MediumRectangleTop

Mietkosten

Monatliche Miete
16 €/m²
Provision fĂĽr Mieter
provisionsfrei
Kaution
keine Angabe

Lage

address-icon
Ettlinger Straße 12-14, Südweststadt, Karlsruhe (76137)
Das viergeschossige Bürogebäude befindet sich vis-a-vis zum Zoologischen Stadtgarten (Karlsruher Zoo) am Raiffeisenplatz und in fußläufiger Entfernung zum Hauptbahnhof. Es besteht eine sehr gute Anbindung an die Hauptverkehrsstraßen sowie an den ÖPNV.

Weitere Services

Lust auf eine Besichtigung?
Eine Frage zur Immobilie?
Nachricht hinzufĂĽgen
Mit der Nutzung der oben angegebenen Telefonnummer oder durch Klicken auf „Kontaktieren“ akzeptierst Du die Allgemeinen Nutzungsbedingungen, denen Du jederzeit widersprechen kannst. Weitere Informationen zum Datenschutz

Ăśber den Anbieter

gjh e. K.MaklerbĂĽro
Ahaweg 2, 76131 Karlsruhe
partner badge
Partnerschaft
Jonathan HeldtDein Kontakt
Online-ID: 2k8ku5s
Referenznummer: 157614009
gjh e. K.
Nachricht hinzufĂĽgen
Mit der Nutzung der oben angegebenen Telefonnummer oder durch Klicken auf „Kontaktieren“ akzeptierst Du die Allgemeinen Nutzungsbedingungen, denen Du jederzeit widersprechen kannst. Weitere Informationen zum Datenschutz
MediumRectangleTop
MediumRectangleBottom
MediumRectangleTop
Wie zufrieden bist du mit dieser Seite (nicht mit der Immobilie selbst)?