Version: 8.22.4Navigation überspringen
Decus Immobilien GmbH
776 €
2 Zimmer  •  51,5 m²  •  1. Geschoss

Wohnung zur Miete
775.55 €
Nettokaltmiete
2 Zimmer  •  51,5 m²  •  1. Geschoss

| BALKON | OSTSEITIG | 2 ZIMMER | BETREUTES WOHNEN | SENIORVITA | BRUNN AM GEBIRGE

Mehr Lebensqualität im Alter - Wohnen mit Wohlfühlfaktor!

Seniorenwohnen in zentraler Lage in Brunn am Gebirge. In der Leopold-Gattringer-Straße befindet sich eine barrierefreie Wohnhausanlage mit 27 Wohnungen im Bestand sowie 17 weitere Wohnungen in der Wiener Straße, welches mit Q3 2025 fertiggestellt ist.

Im Projekt SeniorVita wird ein sicherer Ort geschaffen, an dem ältere Menschen selbstbestimmt in Ihrer individuellen Wohnung leben können und gleichzeitig Unterstützung im Alltag durch die Betreuungspersonen vor Ort genießen dürfen.

Unsere MieterInnen bekommen Zugang zu einer Gemeinschaft, die sich gegenseitig stärkt und stützt. Durch die Betreuungspersonen werden Veranstaltungen zur körperlichen und geistigen Mobilisierung organisiert, welche die Geselligkeit im Haus stärkt. 

Die Kosten für das Betreuungspaket werden vom Vermieter übernommen, solange es keine öffentliche Förderung gibt. 

Hard Facts

* 44 Wohnungen 
* Größen von 35 - 109 m² 
* Balkon, Loggia, Terrasse, Garten
* Bezugsfertig ab sofort (Neubau mit Ende 2025)
* Zentrale Lage in Brunn am Gebirge

 

Für erfahrene Menschen, die in einer modernen, barrierefreien Wohnung leben und Ihren Alltag selbstständig gestalten möchten, bietet Betreutes Wohnen eine ideale Wohnform. Die Betreuungspersonen vor Ort bieten die gewisse Sicherheit sowie Betreuungsleistungen nach Bedarf. In dem Projekt SeniorVita soll den BewohnerInnen ein langes und selbstbestimmtes Leben in einer eigenen Wohnung geboten werden.

 

Unter die Leistungen der BetreuerInnen fallen unter Anderem folgende Services:

* Regelmäßige persönliche Kontaktaufnahme
* Organisation gemeinschaftlicher Aktivitäten und Events im Haus
* Organisation von Dienstleistungen (Pflege, Therapie, Transporte)
* Anlaufstelle und erster Ansprechpartner bei Fragen des Alltags
* Unterstützung bei technischen Problemen im Alltag

 

Verschaffen Sie sich selbst einen Eindruck vor Ort und lernen Sie das Haus, die BetreuerInnen und die BewohnerInnen kennen.

 

Betreuung durch die Barmherzigen Schwestern

Im Projekt SeniorVita wird Wohnen mit den Leistungen des Betreuungspersonals der Barmherzigen Schwestern kombiniert. Diese stehen für soziale, technische und medizinische Betreuung werktags zur Verfügung.

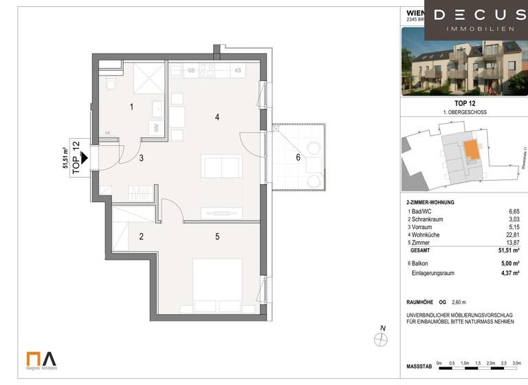
Top 12 befindet sich im 1. Obergeschoß, ist ostseitig ausgerichtet und teilt sich wie folgt auf:

* Vorraum
* Bad mit WC und Dusche
* Abstellraum
* Wohnküche mit Essbereich
* Schlafzimmer
* Balkon

Hinweis gemäß Energieausweisvorlagegesetz: Ein Energieausweis wurde vom Eigentümer bzw. Verkäufer, nach unserer Aufklärung über die generell geltende Vorlagepflicht, sowie Aufforderung zu seiner Erstellung noch nicht vorgelegt. Daher gilt zumindest eine dem Alter und der Art des Gebäudes entsprechende Gesamtenergieeffizienz als vereinbart. Wir übernehmen keinerlei Gewähr oder Haftung für die tatsächliche Energieeffizienz der angebotenen Immobilie.

Der Immobilienmakler erklärt, dass er - entgegen dem in der Immobilienwirtschaft üblichen Geschäftsgebrauch des Doppelmaklers - einseitig nur für den Vermieter tätig ist.

DECUS Immobilien GmbH - Wir beleben Räume

Für weitere Informationen und Besichtigungen steht Ihnen gerne Frau  Linda Schmidtberger unter der Mobilnummer +43 660 75 75 013 und per E-Mail unter schmidtberger@decus.at persönlich zur Verfügung.

www.decus.at | office@decus.at 

 

Wichtige Informationen

Bitte beachten Sie, dass per 13.06.2014 eine neue Richtlinie für Fernabsatz- und Auswärtsgeschäfte in Kraft getreten ist.

Ab 1.4.2024 entfallen die Grundbuchs- und Pfandrechtseintragungsgebühren vorübergehend für Eigenheime bis zu einer Bemessungsgrundlage von EUR 500.000,-. Voraussetzung ist das dringende Wohnbedürfnis, ausgenommen davon sind vererbte oder geschenkte Immobilien. Die Befreiung ist jedoch für den Einzelfall zu prüfen, DECUS Immobilien übernimmt hierzu keine Haftung.

Ab 01.07.2023 gilt das Erstauftraggeber-Prinzip bei Wohnungsmietverträgen, ausgenommen davon sind Dienst-/Natural-/Werkswohnungen. Wir dürfen gem. § 17 Maklergesetz darauf hinweisen, dass wir auf die Doppelmaklertätigkeit gem. § 5 Maklergesetz bei Wohnungsmietverträgen verzichten und nur noch einseitig tätig sind (bei den restlichen Vermittlungsarten nicht) und ein wirtschaftliches Naheverhältnis zu unseren Auftraggebern besteht. 

Im Falle eines Abschlusses mit Ihnen oder einem von Ihnen namhaft gemachten Dritten bzw. bei beidseitiger Willensübereinstimmung beträgt unser Honorar (lt. Honorarverordnung für Immobilienmakler) 2 Bruttomonatsmieten (BMM) bei Dienst-/Natural-/Werkwohnungen sowie Suchaufträgen, 3 BMM bei Gewerbe-, PKW-, Keller- und Lagermietverträgen sowie bei Kaufobjekten 3 % des Kaufpreises, zuzüglich der gesetzlichen Umsatzsteuer.

Dieses Objekt wird Ihnen unverbindlich und freibleibend angeboten. Oben angeführte Angaben basieren auf Informationen und Unterlagen des Eigentümers und sind unsererseits ohne Gewähr.

Nähere Informationen sowie unsere AGBs und die Nebenkostenübersichtsblatt finden Sie auf unserer Homepage www.decus.at unter "Service" - "Rechtliches zum FAGG" sowie im Anhang der zugesendeten Objekt-Exposés!

Infrastruktur / Entfernungen

Gesundheit
Arzt <250m
Apotheke <500m
Klinik <3.000m
Krankenhaus <2.250m

Kinder & Schulen
Schule <250m
Kindergarten <250m
Universität <9.000m
Höhere Schule <3.750m

Nahversorgung
Supermarkt <750m
Bäckerei <250m
Einkaufszentrum <2.250m

Sonstige
Bank <250m
Geldautomat <250m
Post <250m
Polizei <750m

Verkehr
Bus <250m
U-Bahn <3.250m
Straßenbahn <3.500m
Bahnhof <250m
Autobahnanschluss <1.250m

Angaben Entfernung Luftlinie / Quelle: OpenStreetMap

Merkmale

  • Bezug: Ab sofort
  • 1. Geschoss
  • Einbauküche, offene Küche
  • Personenaufzug
  • Balkon
  • Barrierefrei
  • Bad mit Dusche
  • Bodenbelag: Fliesen, Parkett

Grundrisse

Grundrisse
1 / 1

Realisiere Dein Projekt

Bausubstanz und Energie

Der Anbieter hat keine Informationen zum Energieverbrauch bereit gestellt.
  • HeizungsartZentralheizung: Fußbodenheizung
  • EnergieträgerFernwärme

Mietkosten

Gesamtmiete
995,01 €
Nettokaltmiete
17,56 €/m²
775,55 €
Betriebskosten
129 €
Kaution
3 Bruttomonatsmieten
Weitere Preisinformationen
Nettokaltmiete: 775,55 EUR

Lage

address-icon
Brunn am Gebirge (2345)
Der Anbieter hat die genaue Adresse nicht freigegeben
Das Projekt befindet sich im Herzen von Brunn am Gebirge, einer charmanten Marktgemeinde im Bezirk Mödling. Diese zentrale Lage bietet eine hervorragende Infrastruktur und zahlreiche Annehmlichkeiten in unmittelbarer Nähe.
Einkaufsmöglichkeiten sind in wenigen Gehminuten erreichbar (am nächsten: Billa). Das Ärztezentrum sowie Geschäfte des täglichen Bedarfs wie Apotheken, Banken und die Post sind schnell erreichbar.
Verkehrsanbindung:
- Bahnhof Brunn am Gebirge mit Verbindungen nach Wien und Wiener Neustadt
- Bushaltestellen, die den Ort mit den umliegenden Gemeinden vernetzen
- Buslinien 207, 259, 260 vor der Tür
- Autobahnen A21, A2 und A3

Weitere Informationen

Stichworte Tiefgarage vorhanden, Fahrradraum, Anzahl der Badezimmer: 1, Anzahl der separaten WCs: 1, Anzahl Balkone: 1, Balkon-Terrassen-Fläche: 5,00 m², Kellerfläche: 4,37 m², Bundesland: Niederösterreich

Weitere Services

Lust auf eine Besichtigung?
Eine Frage zur Immobilie?
Nachricht hinzufügen
Mit der Nutzung der oben angegebenen Telefonnummer oder durch Klicken auf „Kontaktieren“ akzeptierst Du die Allgemeinen Nutzungsbedingungen, denen Du jederzeit widersprechen kannst. Weitere Informationen zum Datenschutz

Über den Anbieter

Kärtner Straße 39/Annagasse 1, 1010 WIEN
partner badge
6 Jahre Partnerschaft
Frau Jasmin HeidaDein Kontakt
Online-ID: 2lnn45f
Referenznummer: OBGC202504041054012994ef60b5b9c
Decus Immobilien GmbH
Decus Immobilien GmbH
Bewertung: 4,5 von 5 Sternen
Nachricht hinzufügen
Mit der Nutzung der oben angegebenen Telefonnummer oder durch Klicken auf „Kontaktieren“ akzeptierst Du die Allgemeinen Nutzungsbedingungen, denen Du jederzeit widersprechen kannst. Weitere Informationen zum Datenschutz
Wie zufrieden bist du mit dieser Seite (nicht mit der Immobilie selbst)?