Nordley Immobilien

Lisa Fasser

Baugrundstück für Klein- bis Mittelständigen Betrieb inkl. Baugenehmigung

€ 160.000
Kaufpreis
340 m²
Grundstücksfl. ca.

Der Anbieter dieses Objekts hat gegenüber der AVIV Germany GmbH als Betreiber dieses Online-Marktplatzes erklärt, nicht als Unternehmer im Sinne des § 1 KSchG zu handeln. Die im Verbraucherschutzrecht der Union verankerten Verbraucherrechte (insbesondere Informationspflichten und Rücktritts- bzw. Widerrufsrechte) finden auf den Vertrag zwischen dem Anbieter des Objekts und Ihnen (dem Interessenten) keine Anwendung.

Gewerblicher Anbieter

Der Anbieter dieses Objekts hat gegenüber der AVIV Germany GmbH als Betreiber dieses Online-Marktplatzes erklärt, als Unternehmer im Sinne des § 1 KSchG zu handeln.

AdresseStraße nicht freigegeben
26125 Oldenburg 
(Ohmstede)
Auf Karte ansehen

Preise & Kosten

Kaufpreis € 160.000

Provision für Käufer

7,14% inkl. MwSt.

Lage

Das Grundstück befindet sich im beliebten Stadtteil Ohmstede, einem etablierten Gewerbe- und Mischgebiet im Nordosten Oldenburgs.
Die Anbindung an die Innenstadt, die A28 sowie die A29 ist hervorragend. Öffentliche Verkehrsmittel und Versorgungseinrichtungen befinden sich in unmittelbarer Nähe.

Das Grundstück

Kategorie

Gewerbe-Grundstück

  • voll erschlossen

Details

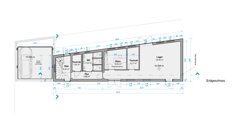
Objektbeschreibung

Zum Verkauf steht ein attraktives Gewerbegrundstück in verkehrsgünstiger Lage von Oldenburg-Ohmstede. Für das Grundstück liegt eine rechtskräftige Baugenehmigung (erteilt am 30.09.2025) zum Neubau eines modernen Betriebsgebäudes mit Doppelparkanlage vor.
Das Projekt wurde im vereinfachten Baugenehmigungsverfahren (§ 63...

Mehr anzeigen

Ausstattung

- Baugenehmigung bis 2028 gültig (Verlängerung möglich)

- Planung durch renommiertes Ingenieurbüro Backhaus Ingenieure

- Sofort bebaubar, keine Altlasten, keine Leitungseinschränkungen

- Ideal geeignet für Handwerks-, Dienstleistungs- oder Verwaltungsbetriebe

Weitere Informationen

Stichworte
Bundesland: Niedersachsen, 2 Etagen

Anbieter der Immobilie

Partner

Nordley Immobilien

Donnerschweer Straße 187, 26123 Oldenburg

user

Lisa Fasser

Dein Ansprechpartner

Anbieter-Website Anbieter-Profil Anbieter-Impressum

Online-ID: 2lzch5y

Referenznummer: 1425

Finde Angebote wie dieses

imageimageimage

Hier geht es zu unserem Impressum, den Allgemeinen Geschäftsbedingungen, den Hinweisen zum Datenschutz und nutzungsbasierter Online-Werbung.