Version: 8.24.0Navigation ĂĽberspringen
995.000 €
4 Zimmer  â€˘  127 m²  â€˘  338 m² GrundstĂĽck
Immowelt logo

Reihenendhaus zum Kauf
995000 €
7.835 €/m²
4 Zimmer  â€˘  127 m²  â€˘  338 m² GrundstĂĽck

Modernized terraced house in a sought-after and quiet location in Berlin-Wannsee

This tastefully modernized terraced house from 1969 impresses with its open and bright floor plan as well as its first-class residential location in the sought-after Wannsee district of Berlin. The property offers enough space for individual living with comfort and elegance on around 127 m² of living space. The generous amount of space is complemented by approx. 50 m² of additional usable space in the basement, which can be used in a variety of ways. The complete furnishings can be taken over.

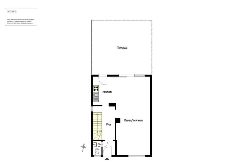
On the first floor, you will find a spacious, light-flooded living and dining area with an open kitchen that offers direct access to the sunny terrace and the lovingly designed, south-facing garden. A guest WC rounds off the facilities on this floor.

Upstairs there are three comfortable rooms that can be used flexibly as bedrooms, children's rooms or studies, as well as a modern bathroom that meets the most demanding requirements.

The basement offers further functionally usable space with an office, a spacious cellar room and a utility room.

The house also boasts excellent energy efficiency thanks to a modern air/water heat pump, which promises low operating costs and sustainable use.

A private garage on the property rounds off the attractive offer and provides additional convenience in everyday life.

Enjoy living comfort combined with the unique quality of life in one of Berlin's most exclusive residential areas. Ideal for families and discerning couples who appreciate a quiet yet central location.

Merkmale

  • 338 m² GrundstĂĽck
  • EinbaukĂĽche
  • Keller
  • Garage
  • Gäste-WC
  • Terrasse
. Modernized terraced house (built in 1969)
. approx. 127 m² living space
. approx. 338 m² plot
. Open, bright living/dining area
. Modern, open fitted kitchen
. South-facing terrace and garden
. Guest WC on the first floor
. Three versatile rooms on the upper floor
. Complete furnishings included
. Modern bathroom on the upper floor
. Additional usable space in the basement with office, cellar room and utility room
. Energy-efficient air/water heat pump
. Own car garage on the property
. Sought-after residential area in Berlin-Wannsee

Grundrisse

Grundrisse
1 / 3

Realisiere Dein Projekt

Bausubstanz und Energie

Energieausweis

C
  • Baujahr1969
  • EnergieträgerElektro
Immowelt logo

Preisdetails

Kaufpreis
995000 €
7.834,65 €/m²
Provision für Käufer
3,57% inkl. MwSt. bezogen auf den beurkundeten Kaufpreis
Weitere Preisinformationen
1 Garagenstellplatz
Geschätzte Gesamtkosten
1.110.121 €1
Kaufpreis
995.000 €
Notarkosten (1,5%)
14.925 €
Grunderwerbsteuer (6%)
59.700 €
Provision für Käufer (3,57%)
35.521 €
Grundbucheintrag (0,5%)
4.975 €
1Der angezeigte Wert ist eine automatisch berechnete Schätzung von immowelt.
2Bei den Angaben handelt es sich um ortsübliche Werte. Individuelle Kosten können abweichen.

Lage

address-icon
Wannsee, Berlin (14109)
Der Anbieter hat die genaue Adresse nicht freigegeben
Located in the south-west of the city, in the district of Steglitz-Zehlendorf, the rural district of Wannsee is one of the most exclusive and sought-after residential areas in Berlin. As early as the German Empire and later in the Weimar Republic, numerous magnificent villas with sophisticated architecture and design were built on the shores of these beautiful lakes.

The proximity to the water and the beautiful surrounding nature make the district particularly fascinating for water sports enthusiasts. The connections between the Havel waters allow for extensive boat tours with numerous sights along the banks. In addition, the most famous sailing, yachting and rowing clubs in Germany are located on the GroĂźer and Kleiner Wannsee. Numerous and highly regarded sports clubs in the area as well as the Berlin-Wannsee Golf and Country Club offer a wide range of leisure activities, even away from the water.

Daily amenities are within easy reach along Königstrasse, the center of Wannsee. The S-Bahn station, about 4 km away, provides transfer-free connections to both Berlin city centers (approx. 12 min. and 21 min.) and to Potsdam (approx. 6 min.). Kurfürstendamm can be reached via the AVUS (A 115) in about 20 minutes by car.

Weitere Informationen

Sonstiges Your values are in the best hands with us

DAHLER specializes in the brokerage of high-quality residential properties in prime locations. Our company has been run by Kirsten and Björn Dahler for over 30 years and sets standards in the industry with its innovative strength and quality of service. Our more than 90 locations in Germany and Spain support the success of your real estate sale in the long term and provide you with professional support in all aspects of real estate sales.

Our maxim is to exceed your expectations when selling your property and we look forward to supporting you with our specialist and market knowledge and expert advice. Regardless of whether you want to sell a house or an apartment. We see ourselves as a service broker. Because anyone who places their property-related concerns in our hands trusts us to handle considerable material assets responsibly. We meet this requirement in all phases of the sale of a property with innovative services. Our focus is on in-depth specialist and market knowledge and competent advice. What's more, our services are completely free of charge for property sellers.

7 reasons to sell your property with DAHLER

01 SPECIALIZATION

We are "at home in prime locations" and focus on high-quality residential properties in preferred residential areas.

02 CLOSE TO THE MARKET

By looking at the smallest areas, our consultants have a profound knowledge of their submarket.

03 RESEARCH

Ongoing in-depth market analyses form the basis for location-based value assessments.

04 PROFESSIONAL EXPERTISE

Comprehensive training for all employees ensures a consistently high level of quality in our advisory services.

05 SUCCESS

Thanks to a sophisticated marketing concept, we achieve an average marketing period of just two to three months.

06 DISCRETION

At the request of our clients, we market every property with the utmost discretion.

07 NETWORK

Home can be anywhere. That's why we publicize your offer nationwide and place it in over 90 locations. Stichworte Nutzfläche: 50,00 m², Anzahl der Badezimmer: 1, Anzahl der separaten WCs: 1, Anzahl Terrassen: 1, 2 Etagen, modernisiert Sonstiges/Wohnen: Bibliothek

Weitere Services

Lust auf eine Besichtigung?
Eine Frage zur Immobilie?
Nachricht hinzufĂĽgen
Mit der Nutzung der oben angegebenen Telefonnummer oder durch Klicken auf „Kontaktieren“ akzeptierst Du die Allgemeinen Nutzungsbedingungen, denen Du jederzeit widersprechen kannst. Weitere Informationen zum Datenschutz

Ăśber den Anbieter

YorckstraĂźe 17, 14467 Potsdam
partner badge
3 Jahre Partnerschaft
Herr Christian Aschenbeck
Herr Christian AschenbeckDein Kontakt
Online-ID: 2kbdt52
Referenznummer: D-WAN8596-ENG
DAHLER Potsdam | Berlin-Wannsee | Kleinmachnow
title
DAHLER Potsdam | Berlin-Wannsee | Kleinmachnow
Bewertung: 4,9 von 5 Sternen
Nachricht hinzufĂĽgen
Mit der Nutzung der oben angegebenen Telefonnummer oder durch Klicken auf „Kontaktieren“ akzeptierst Du die Allgemeinen Nutzungsbedingungen, denen Du jederzeit widersprechen kannst. Weitere Informationen zum Datenschutz
Wie zufrieden bist du mit dieser Seite (nicht mit der Immobilie selbst)?