Lagerhalle zur Miete - Erstbezug9,50 €/m²590 m² Lagerfläche • teilbar ab 490 m²
9,50 €
/m²
590 m² Lagerfläche • teilbar ab 490 m²
490 m² - Neubau Fertigungsfläche im Erdgeschoss mit Büro in Steglitz! *2790*
Merkmale
- Bezug: nach Vereinbarung
- Lastenaufzug
- Bodenbelag: Stein
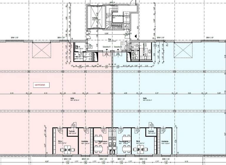
Grundrisse
Grundrisse
1 / 1
Bausubstanz und Energie
- Baujahr2023
- Zustand der ImmobilieErstbezug
Mietkosten
Monatliche Miete
9,50 €/m²
Provision für Mieter
PROVISIONSFREI FÜR DEN MIETER!
Kaution
keine Angabe
Lage

Lankwitz, Berlin (12249)
Der Anbieter hat die genaue Adresse nicht freigegeben
Weitere Informationen
Weitere Services
Lust auf eine Besichtigung?
Eine Frage zur Immobilie?
Über den Anbieter
Kirchblick 3, 14129 Berlin
10 Jahre Partnerschaft
Frau Sabine SauerDein Kontakt
Online-ID: 23NXJIX6YP29
Referenznummer: 3445#CqXe5N
Wie zufrieden bist du mit dieser Seite (nicht mit der Immobilie selbst)?
