Version: 8.24.0Navigation überspringen
492 €
2 Zimmer  •  63 m²  •  1. Geschoss  •  frei ab 01.04.2026
Immowelt logo

Wohnung zur Miete
492 €
2 Zimmer  •  63 m²  •  1. Geschoss  •  frei ab 01.04.2026

WIR SUCHEN ab APRIL 2026 einen NACHMIETER

Die im Jahr 2000 neu errichteten Wohngebäude entlang der Turmstraße Ecke Pfännerhöhe garantieren trotz der zentralen Lage ein ruhiges und modernes Wohnen. Ein weitläufiger Innenhof mit hochwertigem Baumbestand, idyllischer Wasserfläche und begrünten Wegen bietet Ihnen Platz zum Entspannen und Verweilen. Optimierte Raumgrößen, großzügige Balkone - Wintergärten - Terrassen, optimale Belichtung durch bodentiefe Fenster, geräumige geflieste Wohnküchen, belichtete Badezimmer mit hochwertiger Ausstattung, Aufzüge in allen Hauseingängen oder die großzügige Tiefgarage sind nur einige Punkte die zeigen wie erstklassig an dieser Adresse gewohnt wird. Auch die Energieeffizienz wurde groß geschrieben. Durch eine intelligente Planung können die kompakten Gebäude in die Kategorie des Niedrigenergiehauses eingestuft werden.

Merkmale

  • frei ab 01.04.2026
  • 1. Geschoss
  • Duplex-Stellplatz
  • Balkon
  • Badezimmer: Badewanne, Bad mit Fenster
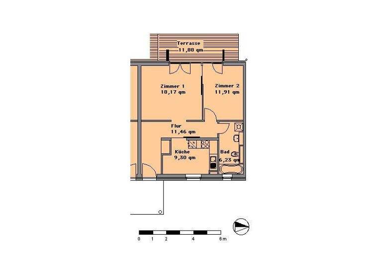
1.OG WE014
- Tageslichtbad mit Wanne
- separater Küchenraum
- Terrasse
- Laminat

Vom aktuellen Mieter kann die Einbauküche gegen eine Ablöse übernommen werden.

In unseren Mietverträgen vereinbaren wir einen Kündigungsausschluss von 12 Monaten.

Grundrisse

Grundrisse
1 / 1

Realisiere Dein Projekt

Bausubstanz und Energie

Energieausweis

C
  • Baujahr2000
  • Zustand der Immobilierenoviert / saniert
  • HeizungsartZentralheizung
  • EnergieträgerGas
Immowelt logo

Mietkosten

Warmmiete
682 €
Kaltmiete
7,81 €/m²
492 €
Nebenkosten
95 €
Heizkosten
95 €
Zusätzliche Kosten
Miete pro Stellplatz
70 €
Kaution
984,00 €
Weitere Preisinformationen
1 Duplex-Stellplatz, Miete: 70,00 EUR
Nettokaltmiete: 492,00 EUR

Lage

address-icon
Turmstraße 148InnenstadtHalle (Saale) (06110)
Das gewachsene Wohnumfeld bietet alle Dinge für das tägliche Leben in unmittelbarer Nähe. Die Verkehrsanbindung ist sehr gut - egal ob man mit dem Pkw unterwegs ist oder öffentliche Verkehrsmittel bevorzugt werden.

Weitere Informationen

Sonstiges Finden Sie Ihr neues Zuhause unter www.tag-wohnen.de und vereinbaren Sie Ihren persönlichen Besichtigungstermin. Wir freuen uns auf Ihre Anfrage.
Profitieren Sie als TAG Wohnen-Mieter von unseren Partnerangeboten und sichern Sie sich viele Sonderrabatte und günstige Konditionen u.a. in den Bereichen Unterhaltung, Umzug, Ernährung und Mobilität.
Strom und Gas von lekker Energie - Sichern Sie sich Ihren exklusiven TAG Wohnen-Bonus unter www.lekker.de/kunden/tag-wohnen
Sichern Sie sich zudem einen entspannten Umzug mit unserem Partner Transporo und einem 10% Rabatt über folgenden Link: www.transporo.de/tag
Alle Angaben in diesem Exposé wurden sorgfältig getätigt. Fehlerhafte Angaben können nicht ausgeschlossen werden, daher sind die Angaben ohne Gewähr. Maßgeblich sind die im Mietvertrag geschlossenen Vereinbarungen. Stichworte Nutzfläche: 63,01 m², Anzahl der Schlafzimmer: 1, Anzahl der Badezimmer: 1, Anzahl Balkone: 1, 5 Etagen

Weitere Services

Lust auf eine Besichtigung?
Eine Frage zur Immobilie?
Nachricht hinzufügen
Mit der Nutzung der oben angegebenen Telefonnummer oder durch Klicken auf „Kontaktieren“ akzeptierst Du die Allgemeinen Nutzungsbedingungen, denen Du jederzeit widersprechen kannst. Weitere Informationen zum Datenschutz

Über den Anbieter

Steckelhörn 5, 20457 Hamburg
partner badge
10 Jahre Partnerschaft
Herr Nico KieselDein Kontakt

Weitere Unterlagen

Online-ID: 2n9f45n
Referenznummer: 1034/40302/1011
TAG Wohnen & Service GmbH
TAG Wohnen & Service GmbH
Bewertung: 4,1 von 5 Sternen
Nachricht hinzufügen
Mit der Nutzung der oben angegebenen Telefonnummer oder durch Klicken auf „Kontaktieren“ akzeptierst Du die Allgemeinen Nutzungsbedingungen, denen Du jederzeit widersprechen kannst. Weitere Informationen zum Datenschutz
Wie zufrieden bist du mit dieser Seite (nicht mit der Immobilie selbst)?