Version: 8.24.0Navigation überspringen
349.000 €
6,5 Zimmer  •  207,1 m²  •  194 m² Grundstück
Immowelt logo

Einfamilienhaus zum Kauf
349000 €
1.685 €/m²
6,5 Zimmer  •  207,1 m²  •  194 m² Grundstück

1867 erbaut, mit Herzblut saniert : wohnen mit Seele

Charmantes Fachwerkhaus mit Geschichte und modernem Komfort in malerischer Lage von Gernsbach-Reichental und ein zusätzliches Freizeitgrundstück im selben Ort.

Dieses wunderschöne, um 1867 erbaute Fachwerkhaus vereint historischen Charme mit modernem Wohnkomfort.

In idyllischer, naturnaher Lage des Gernsbacher Ortsteils Reichental gelegen, bietet es den idealen Rückzugsort für Liebhaber traditioneller Architektur und ländlicher Lebensqualität.

Das Haus wurde liebevoll saniert und mit viel Sinn für das Ursprüngliche erhalten. Charakteristische Fachwerkelemente, sichtbare Holzbalken und harmonische Proportionen bestimmen den besonderen Charme dieses Anwesens.

Ein Anbau aus dem Jahr 1987 erweitert das Raumangebot und fügt sich harmonisch in die historische Bausubstanz ein.

Im Jahr 2020 erfolgten weitere Modernisierungen, sowie eine Nutzungsänderung mit dem Umbau eines Ladengeschäftes zur Garage, wodurch zusätzlicher Raum und neue Nutzungsmöglichkeiten entstanden.

Das Ensemble präsentiert sich heute in einem sehr gepflegten Zustand und verbindet auf einzigartige Weise Geschichte, Atmosphäre und zeitgemäßen Komfort - ideal für alle, die das Besondere suchen.

Lassen Sie diese Immobilie bei einer Besichtigung auf sich wirken.
Wir können jederzeit kurzfristig einen Besichtigungstermin abstimmen
( das Haus ist noch bewohnt ).

Exposé- und Besichtigungs-Anfragen bitte mit Angabe einer Telefonnummer, unter der wir Sie erreichen können - Danke

Merkmale

  • 194 m² Grundstück
  • Keller
  • 2 Stellplätze: 2 Garagen
  • Balkon
  • Terrasse
  • offener Kamin
Das Haus verfügt über einen Haupteingang, 2 Seiteneingänge und Zugang über die Garage im KG

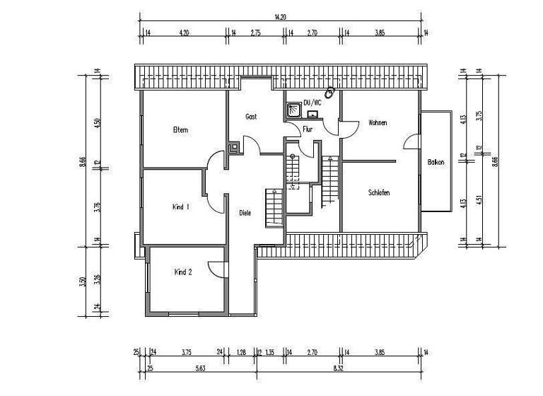
DG
mit Ausbaupotential im Spitzboden,
3 Zimmern + Loggia und Ankleide/Diele

abtrennbares Schlaf- und Wohnzimmer mit Balkon
( könnte durch separatem Zugang über Terrasse auch an Übernachtungsgäste vermietet werden)

kleines Bad:
Waschbecken, Dusche und WC
_______________________________________________
EG
Bad mit Waschbecken, Badewanne, Toilette und Bidet

Küche mit Koch-Insel / Frühstücksbar und
Kaminofen, sowie einem Seiteneingang

Esszimmer - an die Küche angrenzend

großes Wohn-Esszimmer

Diele mit Haupteingang und einem Treppenhaus / Aufgang ins DG und einem Abgang / Wendeltreppe in den Keller ( KG )

Flur zwischen Diele und Hauswirtschaftsraum mit Zugang / Nebentür zur Terrasse

2. Treppenhaus ins DG neben dem "Lager"
bzw. Hauswirtschaftsraum mit zusätzlichem WC
_______________________________________________
KG
Doppelgarage mit Platz für 2 Autos und Abstellmöglichkeiten

3 Kellerräume ( 1 Werkstatt )
Stauraum im Treppenbereich - Wendeltreppe
1 Heizungsraum

Realisiere Dein Projekt

Bausubstanz und Energie

Energieausweis

Der Anbieter hat keine Daten zum Energieausweis hinterlegt.
  • Baujahr1867
  • HeizungsartEtagenheizung: Ofen
  • EnergieträgerÖl
Immowelt logo

Preisdetails

Kaufpreis
349000 €
1.685,18 €/m²
Provision für Käufer
2,5 zzgl. 19% MwSt. vom beurkundetetn Kaufpreis
Weitere Preisinformationen
2 Garagenstellplätze
Geschätzte Gesamtkosten
385.889 €1
Kaufpreis
349.000 €
Notarkosten (1,5%)
5.235 €
Grunderwerbsteuer (5%)
17.450 €
Provision für Käufer (3,57%)
12.459 €
Grundbucheintrag (0,5%)
1.745 €
1Der angezeigte Wert ist eine automatisch berechnete Schätzung von immowelt.
2Bei den Angaben handelt es sich um ortsübliche Werte. Individuelle Kosten können abweichen.

Lage

address-icon
GernsbachGernsbach / Reichental (76593)
Die Immobilie befindet sich in Reichental, einem Höhenstadtteil der Stadt Gernsbach im Landkreis Rastatt in Baden-Württemberg - Südöstlich vom Zentrum Gernsbachs, in etwa 3,5 - 5,5 km Entfernung zum Stadtkern, eingebettet in den nördlichen Schwarzwald rund um das Reichenbachtal.
Die Höhenlage und Waldlandschaft prägen den Orts- und Landschaftscharakter; Reichental ist bekannt für Fachwerkhäuser, Natur und Wanderwege.
_____________________________________________
Verkehrsanbindung

mit dem Auto
Bundesstraße B462:
Die Hauptverbindung durchs Murgtal (von Rastatt über Gernsbach und Forbach bis Freudenstadt) verläuft südlich von Reichental und ist der wichtigste Verkehrsknoten in der Umgebung.

Zubringer zum Ort:
Von der B462 führt eine Landesstraße (L76 b) von Hilpertsau / Gernsbach aus direkt nach Reichental.

Reichental selbst ist über Orts- und Nebenstraßen (z. B. Kaltenbronner Straße, Langenackerstraße) eng mit dem Straßennetz verknüpft.
_____________________________________________

Öffentlicher Nahverkehr - Zug & Bus:
Reichental gehört zum Nahverkehrsnetz des KVV.
Stadtbahnlinie S8/S81 zum Bahnhof Gernsbach. Von dort aus weiter mit Buslinie 242 in Richtung Reichental / Kaltenbronn

Zusatzservice:
In Randzeiten kann die Buslinie als Anruf-Linien-Taxi bestellt werden (Voranmeldung nötig).
_____________________________________________
Infrastruktur & Umgebung
Reichental bietet eine Grundversorgung vor Ort (z. B. Dorfladen im Ortszentrum).

Zahlreiche Sehenswürdigkeiten und Freizeitangebote in und um Reichental,
Freibad "Romantikbad im Grünen" oberhalb des Orts, sowie Wander- und Radwege durch das Reichenbachtal und die umliegende Schwarzwaldlandschaft.

Weitere Informationen

Sonstiges Sanierungsarbeiten in den letzten 5-8 Jahren
_______________________________________________

fast alle Fenster und Türen erneuert - Fenster 3-fach verglast

Dach: alle kaputten Ziegel ausgetauscht
Schutz-Beschichtung aufbringen lassen

Neue Regenrinnen und Abflussrohre aus Titanblech

Fassade ausbessern und streichen lassen

Bad EG komplett saniert

Küche EG komplett saniert

Terrasse angelegt

Laden im KG zur Garage um gebaut - hier auch Zugang über die Garage ins EG

Elektrik und Wasser-Verrohrung auf modernisiertem Standard zwischen 1987 und 2020

Buderus - Heizungsanlage aus dem Jahr 2002
(Öl - ggf. umrüstbar auf Gas )

_______________________________________________

Mit dieser Immobilie erwerben Sie außerdem ein 943 m² großes FREIZEITGRUNDSTÜCK
mit 2 Geräteschuppen und Obstbäumen, ca. 10 Min. Fußweg vom Haus entfernt.
Hier können Sie Grillen, Chillen und Natur mit Waldblick genießen Stichworte Anzahl der Schlafzimmer: 4, Anzahl der Badezimmer: 2, Anzahl der separaten WCs: 1, Anzahl Balkone: 1, Anzahl Terrassen: 1, 3 Etagen, modernisiert Sonstiges/Wohnen: Einliegerwohnung

Weitere Services

Lust auf eine Besichtigung?
Eine Frage zur Immobilie?
Nachricht hinzufügen
Mit der Nutzung der oben angegebenen Telefonnummer oder durch Klicken auf „Kontaktieren“ akzeptierst Du die Allgemeinen Nutzungsbedingungen, denen Du jederzeit widersprechen kannst. Weitere Informationen zum Datenschutz

Über den Anbieter

Eichwaldstr. 6/1, 75334 Straubenhardt
partner badgepartner badge
6 Jahre Partnerschaft + Diamond Partner
Frau Katja WillmsDein Kontakt
Online-ID: 2nxxs5r
Referenznummer: KAP-164
Kapitol Immobilien GmbH
Kapitol Immobilien GmbH
Bewertung: 4,2 von 5 Sternen
Nachricht hinzufügen
Mit der Nutzung der oben angegebenen Telefonnummer oder durch Klicken auf „Kontaktieren“ akzeptierst Du die Allgemeinen Nutzungsbedingungen, denen Du jederzeit widersprechen kannst. Weitere Informationen zum Datenschutz
Wie zufrieden bist du mit dieser Seite (nicht mit der Immobilie selbst)?