Wir vermieten Praxen mit 170qm und 220qm sowie 300qm . Das Objekt wird vollständig saniert und hochwertig energetisch gedämmt. Auch die Raumaufteilung läßt sich nach Ihren Wünschen anpassen.
Willkommen in Ihrem neuen Geschäftsdomizil in bester Lage von Hamm Bockum-Hövel! Diese attraktiven Praxisräume im Gesundheitszentrum Hamm bieten Ihnen die perfekte Umgebung, um Ihre geschäftlichen Aktivitäten zu entfalten. Mit flexiblen Größen von 170qm bis 300qm ist für jeden Bedarf die passende Fläche verfügbar. Die Möglichkeit, die Räume auch kombiniert anzumieten, eröffnet Ihnen zusätzliche Flexibilität. Unsere umfassende Sanierung richtet sich ganz nach Ihren individuellen Wünschen, einschließlich einer flexiblen Raumaufteilung, um sicherzustellen, dass Ihre Arbeitsumgebung Ihren Anforderungen entspricht.
Objektzustand: Erstbezug nach Sanierung
Merkmale
Bezug: nach Absprache
Sonstiges (s. Text)
Bemerkungen: Die Praxen werden vollständig energieeffizient saniert, um Ihnen nicht nur einen modernen, sondern auch nachhaltigen Arbeitsplatz zu bieten. Genießen Sie den Erstbezug nach Sanierung und profitieren Sie von hochwertigen Materialien und modernster Ausstattung. Wir setzen auf Qualität und Komfort, damit Sie sich in Ihren neuen Räumlichkeiten rundum wohlfühlen können.
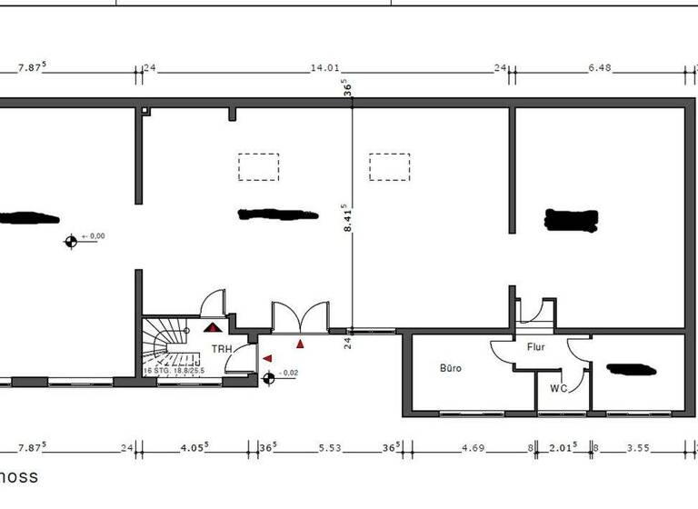
Grundrisse
Grundrisse
1 / 1
Bausubstanz und Energie
Möchtest du Details zum Energieverbrauch?
Baujahr1970
Zustand der Immobilierenoviert / saniert
HeizungsartZentralheizung
EnergieträgerGas
Mietkosten
Miete auf Anfrage
Provision für Mieter
provisionsfrei; keine Provision, courtagefrei
Kaution
keine Angabe
Lage
Bockum-Hövel, Hamm (59075)
Der Anbieter hat die genaue Adresse nicht freigegeben
Die Lage dieser Immobilie ist einfach unschlagbar: Ruhig gelegen und dennoch direkt an der Haupteinkaufsstraße von Hamm Bockum-Hövel. Profitieren Sie von einer optimalen Sichtbarkeit und einer hervorragenden Anbindung an das öffentliche Verkehrsnetz. Diese Lage ist besonders attraktiv für Ärzte, im Gesundheitssektor tätige Unternehmen, Kanzleien und viele weitere Branchen, die eine zentrale Lage mit einer ruhigen Arbeitsumgebung schätzen. Einen Überblick über die Gesundheitseinrichtungen und Praxen vor Ort finden Sie hier: https://gz-bh.de/
Verpassen Sie nicht die Gelegenheit, Ihr Unternehmen in diesem einzigartigen Ambiente zu etablieren und vereinbaren Sie noch heute einen Besichtigungstermin. Infrastruktur (im Umkreis von 5 km): Apotheke, Lebensmittel-Discount, Allgemeinmediziner, Kindergarten, Grundschule, Realschule, Öffentliche Verkehrsmittel
Weitere Informationen
Sonstiges
Heizungsart: Zentralheizung Energieträger: Gas Energieausweis nicht vorhanden
von Sobeck-Werder & Schauff Vermögensverwaltungs GbR Sudhoff 91 48163 Münster Sebastian Schauff
Makleranfragen nicht erwünscht. Nach § 7 UWG sind unaufgeforderte Kontaktaufnahmen durch Makler ohne ausdrückliche Einwilligung des Empfängers verboten!
ohne-makler (OM) ist weder Anbieter noch Vermittler der Immobilie. OM betreibt eine Plattform für Immobilieneigentümer, die unter anderem die gleichzeitige Veröffentlichung einzelner Inserate auf mehreren Immobilienportalen ermöglicht. Die Inhalte dieser Inserate werden ausschließlich von Dritten verantwortet. Für die Richtigkeit, Vollständigkeit oder Rechtmäßigkeit der Angaben übernimmt OM keine Haftung. Hinweise auf mögliche Rechtsverstöße können jederzeit gemeldet werden und werden nach Prüfung umgehend bearbeitet.
Stichworte
Gesamtfläche: 300,00 m², Bundesland: Nordrhein-Westfalen