Sanierte 2-Zimmerwohnung mit Sonnenterrasse in Randersacker
ENERGIEAUSWEIS
- Energieeffizienzklasse: E - erstellt am: 24.07.2020 - gültig bis: 23.07.2030 - Art des Energieausweises: nach Verbrauch - Verbrauchskennwert insgesamt: ca. 142 kWh/(m²a) - Verbrauch inkl. Warmwasser: ja - Heizungsart: Zentralheizung - Befeuerung: Gas - Baujahr: 1980
---------------
Die 2021 umfassend sanierte 2-Zimmerwohnung befindet sich im Erdgeschoss eines gepflegten Dreifamilienhauses in ruhiger Wohnlage von Randersacker.
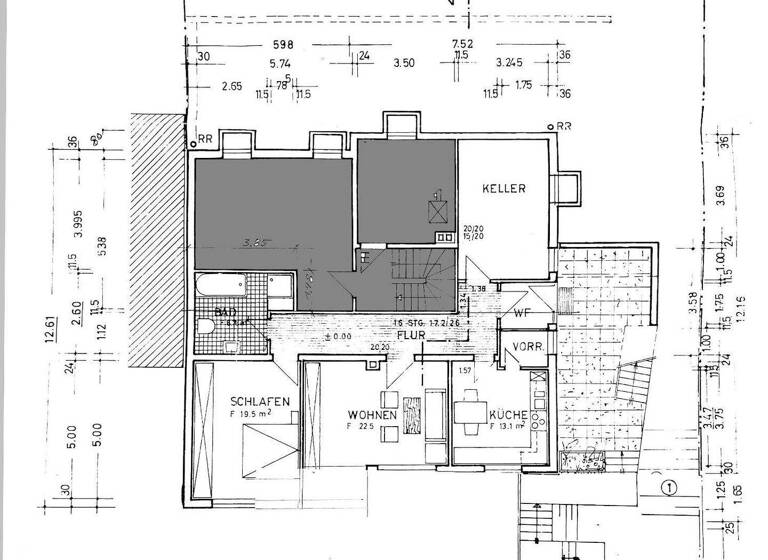
Bereits beim Betreten überzeugt die Wohnung durch ihre helle, freundliche Atmosphäre sowie eine durchdachte Grundrissgestaltung. Ein praktischer Windfang bietet Platz für eine Garderobe und geht in einen großzügigen Flur über, der alle Räume erschließt.
Das Herzstück der Wohnung ist das großzügige Wohnzimmer mit Holzofen, welches durch große Fensterflächen lichtdurchflutet ist und direkten Zugang zur sonnigen Terrasse (ca. 15 m²) bietet - ideal für entspannte Stunden im Freien.
Das Schlafzimmer präsentiert sich ebenfalls hell und gut geschnitten. Die geräumige Wohnküche bietet ausreichend Platz für einen Essbereich; der Einbau einer Küche kann nach Vereinbarung erfolgen.
Das hochwertig ausgestattete, neue Badezimmer verfügt über eine bodengleiche Dusche, eine Badewanne sowie eine angenehme Fußbodenheizung. Ergänzt wird das Raumangebot durch ein separates Gäste-WC sowie einen großzügigen Abstellraum mit Waschmaschinenanschluss innerhalb der Wohnung.
Im Zuge der 2021 abgeschlossenen Sanierung wurden sämtliche Bodenbeläge, Fenster und Türen erneuert, sodass sich die Wohnung in einem modernen und neuwertigen Zustand präsentiert.
Bezug ab dem 01.05.2026 möglich.
Bei Interesse bitten wir um eine schriftliche Anfrage - gerne setzen wir uns anschließend zur Vereinbarung eines Besichtigungstermins mit Ihnen in Verbindung.
Merkmale
Bodenbelag: Laminat
. umfassend sanierte Wohnung . neue Bodenbeläge, Fenster und Türen . großzügiger Grundriss . sonnige Terrasse (ca. 15 m²) . Holzofen im Wohnzimmer . modernes Bad mit Dusche, Wanne & Fußbodenheizung . separates Gäste-WC . großer Abstellraum mit Waschmaschinenanschluss . optional Einbauküche nach Vereinbarung
Grundrisse
Grundrisse
1 / 1
Realisiere Dein Projekt
Bausubstanz und Energie
Energieausweis
E
Baujahr1980
EnergieträgerGas
Mietkosten
Warmmiete
1.270 €
Kaltmiete
12 €/m²
1.020 €
Nebenkosten
250 €
Heizkosten
in Warmmiete enthalten
Kaution
2040 €2.040 €
Lage
Randersacker (97236)
Der Anbieter hat die genaue Adresse nicht freigegeben
Die Wohnung befindet sich in attraktiver und ruhiger Wohnlage in Randersacker, einer der gefragtesten Gemeinden im direkten Umfeld von Würzburg.
Randersacker liegt nur wenige Fahrminuten südlich der Würzburger Innenstadt und bietet eine hervorragende Kombination aus naturnahem Wohnen und optimaler Anbindung. Die umliegenden Weinberge sowie die Nähe zum Main laden zu vielfältigen Freizeit- und Erholungsmöglichkeiten ein.
Eine sehr gute Verkehrsanbindung ist sowohl mit dem Auto (B13, A3) als auch mit öffentlichen Verkehrsmitteln gegeben. Die Würzburger Innenstadt ist in kurzer Zeit erreichbar.
Vor Ort finden sich sämtliche Einrichtungen des täglichen Bedarfs, darunter Einkaufsmöglichkeiten, Bäckereien, Ärzte, Restaurants sowie Kindergärten und eine Grundschule. Die gewachsene Infrastruktur und das charmante Ortsbild machen Randersacker zu einem besonders beliebten Wohnstandort.
Weitere Informationen
Sonstiges
Haftungsausschluss: Alle Angaben in diesem Exposé beruhen auf Informationen des Vermieters. Für die Richtigkeit und Vollständigkeit wird keine Haftung übernommen. Änderungen und Zwischenvermietung bleiben vorbehalten.
Datenschutz: Ihre personenbezogenen Daten werden ausschließlich zum Zweck der Bearbeitung Ihrer Anfrage verarbeitet und gemäß den geltenden Datenschutzbestimmungen vertraulich behandelt.
Hinweis zur Kontaktaufnahme: Bitte haben Sie Verständnis dafür, dass nur vollständig ausgefüllte Anfragen mit Angabe Ihrer Kontaktdaten berücksichtigt werden können.
Stichworte
Rolladen