Version: 8.24.1Navigation überspringen
11 €
Immowelt logo

Büro zur Miete
11 €
/m²

ABC2000 - großartiges Büro mit wunderbarer Aussicht und Dachterrasse im 5. Stock!

ABC2000 Triester Straße 10

Der Top Bürostandort für Ihr Unternehmen. In unmittelbarer Nähe zur Autobahn A2 Wiener Neudorf, sowie von zwei Badnerbahnstationen (Wiener Neudorf und Griesfeld) befindet sich das Bürogebäude ABC 2000. Auf der Liegenschaft befinden sich viele Parkplätze und eine Tiefgarage. Die Büros sind über einen Lift angenehm erreichbar. Es bieten sich im Gebäude viele Möglichkeiten mit anderen Unternehmen zu kooperieren. 

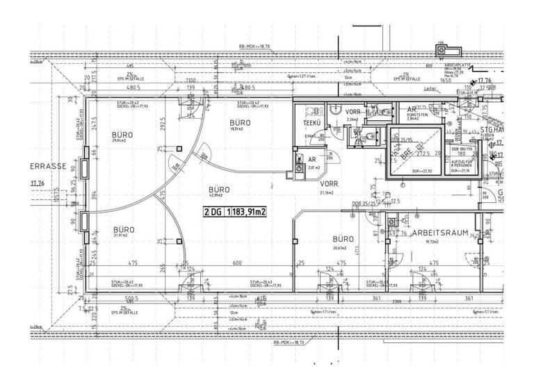
großzügiges Büro mit ca. 183,91m²

Ausstattung:

* Lift
* Fußbodenheizung
* Toiletten getrennt
* Klimaanlage
* Stromanschlüsse im Brüstungskanal

 

Mietkosten: 

* zzgl. Stromkosten (eigener Zähler) 
* zzgl. Heizung        (eigner Zähler)

Kaution: 3 Bruttomonatsmieten

Vermittlungsprovision: 3 Bruttomonatsmieten zzgl. 20% Ust.

Wir weisen darauf hin, dass zwischen dem Vermittler und dem zu vermittelnden Dritten ein familiäres oder wirtschaftliches Naheverhältnis besteht.

Der Vermittler ist als Doppelmakler tätig.

Infrastruktur / Entfernungen

Gesundheit
Arzt <500m
Apotheke <1.000m
Klinik <2.500m
Krankenhaus <2.000m

Kinder & Schulen
Schule <1.000m
Kindergarten <500m
Höhere Schule <2.000m

Nahversorgung
Supermarkt <500m
Bäckerei <1.000m
Einkaufszentrum <1.000m

Sonstige
Bank <1.000m
Geldautomat <1.000m
Post <500m
Polizei <1.000m

Verkehr
Bus <500m
U-Bahn <5.500m
Bahnhof <500m
Straßenbahn <4.000m
Autobahnanschluss <2.000m

Angaben Entfernung Luftlinie / Quelle: OpenStreetMap

Merkmale

  • 5. Geschoss
  • Personenaufzug
  • Bodenbelag: Fliesen, Laminat

Grundrisse

Grundrisse
1 / 1

Realisiere Dein Projekt

Bausubstanz und Energie

Heizwärmebedarf (HWB)

C

Gesamtenergieeffizienz (fGEE)

Der Anbieter hat keine Daten zum Energieausweis hinterlegt.
  • EnergieträgerGas
Immowelt logo

Mietkosten

Nettokaltmiete
11 €/m²
2.023,01 €
Betriebskosten
517,13 €
Provision für Mieter
3 Bruttomonatsmieten zzgl. 20% USt.
Kaution
keine Angabe
Weitere Preisinformationen
Nettokaltmiete: 2.023,01 EUR

Lage

address-icon
Wiener Neudorf (2351)

Weitere Informationen

Sonstiges ERREICHBARKEIT:

 

AUTO:

* Fahrzeit Wien ca. 10 Minuten
* Fahrzeit Wr. Neustadt. ca.25 Minuten

 

BADNER-BAHN-STATION GRIESFELD:

* Wien Oper ca. 40 Minuten*
* Baden Josefsplatz ca. 24 Minuten*

*Fahrzeiten wurden vom Onlinefahrplan der Wiener Lokalbahnen abgefragt und können von den tatsächlichen Zeiten abweichen! Fahrplan [https://route.wlb.at/]

 

ESSEN:

* Restaurant Oase
* Kota Radja Asiate
* ÜberDrüber
* Noodle King
* Subway
* MC Donalds
* Burger King
* Diverse Heurigen - Heurigentermine [https://www.wiener-neudorf.gv.at/heurigentermine.html]
* SCS - Diverse Lokale

 

EINKAUFEN:

* Shopping City Süd
* Hofer
* Billa
* Penny
* dm
* Fressnapf Stichworte Nutzfläche: 183,91 m², Bundesland: Niederösterreich, modernisiert

Weitere Services

Lust auf eine Besichtigung?
Eine Frage zur Immobilie?
Nachricht hinzufügen
Mit der Nutzung der oben angegebenen Telefonnummer oder durch Klicken auf „Kontaktieren“ akzeptierst Du die Allgemeinen Nutzungsbedingungen, denen Du jederzeit widersprechen kannst. Weitere Informationen zum Datenschutz

Über den Anbieter

Ared Straße 11 / 4. OG, 2544 LEOBERSDORF
Herr Christoph RauscherDein Kontakt
Online-ID: 253VVSBWFY5L
Referenznummer: OBGC20251201163045048f58735c572
AURA WohnungseigentumsgesmbH
AURA WohnungseigentumsgesmbH
Nachricht hinzufügen
Mit der Nutzung der oben angegebenen Telefonnummer oder durch Klicken auf „Kontaktieren“ akzeptierst Du die Allgemeinen Nutzungsbedingungen, denen Du jederzeit widersprechen kannst. Weitere Informationen zum Datenschutz
Wie zufrieden bist du mit dieser Seite (nicht mit der Immobilie selbst)?