Version: 8.24.0Navigation überspringen
ohne-makler.net - Immobilien selbst vermarkten
Mietkosten auf Anfrage
93 m² Verkaufsfläche

Laden zur Miete • provisionsfrei
Mietkosten auf Anfrage
93 m² Verkaufsfläche

Klimatisiert: Laden, Lager, Produktion, Frisör, Physio, etc. 92 - 200qm

Angeboten wird eine Gewerbeeinheit aus drei zusammenhängenden Räumen in einem größeren Objekt. Es stehen bei Bedarf noch weitere Räume inkl. Verfügung. Auch zusätzliche Kellerräume (Lastenaufzug vorhanden) zum Lagern sind verfügbar. Die Räume werden mit einer smarten Klimaanlage ausgestattet. Der Zugang erfolgt ebenerdig. Eine Nutzung zur Produktion (normale Raumhöhe, keine Halle, nicht mit PKW befahrbar), aber auch als Verkaufsfläche ist denkbar. Auch Frisör/Kosmetik, Onlineshop, Physiopraxis oder andere Dienstleistungen passen gut zum Mietermix.

Eine Einfahrt mit Fahrzeugen ist nicht möglich!

Merkmale

  • Bezug: sofort
  • Erdgeschoss
  • Barrierefrei
  • Bodenbelag: Fliesen
Barrierefrei, Fliesen

Bemerkungen:
Das Gebäude ist massiv gebaut. Derzeit sind die Räume noch unrenoviert, nach Absprache kann vieles nach Mieterwunsch durch Mieter oder Vermieter entsprechend angepasst werden. Beispielsweise wird die Toilette neu gemacht, auf Wunsch auch mit Dusche oder separatem Kunden-WC etc. möglich. Die Böden sind gefliest, teilweise sind Fliesen an den Wänden. Eine neue Klimaanlage für gutes Raumklima wird ebenfalls eingebaut. Strom, Starkstrom (32A und 16A) und Wasseranschluss vorhanden. Aktuell sind die Räume unrenoviert und können entweder vom Mieter selbst oder von Vermieterseite (Berücksichtigung bei Miete) entsprechend den Anforderungen der Mieter gestaltet werden.
Ebenso kann die Raumaufteilung unter Beachtung statischer Bedingungen noch verändert werden.

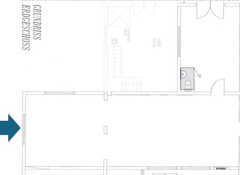
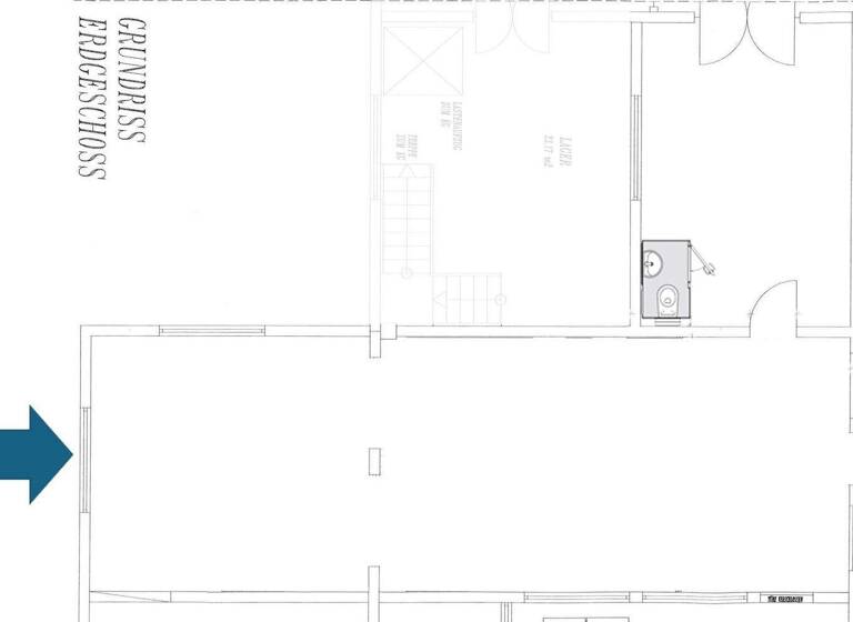
Grundrisse

Grundrisse
1 / 3

Realisiere Dein Projekt

Bausubstanz und Energie

Energieausweis

Endenergiebedarf (Wärme)

Endenergiebedarf (Strom)

  • Baujahr1989
  • EnergieträgerLuft-/Wasser-Wärmepumpe
MediumRectangleTop

Mietkosten

Miete auf Anfrage
Provision für Mieter
provisionsfrei; keine Provision, courtagefrei
Kaution
keine Angabe

Lage

address-icon
OosBaden-Baden (76532)
Der Anbieter hat die genaue Adresse nicht freigegeben
Die Gewerberäume befinden sich im Gewerbegebiet Oos Nord, verkehrsgünstig gelegen (gut 5 Minuten Fußweg zum Bahnhof Baden-Baden, 2x Bus-Haltestellen in der Straße). Parkplätze sind vorhanden. Es gibt auch weitere Lagerräume im Gebäude, die zu günstigen Konditionen mit angemietet werden können. Supermarkt, Discounter, Bäcker, Autohaus, Gastronomie in direkter Nachbarschaft.
Infrastruktur (im Umkreis von 5 km):
Apotheke, Lebensmittel-Discount, Kindergarten, Grundschule, Gymnasium, Öffentliche Verkehrsmittel

Weitere Informationen

Sonstiges Heizungsart: Sonstiges (s. Text)
Energieträger: Luft-/Wasserwärme


Makleranfragen nicht erwünscht. Nach § 7 UWG sind unaufgeforderte Kontaktaufnahmen durch Makler ohne ausdrückliche Einwilligung des Empfängers verboten!

ohne-makler (OM) ist weder Anbieter noch Vermittler der Immobilie. OM betreibt eine Plattform für Immobilieneigentümer, die unter anderem die gleichzeitige Veröffentlichung einzelner Inserate auf mehreren Immobilienportalen ermöglicht. Die Inhalte dieser Inserate werden ausschließlich von Dritten verantwortet. Für die Richtigkeit, Vollständigkeit oder Rechtmäßigkeit der Angaben übernimmt OM keine Haftung. Hinweise auf mögliche Rechtsverstöße können jederzeit gemeldet werden und werden nach Prüfung umgehend bearbeitet. Stichworte Gesamtfläche: 200,00 m², Bundesland: Baden-Württemberg

Weitere Services

Lust auf eine Besichtigung?
Eine Frage zur Immobilie?
Nachricht hinzufügen
Mit der Nutzung der oben angegebenen Telefonnummer oder durch Klicken auf „Kontaktieren“ akzeptierst Du die Allgemeinen Nutzungsbedingungen, denen Du jederzeit widersprechen kannst. Weitere Informationen zum Datenschutz

Über den Anbieter

Humboldtstr. 25 A, 21509 Glinde
partner badge
Partnerschaft
Privat von Ruben SchäferDein Kontakt
Keine Telefonnummer hinterlegt
Keine Telefonnummer hinterlegt
Online-ID: 2naun5n
Referenznummer: 395617
ohne-makler.net - Immobilien selbst vermarkten
ohne-makler.net - Immobilien selbst vermarkten
Nachricht hinzufügen
Mit der Nutzung der oben angegebenen Telefonnummer oder durch Klicken auf „Kontaktieren“ akzeptierst Du die Allgemeinen Nutzungsbedingungen, denen Du jederzeit widersprechen kannst. Weitere Informationen zum Datenschutz
MediumRectangleTop
MediumRectangleBottom
MediumRectangleTop
Wie zufrieden bist du mit dieser Seite (nicht mit der Immobilie selbst)?