***** Neubau von Reihenhäusern und Doppelhaushälften mit Gemeinschaftspool in Finestrat *****
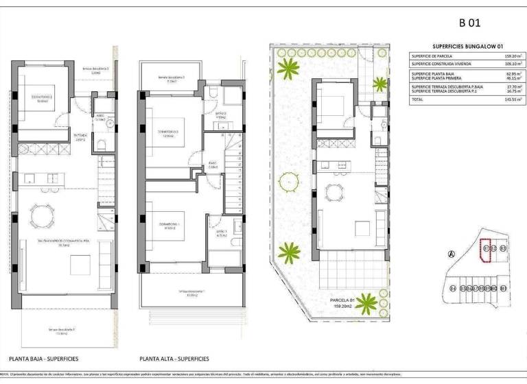
Diese neu gebauten Doppelhaushälften in Sierra Cortina, Finestrat, verbinden modernen Wohnkomfort mit hochwertiger Ausstattung und einer privilegierten Lage an der Costa Blanca. Die Häuser bieten eine Wohnfläche von 109?m² und eine nutzbare Baufläche von 95?m² auf einem Grundstück von 179?m². Jede Doppelhaushälfte verfügt über drei Schlafzimmer, drei Badezimmer, ein großzügiges Wohn- und Esszimmer mit offener, moderner Küche sowie eine Vorinstallation für Klimaanlage.
Die Häuser sind mit einem fortschrittlichen Hausautomationssystem ausgestattet, das die Steuerung von Beleuchtung, Sicherheit und weiteren Funktionen ermöglicht. Im Außenbereich bieten ein privater Garten, eine Terrasse von 34?m², ein Gemeinschaftspool sowie ein Kinderspielplatz vielfältige Möglichkeiten zur Entspannung und Freizeitgestaltung. Für den Komfort der Bewohner steht ein privater Stellplatz zur Verfügung.
Die Lage ist ideal: Nur fünf Minuten trennen Sie von Benidorm, den Stränden (ca. 2,5?km) und allen wichtigen Einrichtungen wie Schulen, Einkaufsmöglichkeiten und Freizeiteinrichtungen. Die geschlossene Wohnanlage garantiert Privatsphäre und Sicherheit.
Diese modernen Doppelhaushälften in Sierra Cortina bieten eine perfekte Kombination aus komfortablem Familienleben, luxuriöser Ausstattung, Garten, Gemeinschaftspool und exzellenter Lage – ideal als Hauptwohnsitz oder Ferienresidenz an der Costa Blanca.
Merkmale
179 m² Grundstück
Einbauküche, offene Küche
Außen-Stellplatz
Balkon
Garten
Terrasse
teilweise klimatisiert
Swimmingpool
Grundrisse
Grundrisse
1 / 2
Realisiere Dein Projekt
Bausubstanz und Energie
Der Anbieter hat keine Informationen zum Energieverbrauch bereit gestellt.
Zustand der ImmobilieNeubau, Erstbezug
Preisdetails
Kaufpreis
565000 €565.000 €
5.183,49 €/m²
Provision für Käufer
provisionsfrei
Lage
Finestrat
Der Anbieter hat die genaue Adresse nicht freigegeben
Weitere Informationen
Unsere Homepage
Schauen Sie doch bitte auch auf unserer Homepage: www.neubaucostablanca.de Hier finden Sie eine große Auswahl toller Objekte. Durch unsere Kooperation mit allen Bauträgern an der Costa Blanca können Sie mit uns jederzeit jedes Neubauobjekt besichtigen. Ein deutschsprachiger Immobilienmakler wird Sie vor Ort betreuen und mit Rat und Tat zur Seite stehen.
Zu Ihrer Information
- Alle Angaben beruhen auf Aussagen des Auftraggebers. - Alle Maße sind ca. Angaben. - Irrtum vorbehalten - Das Bildmaterial und der Exposétext sind urheberrechtlich geschützt - Ein zwischenzeitlicher Verkauf ist nicht ausgeschlossen - Es gelten unsere Allgemeinen Geschäftsbedingungen - Preise und Verfügbarkeiten können sich jederzeit ändern