Version: 8.24.0Navigation ĂĽberspringen
Bien-Zenker GmbH
647.000 €
4 Zimmer  â€˘  132 m²  â€˘  400 m² GrundstĂĽck

Einfamilienhaus zum Kauf
647000 €
4.902 €/m²
4 Zimmer  â€˘  132 m²  â€˘  400 m² GrundstĂĽck

Neubau: Haus mit GrundstĂĽck - Ihr Eigenheim in Kehl-Sundheim!

Das Grundstück umfasst ca. 3.150 m² und bietet hervorragende Entwicklungsmöglichkeiten. Es ist teilbar ab ca. 250 m² - ideal für mehrere Einfamilienhäuser oder Doppelhaushälften. Die Parzellierung erlaubt flexible Grundstücksgrößen nach Wunsch und Bedarf. Die Topografie ist eben, was Aufwand und Kosten bei der Bebauung reduziert. Hier lassen sich Wohnträume verwirklichen - familiengerecht, modern und individuell.

Der angegebene Preis zeigt einen Indikationspreis eines Einfamilienhauses inklusive einem 450m² Grundstück.

Gerne besprechen wir Ihren individuellen Hausbau-Wunsch bei einer Grundstücksbesichtigung vor Ort. Die Bilder zeigen mögliche Bien-Zenker Häuser für das tolle Grundstück.

Für Ihren ganz persönlichen Traum vom Eigenheim könnten wir hier für Sie optimal ein ruhiges Wohnen mit eigenem Garten in zentraler Lage kombinieren.

Merkmale

  • 400 m² GrundstĂĽck
  • Kein Keller
  • Gäste-WC
  • Barrierefrei
  • Badezimmer: Badewanne, Bad mit Dusche, Bad mit Fenster
Ihr Traumhaus in hochwertiger Bien-Zenker-Qualität - inklusive:

? Modernes Energiesparhaus fĂĽr nachhaltiges Wohnen
? Bodenplatte - solide Basis fĂĽr Ihr Zuhause
? Fenster mit 3-fach-Isolierverglasung (Anzahl und Maße gemäß Grundriss)
? Effiziente Luft-Luft-Wärmepumpe mit integrierter Kühlfunktion
? Elektroinstallation inkl. Schalter und Steckdosen
? Estrich - perfekte Grundlage fĂĽr Ihren Bodenbelag
? Umfassendes Dämmpaket mit Beplankung für optimale Energieeffizienz
? LOXONE Smart Home Basic Paket - intelligentes Wohnen leicht gemacht
? Malerarbeiten fĂĽr eine perfekte Optik
? Hochwertige Innentüren (Anzahl gemäß Grundriss)
? Sanitärobjekte - stilvoll und funktional (wie im Grundriss vorgesehen)
? Edle Bodenbeläge für ein wohnliches Ambiente
? Elektrische Rollläden für mehr Komfort und Sicherheit

Und vieles mehr im Standard enthalten.....

?? SchlĂĽsselfertig - Einziehen und WohlfĂĽhlen!

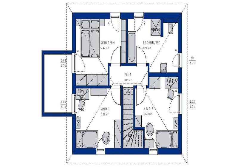
Grundrisse

Grundrisse
1 / 2

Realisiere Dein Projekt

Bausubstanz und Energie

Der Anbieter hat keine Informationen zum Energieverbrauch bereit gestellt.
  • Baujahr2026
  • Zustand der ImmobilieProjektiert
  • HeizungsartFuĂźbodenheizung
MediumRectangleTop

Preisdetails

Kaufpreis
647000 €
4.901,52 €/m²
Provision für Käufer
Bitte beachte, das Angebot kann bei Vertragsabschluss die Zahlung einer Provision beinhalten. Weitere Informationen erhältst Du vom Anbieter.
Geschätzte Gesamtkosten
715.388 €1
Kaufpreis
647.000 €
Notarkosten (1,5%)
9.705 €
Grunderwerbsteuer (5%)
32.350 €
Provision für Käufer (3,57%)
23.098 €
Grundbucheintrag (0,5%)
3.235 €
1Der angezeigte Wert ist eine automatisch berechnete Schätzung von immowelt.
2Bei den Angaben handelt es sich um ortsübliche Werte. Individuelle Kosten können abweichen.

Lage

address-icon
Kehl (77694)
Der Anbieter hat die genaue Adresse nicht freigegeben
Dieses attraktive Grundstück befindet sich in begehrter Wohnlage in Kehl-Sundheim, ruhig, aber dennoch sehr zentral. Die Nachbarschaft ist geprägt von gepflegten Einfamilienhäusern und Doppelhaushälften, begrünten Vorgärten und guter Infrastruktur. Einkaufsmöglichkeiten des täglichen Bedarfs, Cafés sowie Arztpraxen sind in wenigen Minuten erreichbar. Die Nähe zur Innenstadt von Kehl sowie zur Grenze nach Frankreich macht die Lage besonders attraktiv. Gute Verkehrsanbindung, attraktive Naherholungsgebiete und gleichzeitig viel Grün runden das Gesamtbild ab.

In Kehl-Sundheim lebt man in einer ruhigen, familienfreundlichen Umgebung mit guter Infrastruktur und zugleich hoher Nähe zu urbanem Leben, Kultur und grenzüberschreitender Mobilität. Wer hier baut, profitiert von kurzen Wegen zu Schulen, Betreuungseinrichtungen, Einkaufsmöglichkeiten und öffentlichem Nahverkehr - und zugleich von der Möglichkeit, sich individuell und großflächig zu entfalten.

Weitere Informationen

Stichworte Anzahl der Schlafzimmer: 3, Anzahl der Badezimmer: 2, 2 Etagen Sonstiges/Wohnen: Dachboden

Weitere Services

Lust auf eine Besichtigung?
Eine Frage zur Immobilie?
Nachricht hinzufĂĽgen
Mit der Nutzung der oben angegebenen Telefonnummer oder durch Klicken auf „Kontaktieren“ akzeptierst Du die Allgemeinen Nutzungsbedingungen, denen Du jederzeit widersprechen kannst. Weitere Informationen zum Datenschutz

Ăśber den Anbieter

Bien-Zenker GmbH
Bien-Zenker GmbHMaklerbĂĽro
Parzelle 6, 77966 Kappel-Grafenhausen
partner badge
Partnerschaft
Herr Altan Bohnert
Herr Altan BohnertDein Kontakt
Online-ID: 2nxyq5b
Referenznummer: 12655-1701
Bien-Zenker GmbH
title
Bien-Zenker GmbH
Bewertung: 5 von 5 Sternen
Nachricht hinzufĂĽgen
Mit der Nutzung der oben angegebenen Telefonnummer oder durch Klicken auf „Kontaktieren“ akzeptierst Du die Allgemeinen Nutzungsbedingungen, denen Du jederzeit widersprechen kannst. Weitere Informationen zum Datenschutz
MediumRectangleTop
MediumRectangleTop
Wie zufrieden bist du mit dieser Seite (nicht mit der Immobilie selbst)?