Version: 8.25.1Navigation überspringen
199.000 €
352 m² Grundstück
Immowelt logo

Grundstück zum Kauf • provisionsfrei
199000 €
565 €/m²
352 m² Grundstück

Grundstück für Doppelhaus in zentraler Lage von Lauenburg/Elbe – ideal für zwei Familien

Zum Verkauf steht ein Grundstück für ein Doppelhaus in zentraler Wohnlage von Lauenburg/Elbe (Büchener Weg).

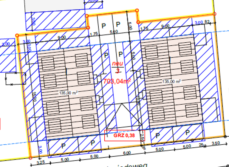
Die angebotene Fläche umfasst ca. 352 m² Grundstück und ist Teil eines insgesamt ca. 704 m² großen Grundstücks, für das ein positiver Bauvorbescheid zur Errichtung von zwei Doppelhäusern (4 Wohneinheiten) vorliegt.

Auf dem Grundstück kann ein modernes Doppelhaus mit zwei Wohneinheiten realisiert werden.
Pro Einheit sind ca. 100 m² Wohnfläche darstellbar – insgesamt also ca. 200 m² Wohnfläche.

Die geplante Bebauung sieht eine eingeschossige Bauweise mit Satteldach und zusätzlichem Dachgeschoss vor. Ein Kellerbau ist ebenfalls möglich.

Besonders attraktiv ist dieses Angebot für zwei Familien, Freunde oder Geschwister, die gemeinsam bauen und nebeneinander wohnen möchten, dabei aber jeweils ihr eigenes Haus besitzen.

Sie schaffen sich hier die perfekte Kombination aus Nähe und Privatsphäre – individuell planbar nach Ihren eigenen Vorstellungen.

Merkmale

  • 352 m² Grundstück
- Grundstück: ca. 352 m²
- Gesamtgrundstück: ca. 704 m²
- Positiver Bauvorbescheid vorhanden
- Geplante Bebauung: Doppelhaus (2 Wohneinheiten)
- Ca. 100 m² Wohnfläche je Einheit
- Ca. 200 m² Gesamtwohnfläche möglich
- Eingeschossig + Dachgeschoss (Satteldach)
- Kellerbau möglich
- Ideal für zwei Familien / Freunde / Generationenwohnen

Grundrisse

Grundrisse
1 / 1

Realisiere Dein Projekt

Bausubstanz und Energie

Möchtest du Details zum Energieverbrauch?info_energy_calculation-icon
Immowelt logo

Preisdetails

Kaufpreis
199000 €
565,34 €/m²
Provision für Käufer
provisionsfrei
Geschätzte Gesamtkosten
199.000 €1
Kaufpreis
199.000 €
1Der angezeigte Wert ist eine automatisch berechnete Schätzung von immowelt.

Lage

address-icon
Büchener WegLauenburg/Elbe (21481)
Das Grundstück befindet sich im Büchener Weg in Lauenburg/Elbe, in einer zentralen und gewachsenen Wohnlage.

Einkaufsmöglichkeiten, Schulen, Kindergärten sowie alle Einrichtungen des täglichen Bedarfs sind gut erreichbar. Die Umgebung eignet sich ideal für Familien und bietet eine angenehme Wohnatmosphäre.

Durch die gute Anbindung erreichen Sie sowohl das Umland als auch die Metropolregion Hamburg in kurzer Zeit.

Weitere Services

Lust auf eine Besichtigung?
Eine Frage zur Immobilie?
Nachricht hinzufügen
Mit der Nutzung der oben angegebenen Telefonnummer oder durch Klicken auf „Kontaktieren“ akzeptierst Du die Allgemeinen Nutzungsbedingungen, denen Du jederzeit widersprechen kannst. Weitere Informationen zum Datenschutz

Über den Anbieter

Neuer Wall 8, 20354 Hamburg-Mitte
Herr Boran SalliDein Kontakt
Online-ID: 267LC8GWVFG7
Salli's Immobiliengesellschaft mbH
Salli's Immobiliengesellschaft mbH
Nachricht hinzufügen
Mit der Nutzung der oben angegebenen Telefonnummer oder durch Klicken auf „Kontaktieren“ akzeptierst Du die Allgemeinen Nutzungsbedingungen, denen Du jederzeit widersprechen kannst. Weitere Informationen zum Datenschutz
Wie zufrieden bist du mit dieser Seite (nicht mit der Immobilie selbst)?