Version: 8.25.1Navigation überspringen
291.000 €
5 Zimmer  •  190 m²
Immowelt logo

Haus zum Kauf
291000 €
1.532 €/m²
5 Zimmer  •  190 m²

Haus 190m2 zum Kauf - Crikvenica, Dramalj, Klanfari

CRIKVENICA, DRAMALJ Altes Haus mit geplanter Luxusvilla und Meerblick

Der Bauantrag wurde im November 2025 eingereicht, alle Gebühren sind bezahlt, sodass die Umsetzung ohne weitere Verzögerungen zügig erfolgen kann.

Altes Haus mit geplanter Luxusvilla Meerblick, Privatsphäre und Dokumentation

Zum Verkauf steht ein Anwesen bestehend aus drei bestehenden Gebäuden: einem Wohnhaus, einer Garage und einer Taverne (zukünftiger Wellnessbereich). Alle Gebäude sind ordentlich geplant und befinden sich in ruhiger Lage, nur 400 m Luftlinie vom Meer entfernt. Die Lage garantiert ein hohes Maß an Privatsphäre ohne direkten Einblick in Nachbargebäude.

Auf dem Grundstück befindet sich bereits eine Garage von ca. 36 m sowie ein weiteres Gebäude, das für einen Wellnessbereich mit Whirlpool, Sauna, Dusche, WC und Waschküche von ca. 20 m vorgesehen ist. Dies erhöht die Funktionalität und den Wert der Immobilie.

Für das betreffende Grundstück wurde ein Projekt für den Bau einer Luxusvilla erstellt, wobei besonderer Wert auf Komfort, funktionale Raumaufteilung und optimale Nutzung des Außenbereichs, einschließlich eines Swimmingpools, gelegt wurde. Die Villa ist so konzipiert, dass sie vom Erdgeschoss aus Meerblick bietet.

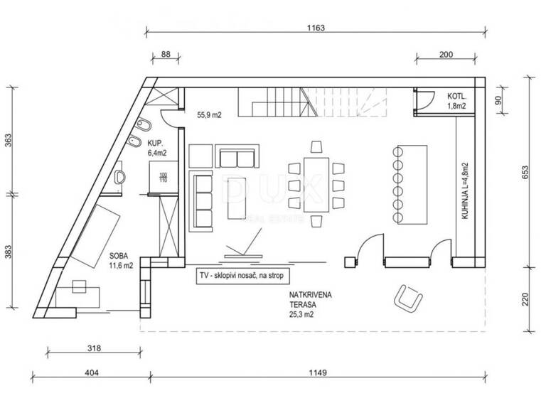
Laut Projekt besteht das Haus aus:

Erdgeschoss:

einem großzügigen Wohnzimmer mit offener Küche und Essbereich, einem Schlafzimmer, einem Badezimmer, einem Heizungsraum und Zugang zu einer überdachten Terrasse von ca. 25,5 m.

Obergeschoss:
drei Schlafzimmer, jeweils mit eigenem Badezimmer, darunter ein Hauptschlafzimmer (25 m) mit eigenem Bad und Whirlpool, ein Flur und ein geräumiger Balkon.

Die Bruttogeschossfläche der Villa beträgt ca. 190 m, die Gesamtfläche (einschließlich der überdachten Terrasse mit einem Anteil von 0,5) ca. 180 m.

Sehr geehrte Kunden, die Vermittlungsprovision wird gemäß den Allgemeinen Geschäftsbedingungen berechnet.

www.dux-nekretnine.hr/opci-uvjeti-poslovanja

ID CODE: 46427

Domagoj Ivezic
Agent s licencom
Mob: +385 97 6910 507
Tel: +385 91 480 8808
E-mail: domagoj@dux-nekretnine.hr
www.dux-nekretnine.hr

Merkmale

  • 1 Geschoss

Grundrisse

Grundrisse
1 / 2

Realisiere Dein Projekt

Bausubstanz und Energie

Möchtest du Details zum Energieverbrauch?info_energy_calculation-icon
Immowelt logo

Preisdetails

Kaufpreis
291000 €
1.531,58 €/m²
Provision für Käufer
Bitte beachte, das Angebot kann bei Vertragsabschluss die Zahlung einer Provision beinhalten. Weitere Informationen erhältst Du vom Anbieter.

Lage

address-icon
Dramalj, Klanfari
Der Anbieter hat die genaue Adresse nicht freigegeben

Weitere Informationen

Stichworte Anzahl der Schlafzimmer: 4, Anzahl der Badezimmer: 4, 1 Etagen

Weitere Services

Lust auf eine Besichtigung?
Eine Frage zur Immobilie?
Nachricht hinzufügen
Mit der Nutzung der oben angegebenen Telefonnummer oder durch Klicken auf „Kontaktieren“ akzeptierst Du die Allgemeinen Nutzungsbedingungen, denen Du jederzeit widersprechen kannst. Weitere Informationen zum Datenschutz

Über den Anbieter

Nova cesta 60, 10000 ZAGREB
DUX Real EstateDein Kontakt
Online-ID: 25RWMCGJRP1J
Referenznummer: 19611373_2
Crozilla.com
Crozilla.com
Nachricht hinzufügen
Mit der Nutzung der oben angegebenen Telefonnummer oder durch Klicken auf „Kontaktieren“ akzeptierst Du die Allgemeinen Nutzungsbedingungen, denen Du jederzeit widersprechen kannst. Weitere Informationen zum Datenschutz
Wie zufrieden bist du mit dieser Seite (nicht mit der Immobilie selbst)?