




Maisonette zum Kauf • provisionsfrei555000 €4.863 €/m²4 Zimmer • 114,1 m² • 2. Geschoss
555000 €
4.863 €/m²
4 Zimmer • 114,1 m² • 2. Geschoss
Bad Vilbel Kernstadt / Top Lage ruhig und zentral / von privat!
Merkmale
- Bezug: nach Absprache
- 2. Geschoss
- EinbaukĂĽche
- Kelleranteil
- Tiefgarage
- Balkon
- Garten
- Badewanne
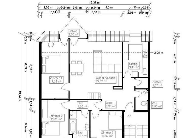
Grundrisse
Grundrisse
1 / 2
Realisiere Dein Projekt
Bausubstanz und Energie
Energieausweis
E
- Baujahr1993
- HeizungsartZentralheizung
- EnergieträgerGas
Preisdetails
Kaufpreis
555000 €
4.862,88 €/m²
Preis pro Stellplatz
12500 €
Hausgeld
385 €
Provision für Käufer
provisionsfrei; keine Provision, courtagefrei
Weitere Preisinformationen
1 Tiefgaragenstellplatz, Kaufpreis: 12.500,00 EUR
Geschätzte Gesamtkosten
599.400 €1
Kaufpreis
555.000 €
Kaufnebenkosten
44.400 €
2Notarkosten (1,5%)
8.325 €
Grunderwerbsteuer (6%)
33.300 €
Grundbucheintrag (0,5%)
2.775 €
1Der angezeigte Wert ist eine automatisch berechnete Schätzung von immowelt.
2Bei den Angaben handelt es sich um ortsübliche Werte. Individuelle Kosten können abweichen.
Lage

Bad Vilbel (61118)
Der Anbieter hat die genaue Adresse nicht freigegeben
Weitere Informationen
Weitere Services
Lust auf eine Besichtigung?
Eine Frage zur Immobilie?
Ăśber den Anbieter
Humboldtstr. 25 A, 21509 Glinde
Partnerschaft
Privat vom EigentĂĽmerDein Kontakt
Keine Telefonnummer hinterlegt
Keine Telefonnummer hinterlegt
Weitere Unterlagen
Online-ID: 2nfty5l
Referenznummer: 382357
Wie zufrieden bist du mit dieser Seite (nicht mit der Immobilie selbst)?




