Version: 8.25.1Navigation überspringen
365.000 €
11 Zimmer  •  333,4 m²  •  707 m² Grundstück  •  frei ab sofort
Immowelt logo

Mehrfamilienhaus zum Kauf
365000 €
1.095 €/m²
11 Zimmer  •  333,4 m²  •  707 m² Grundstück  •  frei ab sofort

Attraktives 5-Familienhaus in ruhiger Lage - Dachgeschoss frei!

Gern stellen wir Ihnen dieses attraktive Mehrfamilienhaus vor. Es ist in einer bevorzugter Wohnlage von Frankenberg zu finden. Das gepflegte Haus umfasst fünf Wohneinheiten mit pfiffigen Grundrissen, darunter eine 4-Raum-Wohnung, zwei 3-Raum-Wohnungen und zwei 2-Raum-Wohnungen.
Die Wohnungen sind bis auf die kleinste Wohnung alle mehretagig . Die Erdgeschoss-Wohnungen verfügen über je eine Terrasse und einen sehr hübschen privaten Gartenanteil und die Dachgeschoss-Wohnungen über Balkone. Die Ausrichtung nach Ost-Süd-West ist optimal, um reichlich Sonne zu genießen. Durch die großen Fensterflächen sind die Wohnräume ebenfalls von Licht erfüllt. Neben den feinen Details wie zum Beispiel Außenrollläden im Erdgeschoss, Gäste-WCs in fast allen Wohnungen und vielen Abstellmöglichkeiten zählen auch die Garage und die Stellplätze zu dem angebotenen Wohnkomfort. In den gemeinschaftlich genutzten Bereichen im Keller stehen den Bewohnern ein Trockenraum und ein Fahrradabstellraum zur Verfügung.

Aktuell sind die Wohnungen im Erdgeschoss vermietet. Die 3-Zimmer- und die 2-Zimmerwohnung im Dachgeschoss sind frei. Potentielle Mietinteressenten sind vorhanden. Jedoch wären die freien Wohnungen auch zur Eigennutzung geeignet. Um die Privatsphäre der Mieter zu schützen, sehen Sie in unserem Exposé unter anderem auch Bilder von Wohnungen gleichen Typs.
Möchten Sie dieses Haus gern persönlich kennenlernen? Kontaktieren Sie uns, wir stellen es Ihnen samt der Details gern vor.

Merkmale

  • Bezug: sofort
  • vermietet
  • 707 m² Grundstück
  • Keller
  • 4 Stellplätze: 2 Garagen, 4 Außen-Stellplätze
  • Gäste-WC
  • Balkon
  • Garten

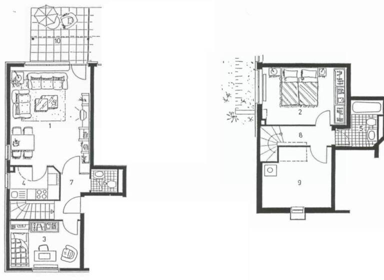
Grundrisse

Grundrisse
1 / 5

Realisiere Dein Projekt

Bausubstanz und Energie

Möchtest du Details zum Energieverbrauch?info_energy_calculation-icon
  • Baujahr1994
  • Zustand der ImmobilieNeubau, Gepflegt
  • HeizungsartZentralheizung
  • EnergieträgerGas
Immowelt logo

Preisdetails

Kaufpreis
365000 €
1.094,72 €/m²
Provision für Käufer
3,57 % inklusive gesetzlicher Mehrwertsteuer Käuferprovision
Weitere Preisinformationen
4 Stellplätze
2 Garagenstellplätze
Geschätzte Gesamtkosten
405.405 €1
Kaufpreis
365.000 €
Notarkosten (1,5%)
5.475 €
Grunderwerbsteuer (5,5%)
20.075 €
Provision für Käufer (3,57%)
13.030 €
Grundbucheintrag (0,5%)
1.825 €
1Der angezeigte Wert ist eine automatisch berechnete Schätzung von immowelt.
2Bei den Angaben handelt es sich um ortsübliche Werte. Individuelle Kosten können abweichen.

Lage

address-icon
MühlbachFrankenberg (09669)
Der Anbieter hat die genaue Adresse nicht freigegeben
Das Wohngebiet befindet sich am Stadtrand von Frankenberg. Es profitiert von der ruhigen und dennoch günstigen Lage zum Stadtzentrum. Lebensmittelmärkte für den täglichen Bedarf stehen in ca. 5 Minuten Fußweg zur Verfügung. Außerdem sind Ärzte, Restaurant und Kindergarten in der Nähe gelegen. Im Wohngebiet selbst gibt es einen attraktiven Spielplatz, so dass die verkehrsberuhigte Lage besonders für Kinder ideale Bedingungen schafft. Wenn Sie weiter weg fahren möchten, bringt Sie die B169 geschwind bis nach Chemnitz oder zum Autobahnanschluss der A4.

Weitere Informationen

Sonstiges Hinweis: Wir haben alle Angaben zur Immobilie vom Auftraggeber erhalten und übernehmen keine Gewähr für deren Richtigkeit und Vollständigkeit. Abgebildete Grundrisse dienen einer ersten Veranschaulichung. Sie sind nicht maßstabgetreu und mögliche dargestellte Einrichtungen gehören nicht zum Verkaufsgegenstand. Irrtum, Änderungen, Zwischenverkauf bleiben vorbehalten. Als Rechtsgrundlage gilt allein der abgeschlossene Kaufvertrag. Wir weisen darauf hin, dass wir auch für den Verkäufer provisionspflichtig tätig sind.

Gern laden wir Sie auf unsere Website www.immo-base.eu ein. Verschaffen Sie sich in aller Ruhe einen Rundumblick über alle Immobilienangebote von IMMObase oder kontaktieren Sie uns für ein persönliches Beratungsgespräch.

Weitere Services

Lust auf eine Besichtigung?
Eine Frage zur Immobilie?
Nachricht hinzufügen
Mit der Nutzung der oben angegebenen Telefonnummer oder durch Klicken auf „Kontaktieren“ akzeptierst Du die Allgemeinen Nutzungsbedingungen, denen Du jederzeit widersprechen kannst. Weitere Informationen zum Datenschutz

Über den Anbieter

Winklerstraße 4, 09669 Frankenberg
partner badge
10 Jahre Partnerschaft
Frau Dipl. Immobilienwirtin (FH) Susi RichterDein Kontakt
Online-ID: 26TVCKD37N9U
Referenznummer: K-2-051-FK (1/2525)
IMMObase
IMMObase
Bewertung: 4,3 von 5 Sternen
Nachricht hinzufügen
Mit der Nutzung der oben angegebenen Telefonnummer oder durch Klicken auf „Kontaktieren“ akzeptierst Du die Allgemeinen Nutzungsbedingungen, denen Du jederzeit widersprechen kannst. Weitere Informationen zum Datenschutz
Wie zufrieden bist du mit dieser Seite (nicht mit der Immobilie selbst)?