Version: 8.22.4Navigation überspringen
769 €
2 Zimmer  •  53,3 m²  •  1. Geschoss

Wohnung zur Miete
769.36 €
Nettokaltmiete
2 Zimmer  •  53,3 m²  •  1. Geschoss

Geräumige 2-Zimmer Wohnung inkl. Einbauküche und Freifläche - ab sofort verfügbar!

Herzlich willkommen in Ihrem neuen Zuhause!

Diese Neubauwohnungen liegen in unmittelbarer Nähe des idyllischen Erholungsgebiets Laaer Wald und bestechen durch gut durchdachte Grundrisse, lichtdurchflutete Räume sowie eine erstklassige Einbauküche und Freifläche (Balkon/Loggia/Garten).

Jede Wohneinheit verfügt über einen eigenen Einlagerungsraum im Kellergeschoss. Im Erdgeschoss stehen außerdem ein großzügiger Fahrrad- und Kinderwagenraum, eine Waschküche sowie Gemeinschaftsräume zur Verfügung. Zudem besteht die Möglichkeit, einen Stellplatz in der hauseigenen Tiefgarage für 120,00 € anzumieten.

Die Umgebung bietet eine tolle Infrastruktur mit Geschäften des täglichen Bedarfs, und dank der guten Anbindung an das öffentliche Verkehrsnetz ist das Wiener Stadtzentrum in kurzer Zeit erreichbar. Außerdem gelangen Sie durch die Autobahnauffahrt A23 in nur etwa 20 Minuten zum Westfield Shopping City Süd (SCS), wo Sie eine vielfältige Auswahl an Einkaufs- und Restaurantmöglichkeiten erwartet.

 

Das Projekt zeichnet sich besonders durch die folgenden Merkmale aus:

* Grünruhelage
* Wärmeerzeugung mittels Fernwärme
* Eichenparkettboden
* Großformatige Fliesen in den Nassbereichen
* Sicherheitseingangstüre
* Mehrfachisolierverglaste Fenster
* Außenliegender Sonnenschutz
* moderne Einbauküche
* Freifläche (Loggia/Balkon/Garten)
* Aufzug
* Waschküche
* Gemeinschaftsräume
* Tiefgaragenstellplätze (zusätzlich anmietbar)
* Fahrrad- und Kinderwagenraum
* Kellerabteil

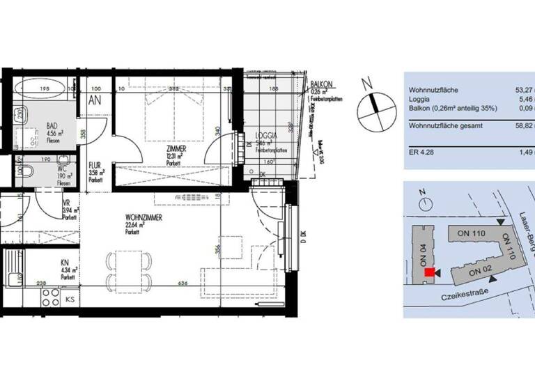
Wohnung Stiege 2 Top 28

Die Wohnung mit ca. 53,27 m² Wohnfläche und ca. 5,46 m² Loggia und 0,26 m² Balkon liegt im 1. Liftstock und gliedert sich in folgende Raumaufteilung:

* Vorraum: ca. 3,94 m²
* Wohnküche mit Küchennische: ca. 26,98 m²
* Zimmer: ca.  12,31 m²
* Flur: ca. 3,58 m²
* Bad: ca. 4,56 m²
* WC: ca. 1,90 m²

Der Wohnung ist ein Kellerabteil zugeordnet.

 

Aufgrund dessen, das die Wohnung derzeit noch bewohnt ist, weisen wir höflichst darauf hin, dass es sich bei den Fotos anbei um Musterfotos handelt!

Einige Bilder des Inserats wurden zum Zweck der besseren Visualisierung digital mit KI möbliert. Die Wohnung wird unmöbliert übergeben.

 

Mietkosten:

Der Mietpreis für die Wohnung beläuft sich auf 998,98 € (inkl. BK und USt)

Bei dem angeführten Mietpreis handelt es sich um die Kaltmiete, somit sind sämtliche Energiekosten wie Warmwasser-, Heiz- und Stromkosten nicht inkludiert!

 

Nebenkosten:

Kaution: 3 Bruttomonatsmieten

Mietvertragserrichtung: € 108,00 inkl. 20% USt.

 

Infrastruktur:

Das Projekt befindet sich in toller Lage des 10. Bezirks. In unmittelbarer Umgebung erwarten Sie nicht nur einige Einkaufsmöglichkeiten (Hofer, Spar, Lidl, dm), sondern auch hervorragende Freizeitmöglichkeiten (Böhmischer Prater, Erholungsgebiet Laaer Wald, Parkanlage Löwygrube, Kurpark Oberlaa). Außerdem erreichen Sie mit den öffentlichen Verkehrsmitteln in nur kurzer Zeit die Wiener Innenstadt und durch die Autobahnauffahrt A23 in nur ca. 20 Minuten das Westfield Shopping City Süd (SCS), wo Sie ebenso vielseitige Einkaufs- und Restaurantmöglichkeiten erwarten.

 

Öffentliche Verkehrsanbindungen:

* Bus Linien: 68A, 68B
* U-Bahn Linie: U1 - Altes Landgut

 

Energieausweis:

Der Heizwärmebedarf beträgt 23,51 kWh/m²a, welcher der Klasse A entspricht.

 

Für Fragen bzw. Besichtigungen steht Ihnen Frau Marija Ivanov sehr gerne unter anfrage26@teamneunzehn.at sowie unter +43 676 852 243 531 zur Verfügung.

Wir weisen darauf hin, dass zwischen dem Vermittler und dem zu vermittelnden Dritten ein familiäres oder wirtschaftliches Naheverhältnis besteht.

Der Immobilienmakler erklärt, dass er - entgegen dem in der Immobilienwirtschaft üblichen Geschäftsgebrauch des Doppelmaklers - einseitig nur für den Vermieter tätig ist.

"Leben braucht Raum" * T19-RE Real Estate GmbH & Co KG * www.teamneunzehn.at [https://www.teamneunzehn.at]

Doppelmakler

Wir werden als Immobilienmakler kraft bestehenden Geschäftsgebrauchs als Doppelmakler tätig und haben sohin beide Seiten des Vertrages (Verkäufer-Käufer, Vermieter-Mieter) zu unterstützen.

Wirtschaftliches Naheverhältnis

Es wird bekannt gegeben, dass folgendes wirtschaftliches Naheverhältnis zwischen der teamneunzehn-Gruppe und dem Verkäufer/der vermietenden Partei besteht: ständige und dauerhafte Beauftragung mit der Vermittlung des bestehenden Immobilienportfolios

Haftungserklärung zum Inserat

Irrtum und Änderungen vorbehalten! Sofern es sich bei Bildern um Visualisierungen handelt, können Abänderungen zur tatsächlichen Ausführung resultieren. Wir weisen ausdrücklich darauf hin, dass das auf Fotos oder Visualisierungen ersichtliche Mobiliar bzw. Inventar nicht Bestandteil des inserierten Preises ist.

 

 

Infrastruktur / Entfernungen

Gesundheit
Arzt <700m
Apotheke <625m
Klinik <1.550m
Krankenhaus <3.300m

Kinder & Schulen
Schule <425m
Kindergarten <625m
Universität <950m
Höhere Schule <3.025m

Nahversorgung
Supermarkt <325m
Bäckerei <825m
Einkaufszentrum <1.225m

Sonstige
Geldautomat <1.200m
Bank <1.200m
Post <1.225m
Polizei <725m

Verkehr
Bus <250m
U-Bahn <675m
Straßenbahn <725m
Bahnhof <675m
Autobahnanschluss <550m

Angaben Entfernung Luftlinie / Quelle: OpenStreetMap

Merkmale

  • Bezug: ab sofort
  • 1. Geschoss
  • Personenaufzug
  • Balkon
  • Badewanne
  • Waschraum
  • Bodenbelag: Fliesen, Parkett
  • Loggia

Grundrisse

Grundrisse
1 / 1

Realisiere Dein Projekt

Bausubstanz und Energie

Heizwärmebedarf (HWB)

A

Gesamtenergieeffizienz (fGEE)

A
  • Zustand der ImmobilieNeubau, Fertighaus, neuwertig
  • HeizungsartZentralheizung
  • EnergieträgerFernwärme

Mietkosten

Gesamtmiete
998,98 €
Nettokaltmiete
17,05 €/m²
769,36 €
Betriebskosten
138,80 €
Kaution
3 Bruttomonatsmieten
Weitere Preisinformationen
Nettokaltmiete: 769,36 EUR

Lage

address-icon
Czeikestraße 4Wien (1100)
Böhmischer Prater, Löwygrube, Erholungsgebiet Laaer Wald, Kurpark Oberlaa, Südosttangente A23

Weitere Informationen

Stichworte Tiefgarage vorhanden, Ost-Balkon/Terrasse, Fahrradraum, Nutzfläche: 58,99 m², Gesamtfläche: 58,99 m², Freifläche: 5,72 m², Anzahl der Badezimmer: 1, Anzahl der separaten WCs: 1, Anzahl Balkone: 1, Anzahl Loggias: 1, Balkon-Terrassen-Fläche: 5,72 m², Bundesland: Wien, 8 Etagen, Wohnungsnr.: 28

Weitere Services

Lust auf eine Besichtigung?
Eine Frage zur Immobilie?
Nachricht hinzufügen
Mit der Nutzung der oben angegebenen Telefonnummer oder durch Klicken auf „Kontaktieren“ akzeptierst Du die Allgemeinen Nutzungsbedingungen, denen Du jederzeit widersprechen kannst. Weitere Informationen zum Datenschutz

Über den Anbieter

Handelskai 94-96/44. Stock, 1200 BRIGITTENAU
partner badge
Partnerschaft
Frau Marija IvanovDein Kontakt
Online-ID: 2nfbp5e
Referenznummer: OBGC202504151449375546a4a2cd5f8
team19 Immobilien GmbH
Bewertung: 3,3 von 5 Sternen
Nachricht hinzufügen
Mit der Nutzung der oben angegebenen Telefonnummer oder durch Klicken auf „Kontaktieren“ akzeptierst Du die Allgemeinen Nutzungsbedingungen, denen Du jederzeit widersprechen kannst. Weitere Informationen zum Datenschutz
Wie zufrieden bist du mit dieser Seite (nicht mit der Immobilie selbst)?