Version: 8.24.0Navigation überspringen
ImmoFerreira
459.990 €
3 Zimmer  •  84 m²  •  3. Geschoss

Wohnung zum Kauf • provisionsfrei
459990 €
5.476 €/m²
3 Zimmer  •  84 m²  •  3. Geschoss

*Provisionsfrei für den Käufer bis 15.03.2026* Ein Zuhause mit Weitblick und großem Balkon

Im 3. Obergeschoss eines gepflegten Mehrfamilienhauses erwartet Sie eine Wohnung, die Lebensqualität und Investitionssicherheit auf besondere Weise verbindet. Dank Aufzug ist sie komfortabel erreichbar - ein entscheidender Vorteil für ältere Paare, Familien mit Kind oder langfristig denkende Kapitalanleger.

Das großzügige Wohnzimmer mit seiner beeindruckenden Fensterfront bildet den Mittelpunkt der Wohnung. Tageslicht durchflutet den Raum und schafft eine offene, freundliche Atmosphäre. Von hier aus betreten Sie den Balkon - ein Ort mit echtem Mehrwert: freier Blick Richtung Alpen. Ein Panorama, das jeden Tag aufs Neue begeistert und die Immobilie deutlich von vergleichbaren Angeboten abhebt.

Das gemütliche Schlafzimmer bietet Ruhe und Rückzug.
Ein weiteres Zimmer eröffnet vielfältige Nutzungsmöglichkeiten:
Homeoffice mit Weitblick, kreativer Hobbyraum oder liebevoll gestaltetes Kinderzimmer - hier passt sich der Grundriss Ihrem Lebensmodell an.

Die separate Einbauküche schafft Platz für schöne Kochabende und das Fenster sorgt tagsüber für angenehmes Licht beim Kochen.

Ihr Badezimmer mit Badewanne lädt zum Entspannen ein. Genießen Sie die Zeit für sich.

Der große Eingangsbereich schafft Raum zum Ankommen. Er empfängt mit Offenheit, bietet Stauraum und verbindet alle Räume auf harmonische Weise miteinander.

Zusätzlichen Stauraum im Alltag bietet das eigene Kellerabteil.

Für Ihr Fahrzeug steht Ihnen in der erst kürzlich sanierten Tiefgarage ein Duplex-Stellplatz zur Verfügung.

Diese Wohnung vereint Komfort, Lage und ein Wohngefühl, das man nicht beschreiben, sondern erleben muss. Sie ist gemacht für Menschen, die Weitblick schätzen - im wörtlichen wie im übertragenen Sinn.

Vereinbaren Sie jetzt Ihren Besichtigungstermin - Wir freuen uns auf Sie.

Merkmale

  • Bezug: Nach Absprache
  • vermietet
  • 3. Geschoss
  • Einbauküche
  • Personenaufzug
  • Kelleranteil
  • Außen-Stellplatz
  • Balkon

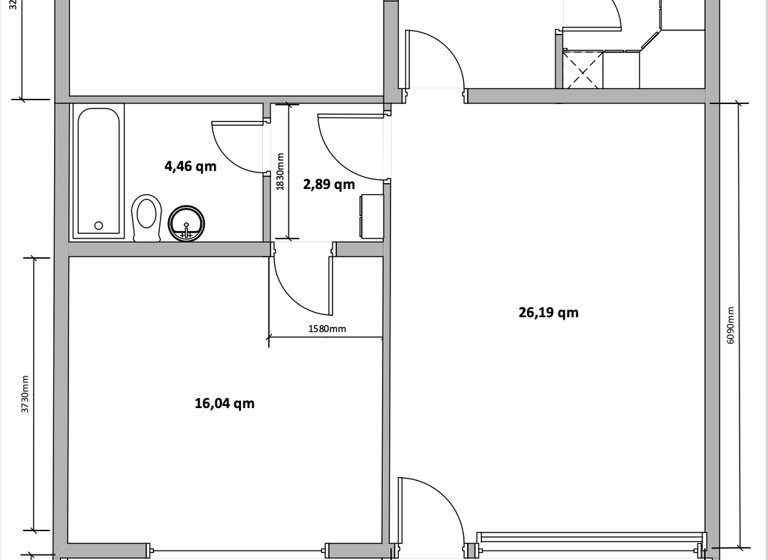
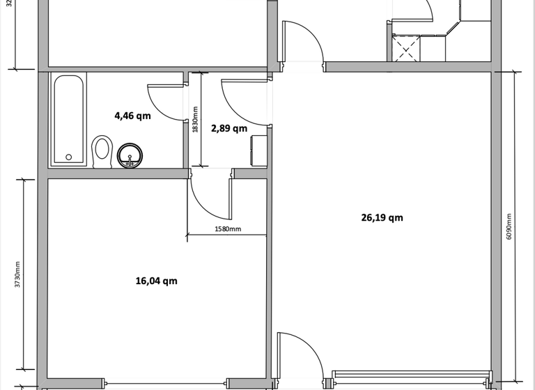
Grundrisse

Grundrisse
1 / 1

Virtueller Rundgang

3D tour

Realisiere Dein Projekt

Bausubstanz und Energie

Energieausweis

D
  • Baujahr1972
  • Zustand der ImmobilieGepflegt
  • EnergieträgerGas
MediumRectangleTop

Preisdetails

Kaufpreis
459990 €
5.476,07 €/m²
Preis pro Stellplatz
20000 €
Hausgeld
387.65 €
Provision für Käufer
provisionsfrei
Weitere Preisinformationen
1 Stellplatz, Kaufpreis: 20.000,00 EUR
Geschätzte Gesamtkosten
485.290 €1
Kaufpreis
459.990 €
Notarkosten (1,5%)
6.900 €
Grunderwerbsteuer (3,5%)
16.100 €
Grundbucheintrag (0,5%)
2.300 €
1Der angezeigte Wert ist eine automatisch berechnete Schätzung von immowelt.
2Bei den Angaben handelt es sich um ortsübliche Werte. Individuelle Kosten können abweichen.

Lage

address-icon
Siedlerstraße 31LohhofUnterschleißheim (85716)
Die Siedlerstraße 31 liegt in einem gewachsenen Wohngebiet, das für seine ruhige Atmosphäre und seine nachbarschaftliche Geborgenheit geschätzt wird. Hier pulsiert nicht der Lärm der Großstadt, sondern das echte Leben - mit Kindergelächter auf den Straßen, dem Duft blühender Gärten im Frühling und der Verlässlichkeit einer starken Gemeinschaft.

Nur einen Steinwurf entfernt entfaltet sich das volle Potenzial dieser Lage: Ob Einkaufsmöglichkeiten, charmante Cafés, Sportanlagen oder kulturelle Angebote - alles ist bequem erreichbar. Die hervorragende Anbindung an die Münchner Innenstadt über die S-Bahn (Linie S1) sowie die Nähe zur A92 machen diesen Standort besonders attraktiv für Pendler und Vielreisende.

Doch es ist nicht nur die Infrastruktur, die überzeugt - es ist das Gefühl, angekommen zu sein. Unterschleißheim steht für moderne Lebensqualität, wirtschaftliche Stärke und gleichzeitig für Naherholung pur. In wenigen Minuten erreichen Sie das Ufer des Mallertshofer Sees, die endlosen Wälder des Unterschleißheimer Moos oder die weitläufigen Rad- und Wanderwege, die zu jeder Jahreszeit Erholung und neue Energie schenken.

Die Siedlerstraße 31 ist mehr als nur eine Adresse - sie ist ein Ort zum Wurzeln schlagen, zum Aufblühen, zum Bleiben. Wer hier wohnt, entscheidet sich bewusst für eine Verbindung von Ruhe und Dynamik, von Heimatgefühl und Zukunftsperspektive.

Weitere Informationen

Sonstiges Hinweis zu Angaben und Geldwäschegesetz:
Alle Größenangaben stammen von den Eigentümern bzw. Architekten. Eine Haftung für deren Richtigkeit wird daher nicht übernommen. ImmoFerreira ist gemäß § 2 Abs. 1 Nr. 14 und § 10 Abs. 3 Geldwäschegesetz (GwG) als immobilienvermittelndes Unternehmen verpflichtet, bei Begründung einer Geschäftsbeziehung die Identität des Vertragspartners festzustellen und zu überprüfen. Hierzu ist es notwendig, dass wir gemäß § 11 GwG die relevanten Daten Ihres Personalausweises erfassen (bei natürlichen Personen) - beispielsweise durch eine Kopie. Bei juristischen Personen benötigen wir eine Kopie des Handelsregisterauszugs, aus dem der wirtschaftlich Berechtigte hervorgeht. Das Geldwäschegesetz verpflichtet uns, die Kopien bzw. Unterlagen für fünf Jahre aufzubewahren.

Der zwischenzeitliche Verkauf an einen anderen Interessenten bleibt vorbehalten. Dieses Angebot ist nur für Sie bestimmt. Sofern das Objekt Ihnen bereits bekannt ist, bitten wir um schriftlichen Widerspruch mit entsprechendem Nachweis innerhalb von 48 Stunden.

---

Provision:
Der Verkäufer trägt die Provision in Höhe von 3,57 % des Kaufpreises inklusive Mehrwertsteuer.

Kaufpreis Wohnung: 459.990 €
Kaufpreis Garage: 10.000 €
Gesamtkaufpreis: 469.000 € Stichworte Duplex-Stellplatz vorhanden, Anzahl der Schlafzimmer: 2, Anzahl der Badezimmer: 1, Anzahl Balkone: 1

Weitere Services

Lust auf eine Besichtigung?
Eine Frage zur Immobilie?
Nachricht hinzufügen
Mit der Nutzung der oben angegebenen Telefonnummer oder durch Klicken auf „Kontaktieren“ akzeptierst Du die Allgemeinen Nutzungsbedingungen, denen Du jederzeit widersprechen kannst. Weitere Informationen zum Datenschutz

Über den Anbieter

ImmoFerreira
ImmoFerreiraMaklerbüro
Bürgerplatz 5, 85748 Garching
partner badge
Partnerschaft
Frau Stefanie Landesberger
Frau Stefanie LandesbergerDein Kontakt
Online-ID: 2mxby5g
Referenznummer: 117100349#r85vq4
ImmoFerreira
title
ImmoFerreira
Bewertung: 3,8 von 5 Sternen
Nachricht hinzufügen
Mit der Nutzung der oben angegebenen Telefonnummer oder durch Klicken auf „Kontaktieren“ akzeptierst Du die Allgemeinen Nutzungsbedingungen, denen Du jederzeit widersprechen kannst. Weitere Informationen zum Datenschutz
MediumRectangleTop
MediumRectangleBottom
MediumRectangleTop
Wie zufrieden bist du mit dieser Seite (nicht mit der Immobilie selbst)?