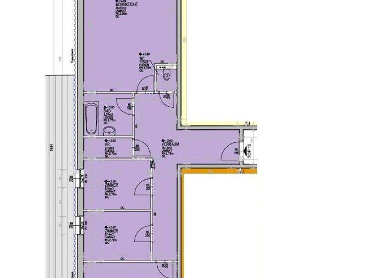
Diese großzügige und lichtdurchflutete Wohnung in ruhiger Lage auf der Ennsleite in Steyr überzeugt durch ihre durchdachte Raumaufteilung und den schönen Blick ins Grüne. Die Wohnfläche beträgt ca. 90,60 m².
Die Wohnung befindet sich im 1. Obergeschoss eines gepflegten Mehrparteienhauses und ist bequem mittels Lift erreichbar. Das Herzstück der Wohnung bildet der großzügige Wohn- und Essbereich mit Einbauküche, der viel Raum für gemeinsames Wohnen und individuelle Gestaltung bietet. Ergänzt wird das Raumangebot durch ein großes Schlafzimmer sowie zwei weitere, flexibel nutzbare Zimmer, die sich ideal als Kinderzimmer, Büro oder Ankleide eignen.
Das Badezimmer ist mit einer Badewanne ausgestattet, das WC ist separat angeordnet. Ein praktischer Abstellraum sorgt für zusätzlichen Stauraum im Alltag.
Besonders hervorzuheben ist die helle und freundliche Wohnatmosphäre sowie der schöne Blick ins Grüne, der für ein angenehmes Wohngefühl sorgt.
Ein ca. 3 m² großes Kellerabteil ist der Wohnung zugeordnet. Ein Tiefgaragenplatz kann optional um € 55,-- pro Monat angemietet werden.
Diese Wohnung eignet sich ideal für Paare oder Familien, die großzügiges Wohnen in zentraler und naturnaher Lage in Steyr schätzen.
Merkmale
Bezug: sofort
Personenaufzug
Einbauküche
Badewanne
Gäste-WC
Bodenbelag: Fliesen, Laminat
Tiefgarage
Aktuell werden die Wohnungen mit Gas beheizt, eine bereits geplante Hackschnitzelheizung sorgt künftig für eine effizientere und nachhaltigere Wärmeversorgung.
Der Anbieter hat die genaue Adresse nicht freigegeben
Die Wohnung punktet mit einer ausgezeichneten Infrastruktur: * Einkaufsmöglichkeiten direkt beim Objekt * Weitere Geschäfte, Apotheken, Ärzte, Bäcker, Schulen und Kindergärten in unmittelbarer Nähe * Bushaltestelle direkt vor dem Haus, Bahnhof ca. 15 Gehminuten entfernt.
Der Stadtplatz von Steyr mit vielfältiger Gastronomie und Einkaufsmöglichkeiten ist ebenfalls bequem zu Fuß erreichbar.
Die Nähe zum Damberg - dem Hausberg von Steyr - bietet ideale Möglichkeiten für Erholung in der Natur. Das beliebte Naherholungsgebiet lädt zu Spaziergängen und Wanderungen ein, darunter auch die bekannte Schwarzbergrunde mit schönen Ausblicken. Auch für Mountainbiker ist das Gebiet bestens geeignet.
Weitere Informationen
Stichworte
Anzahl der Schlafzimmer: 3, Anzahl der Badezimmer: 1, Anzahl der separaten WCs: 1, Kellerfläche: 3,00 m², Bundesland: Oberösterreich, Distanz zum Kindergarten: 0.70, Distanz zur Grundschule: 0.80, Distanz vom Zentrum: 1.50