Version: 8.25.1Navigation überspringen
471.000 €
3 Zimmer  •  2. Geschoss
Immowelt logo

Wohnung zum Kauf
471000 €
3 Zimmer  •  2. Geschoss

BRODARICA - ERSTE REIHE ZUM MEER, 2-ZIMMER-WOHNUNG, S6-B1

Zum Verkauf steht die Wohnung S6, die sich im zweiten Stock eines modernen Neubaus im Ortsteil Brodarica, in unmittelbarer Nähe von Sibenik, befindet.

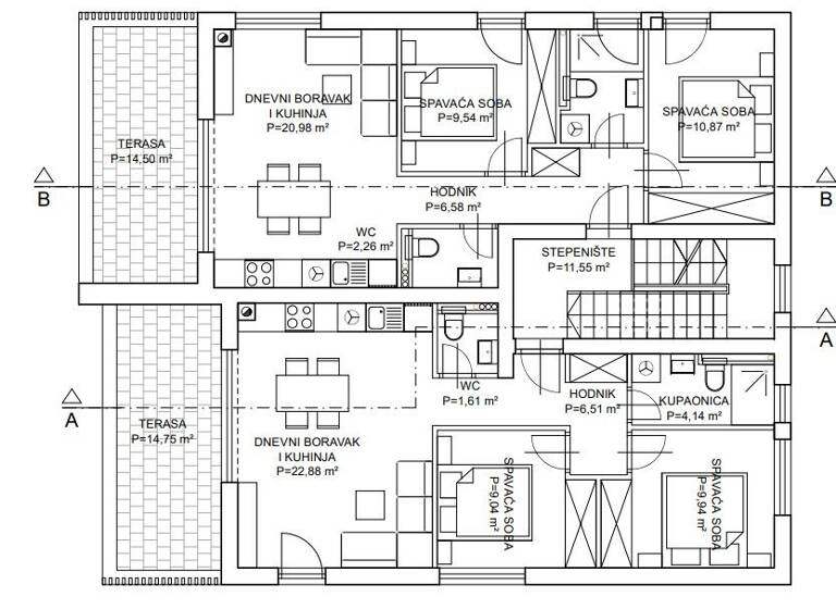
Die Gesamtfläche der Wohnung beträgt 72,62 m² und besteht aus einem Eingangsbereich, einem Wohnzimmer mit Küche und Essbereich, zwei Schlafzimmern, einem Badezimmer, einem separaten WC sowie einem Zugang zur Terrasse und einem eigenen Parkplatz.

Das Gebäude wird nach modernen Baustandards errichtet, mit besonderem Fokus auf hochwertige Materialien und Verarbeitung. Zur Ausstattung gehören erstklassige Tischlerei, moderne Keramik sowie hochwertige Sanitäreinrichtungen.

Die Lage ist sowohl für den täglichen Wohnbedarf als auch für Erholungszwecke äußerst geeignet, da sich der Strand nur 10 Meter entfernt befindet.

Für weitere Informationen oder zur Vereinbarung eines Besichtigungstermins stehen wir Ihnen gerne zur Verfügung.

ID CODE: 500

Merkmale

  • 2. Geschoss

Grundrisse

Grundrisse
1 / 1

Realisiere Dein Projekt

Bausubstanz und Energie

Möchtest du Details zum Energieverbrauch?info_energy_calculation-icon
  • Baujahr2026
Immowelt logo

Preisdetails

Kaufpreis
471000 €
Provision für Käufer
Bitte beachte, das Angebot kann bei Vertragsabschluss die Zahlung einer Provision beinhalten. Weitere Informationen erhältst Du vom Anbieter.

Lage

address-icon
Sibenik - Okolica (22000)
Der Anbieter hat die genaue Adresse nicht freigegeben

Weitere Informationen

Stichworte Gesamtfläche: 72,00 m², Anzahl der Schlafzimmer: 2, Anzahl der Badezimmer: 1, Anzahl der separaten WCs: 1, Anzahl der Wohn-Schlafzimmer: 1, 2 Etagen, Nebenzentrumslage

Weitere Services

Lust auf eine Besichtigung?
Eine Frage zur Immobilie?
Nachricht hinzufügen
Mit der Nutzung der oben angegebenen Telefonnummer oder durch Klicken auf „Kontaktieren“ akzeptierst Du die Allgemeinen Nutzungsbedingungen, denen Du jederzeit widersprechen kannst. Weitere Informationen zum Datenschutz

Über den Anbieter

Prilaz Kikova 4, 52220 LABIN
partner badge
Partnerschaft
Andro JakolisDein Kontakt
Online-ID: 26TBF7UVT1I1
Referenznummer: 4565-500
LABIN d.o.o.
Nachricht hinzufügen
Mit der Nutzung der oben angegebenen Telefonnummer oder durch Klicken auf „Kontaktieren“ akzeptierst Du die Allgemeinen Nutzungsbedingungen, denen Du jederzeit widersprechen kannst. Weitere Informationen zum Datenschutz
Wie zufrieden bist du mit dieser Seite (nicht mit der Immobilie selbst)?