Version: 8.24.1Navigation überspringen
15,50 €
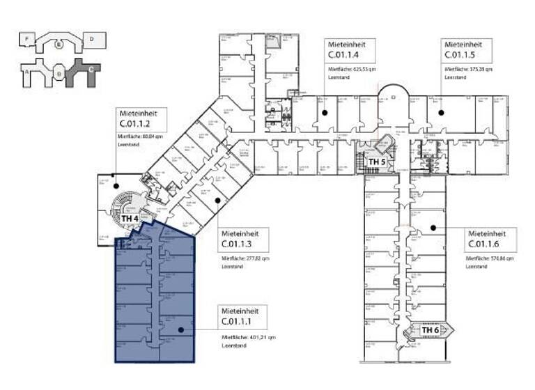
401 m² Bürofläche  •  teilbar ab 265 m²
Immowelt logo

Bürofläche zur Miete • provisionsfrei
15,50 €
/m²
401 m² Bürofläche  •  teilbar ab 265 m²

Individuelle und moderne Büros ... Für jeden Geschmack das Richtige

Kurzbeschreibung Individuelle und moderne Büros ... Für jeden Geschmack das Richtige Objekt Das großzügige Areal 'SonnenHöfe' liegt zentral in Unterhaching mit guter Verkehrsanbindung an die A8. Auf dem hübsch angelegten und attraktiv begrünten Gelände befindet sich ein 4-Sterne-Hotel mit Konferenzräumen, Cateringmöglichkeit, Bar, Restaurant und Biergarten. Die Eingänge und Treppenhäuser der modernen Gebäude wurden neu gestaltet, so dass ein repräsentativer Gesamteindruck entsteht. Die individuellen und hellen Büroflächen werden den Bedürfnissen der neuen Mieter angepasst.

Merkmale

  • Bezug: nach Vereinbarung
  • Personenaufzug
  • Raumaufteilung flexibel
  • Bodenbelag: Teppich
- neuer Bodenbelag in Absprache mit dem neuen Mieter
- Deckenrasterleuchten oder Pendelleuchten
- Brüstungskabelkanäle für die IT-Verkabelung
- Glasfaseranschluss im Haus
- Duschen auf Anfrage nachrüstbar
- Personenlifts in allen Häusern
- Kühlung auf Anfrage nachrüstbar
- normale Raumhöhe, in einigen Flächen Dachschrägen

Grundrisse

Grundrisse
1 / 1

Realisiere Dein Projekt

Bausubstanz und Energie

Energieausweis

Endenergieverbrauch (Wärme)

Endenergieverbrauch (Strom)

  • Baujahr1992
  • Zustand der Immobilieneuwertig
  • HeizungsartZentralheizung
Immowelt logo

Mietkosten

Monatliche Miete
15,50 €/m²
Provision für Mieter
provisionsfrei
Kaution
keine Angabe

Lage

address-icon
Unterhaching (82008)
Der Anbieter hat die genaue Adresse nicht freigegeben
- südlich von München, entlang der A8
- S-Bahn Taufkirchen
- im nahen Umfeld findet man in einem Gewerbegebiet Bäckereien, Supermärkte, eine Drogerie sowie weitere Geschäfte für den täglichen Bedarf und ein Fitnessstudio
- gute Infrastruktur an Restaurants und Cafés in der Umgebung, ein Hotel mit Catering- und Mittagsangebot befindet sich auf dem Gelände

Weitere Informationen

Sonstiges - Stellplätze in der Tiefgarage sowie Außenstellplätze (Mietpreis auf Anfrage)
- E-Ladestellplätze verfügbar
- ausreichend Archivflächen vorhanden (Mietpreis auf Anfrage)
- Gewerbesteuerhebesatz von 295 %
- die dargestellten Impressionen zeigen Ausbaubeispiele aus dem Gebäude
- BREEAM-Sehr gut
- ein Energieverbrauchsausweis (gültig bis 17. Februar 2031) liegt vor, der Verbrauchskennwert für Wärme beträgt 75 kWh/(m²*a) und für Strom 31 kWh/(m²*a), wesentlicher Energieträger für die Heizung des Gebäudes ist Nahwärme Stichworte Energieversorgung mit alternativen Energien, Gesamtfläche: 401,00 m²

Weitere Services

Lust auf eine Besichtigung?
Eine Frage zur Immobilie?
Nachricht hinzufügen
Mit der Nutzung der oben angegebenen Telefonnummer oder durch Klicken auf „Kontaktieren“ akzeptierst Du die Allgemeinen Nutzungsbedingungen, denen Du jederzeit widersprechen kannst. Weitere Informationen zum Datenschutz

Über den Anbieter

Breitwieser Roth GmbH
Innere Wiener Str. 7b, 81667 München
partner badge
Partnerschaft
Online-ID: 2j2r659
Referenznummer: 11556
Breitwieser Roth GmbH
Breitwieser Roth GmbH
Bewertung: 5 von 5 Sternen
Nachricht hinzufügen
Mit der Nutzung der oben angegebenen Telefonnummer oder durch Klicken auf „Kontaktieren“ akzeptierst Du die Allgemeinen Nutzungsbedingungen, denen Du jederzeit widersprechen kannst. Weitere Informationen zum Datenschutz
Wie zufrieden bist du mit dieser Seite (nicht mit der Immobilie selbst)?