Version: 8.26.0Navigation überspringen
6.000 €
792 m² Lagerfläche
Immowelt logo

Lagerhalle zur Miete
6.000 €
792 m² Lagerfläche

NEU - Halle / Büro / Werkstatt im Gewerbegebiet-Ost zu vermieten

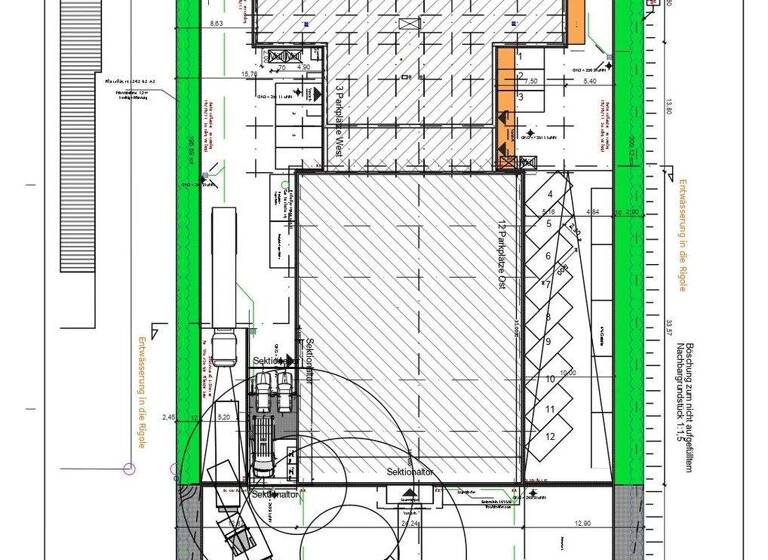
Dieses Objekt verfügt über insgesamt ca. 1.182 m², welche sich wie folgt verteilten: EG Halle und Büro sowie Werkstatt Lagerhalle: ca. 792 m² Bürofläche EG: ca. 161 m² Bürofläche OG: ca. 161 m² Werkstatt: ca. 49 m² Wasch/WC/Dusche/Umkleide (Nebenflächen): ca. 19 m² Freifläche: ca. 1.000 m² Circa 40 Stellplätze sind am Objekt vorhanden. Der Mietpreis liegt hier bei EUR 1.085,00 insgesamt für 40 Stellplätze. zzgl. MwSt. Die Halle verfügt über eine Rampe, Direkteinfahrt ist ebenso möglich, sowie eine komplette Umfahrbarkeit der Halle. Das Abstellen von Containern oder div. Fuhrpark ist möglich. Bei einer Hallenanmietung ist es nicht zwingend erforderlich, die gesamten Büroflächen mit anzumieten. Eine Teilanmietung der Büroflächen ist möglich. Der Mietbeginn wäre geplant für 01.09.2026 oder nach Absprache. Die vom Vermieter gewünschte Mietdauer liegt bei ca. 5/10 Jahren + Option oder nach Absprache. Der Mietpreis liegt bei EUR 6.000,00 zzgl. Nebenkostenvorauszahlung von EUR 1.000,00, zzgl. 19 Prozent gesetzliche Mehrwertsteuer.

Merkmale

  • frei ab 01.09.2026
  • 60-120 Monate
  • Erdgeschoss
  • 1.182 m² Grundstück
  • Kochnische
  • 40 Außen-Stellplätze
  • DSL-Anschluss
- Hausmeister vorhanden - gehoben/gepflegt - Fliesenboden - getrenntes Damen- und Herrn WC, Laderampe, LKW- Zufahrt, Teeküche - teilweise klimatisiert

Grundrisse

Grundrisse
1 / 1

Bausubstanz und Energie

Energieausweis

Endenergiebedarf (Wärme)

Endenergiebedarf (Strom)

  • Zustand der ImmobilieGepflegt
  • HeizungsartZentralheizung
  • EnergieträgerGas
Immowelt logo

Mietkosten

Warmmiete
7.000 €
Nettomiete
6.000 €
Nebenkosten
1.000 €
Heizkosten
in Nebenkosten enthalten
Zusätzliche Kosten
Miete pro Stellplatz
1.085 €
Provision für Mieter
3,57 Monatskaltmieten inkl. MwSt. derzeit 19 Prozent
Kaution
3 Monatskaltmieten

Lage

address-icon
LengfeldWürzburg (97076)
Der Anbieter hat die genaue Adresse nicht freigegeben
Sehr gute Lage im Gewerbegebiet-Ost

Weitere Informationen

Haftungsausschluss: Die in diesem Inserat getroffenen Aussagen über Lage, Beschaffenheit, Größe und Konditionen der Immobilie bzw. des Grundstückes sind Ca.-Werte und erfolgen nach bestem Wissen und Gewissen. Die Informationen werden Auinger & Partner Gewerbe-Immobilien von Dritten übermittelt und sorgfältig aufbereitet. Auinger & Partner Gewerbe- Immobilien haftet nicht für die Richtigkeit bzw. die Vollständigkeit und Aktualität dieser Informationen. Gleiches gilt für die beigefügten Anlagen. Abweichungen der vorgenannten Angaben, Irrtum, Zwischenvermietung und Zwischenverkauf bleiben vorbehalten. Die Inserate erfolgen freibleibend und unverbindlich. Kontakt/Besichtigungen: Haben wir Ihr Interesse geweckt? Dann zögern Sie nicht und kontaktieren Sie uns gleich unter 0931–452700 oder per E-Mail unter info[at]auinger-immobilien.de Bitte beachten Sie, dass wir nur Anfragen beantworten können, bei denen uns Name und Anschrift inklusive Telefonnummer des Interessenten vorliegen. Wir freuen uns von Ihnen zu hören!

Weitere Services

Lust auf eine Besichtigung?
Eine Frage zur Immobilie?
Mit einer persönlichen Nachricht hast du bessere Chancen auf eine Antwort.
Mit der Nutzung der oben angegebenen Telefonnummer oder durch Klicken auf „Kontaktieren“ akzeptierst Du die Allgemeinen Nutzungsbedingungen, denen Du jederzeit widersprechen kannst. Weitere Informationen zum Datenschutz

Über den Anbieter

Theaterstraße 1-3, 97070 Würzburg
partner badge
10 Jahre Partnerschaft
Herr Bernd Auinger ============ Auinger & Partner Gewerbe-ImmobilienDein Kontakt

Weitere Unterlagen

Online-ID: 26IRG575DQBH
Referenznummer: Halle04
Wie zufrieden bist du mit dieser Seite (nicht mit der Immobilie selbst)?