

BoHolz Haus GmbH Verena Blümel
Frau Verena Blümel
015 ···
Nr. anzeigenPreise & Kosten
Provision für Käufer
provisionsfrei
Lage
Das Objekt befindet sich in einem charmanten Ortsteil mit hoher Lebensqualität und angenehmer Wohnatmosphäre. In einem Ruhigen, gepflegten Wohngebiet, das besonders durch seine Familienfreundlichkeit und den harmonischen Charakter besticht.
Das Haus
Kategorie
Einfamilienhaus
Baujahr
2026
Energie & Heizung
Warum sehe ich diese Anzeige? – Du siehst diese Anzeige basierend auf Ihrer Navigation auf unserer Website und den Suchkriterien, die du verwendet hast.
Energieausweistyp
Bedarfsausweis
Gebäudetyp
Wohngebäude
Gültigkeit
bis 01.02.2026
Weitere Energiedaten
Haustyp
Fertighaus, KfW 40
Heizungsart
Fußbodenheizung, Luft-/Wasser-Wärmepumpe
Details
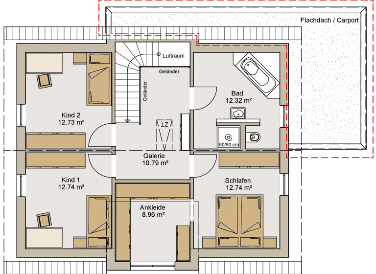
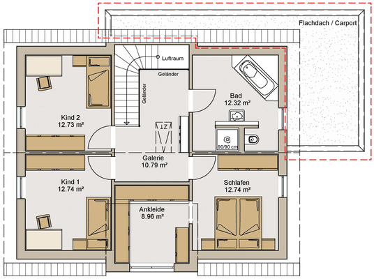
Objektbeschreibung
Dieses moderne Einfamilienhaus überzeugt durch eine klare, zeitgemäße Architektur, großzügige Grundrisse und eine Hochwertige Bauweise. Auf rund 146 Quadratmeter Wohnfläche erstreck sich ein durchdachtes Raumkonzept, das sowohl offen Wohnkomfort als auch rückzugsorte bietet.
Das licht durchflutet Wohn- und Essbereich...
Weitere Informationen
Partner beim Hausbau
Wir von BoHolz-Haus sind Ihr Partner beim Bau Ihres neuen Zuhauses.
Wohnen, wie Sie es sich immer gewünscht haben
Jedes Haus erzählt seine eigene Geschichte, sei es durch klassische Eleganz oder modernes Design. Bei BoHolz Fertighaus haben Sie die Möglichkeit, Ihren Hausentwurf mit Ihren...
Dokumente
Anbieter der Immobilie
BoHolz Haus GmbH Verena Blümel
Am Schirenhof 20, 73525 Schwäbisch Gmünd

Online-ID: 2mshp5h
Finde Angebote wie dieses
Hier geht es zu unserem Impressum, den Allgemeinen Geschäftsbedingungen, den Hinweisen zum Datenschutz und nutzungsbasierter Online-Werbung.