Version: 8.22.6Navigation überspringen
Kind Immobilien-Kontor
449.000 €
4 Zimmer  •  96,4 m²

Wohnung zum Kauf
449000 €
4.657 €/m²
4 Zimmer  •  96,4 m²

Statt Wohnung: Splitlevel-Bungalow. Zentrale, ruhige Lage Köln-Weiden. Atrium-Garten.

Keine Lust auf WEG-Eigentum? Dann ist das die Lösung! In geschützter Innenhoflage - ohne Durchgangsverkehr - erwartet Sie hier ein Zuhause mit echtem Rückzugscharakter.

Dieser Split-Level-Bungalow verbindet Individualität, Architektur und Wohnqualität auf seltene Weise. Auf einem ca. 208 m² großen Grundstück mit Atrium-Garten genießen Sie Privatsphäre, viel Licht und ein außergewöhnlich offenes Raumgefühl.

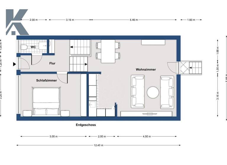
Die laut Bauunterlagen (BauONW 1970) ausgewiesene Wohnfläche von ca. 73,7 m² verteilt sich auf Erdgeschoss und Souterrain und bietet gleichzeitig attraktive Gestaltungsmöglichkeiten für moderne Wohnkonzepte.

Der helle, großzügige Wohn- und Essbereich bildet das Herzstück des Hauses - offen, einladend und perfekt zum Leben und Wohlfühlen. Die Küche ist aktuell separat angeordnet, kann aber bei Bedarf wieder in den Wohnbereich integriert werden - beispielsweise für die ursprüngliche Nutzung mit ebenerdigem Schlafzimmer.

Auch der Eingangsbereich bietet Potenzial: Ein Gäste-WC kann hier - wie ursprünglich geplant - problemlos realisiert werden.

Im Souterrain befinden sich eine große Diele, ein Bad mit natürlicher Belichtung und Belüftung sowie zwei weitere helle, gut nutzbare Räume. Durch Anpassung der Trennwand lassen sich hier zwei separate Nutzräume mit ca. 10,15 m² und ca. 12,6 m² schaffen. Insgesamt ergibt sich so eine Wohn- und Nutzfläche (Wohnraum-ähnlich) von rund 97 m².

von Souterrain erreichbar gibt es zusätzlich weitere Nutzfläche von ca. 25m² als Keller für Waschmaschine und Trockner sowie weitere Lagermöglichkeiten (oder Sauna?).

Diese Immobilie ist ideal für alle, die keinen Standard suchen, sondern Charakter, Ruhe und Entwicklungsmöglichkeiten schätzen - in Top-Lage mit sehr guter Infrastruktur.

Das Angebot wird durch einen abschließbaren Parkbereich in der angrenzenden Tiefgarage abgerundet und kann für 10.000€ zusammen mit dem Haus gekauft werden.

Merkmale

  • Tiefgarage
  • Terrasse
Fenster im wesentlich aus 2012 mit Kunststoffrahmen. Fensterfront zum Garten wäre zu erneuern. Elektrische Rollläden. Klimaanlage im Wohn-Essbereich. Uneinsehbares Grundstück.

Kein WEG-Eigentum. Eigenes Grundbuchblatt. Absolute Privat-Sphäre!

Grundrisse

Grundrisse
1 / 2

Realisiere Dein Projekt

Bausubstanz und Energie

Energieausweis

F
  • Baujahr1975
  • Zustand der Immobilierenovierungsbedürftig / sanierungsbedürftig
  • EnergieträgerFernwärme
MediumRectangleTop

Preisdetails

Kaufpreis
449000 €
4.656,71 €/m²
Preis pro Stellplatz
10000 €
Provision für Käufer
3,57% inkl. MwSt. bezogen auf den notariell beurkundeten Kaufpreis
Weitere Preisinformationen
1 Tiefgaragenstellplatz, Kaufpreis: 10.000,00 EUR
Geschätzte Gesamtkosten
503.194 €1
Kaufpreis
449.000 €
Notarkosten (1,5%)
6.735 €
Grunderwerbsteuer (6,5%)
29.185 €
Provision für Käufer (3,57%)
16.029 €
Grundbucheintrag (0,5%)
2.245 €
1Der angezeigte Wert ist eine automatisch berechnete Schätzung von immowelt.
2Bei den Angaben handelt es sich um ortsübliche Werte. Individuelle Kosten können abweichen.

Lage

address-icon
Göttinger Str. 19WeidenKöln / Weiden (50858)
Ruhige Lage ohne Verkehrslärm in Köln-Weiden. Beste infrastrukturelle Anbindung an den ÖPNV. Einkaufsmöglichkeiten und Gesundheitsversorgung direkt vor Ort um die Ecke.

Weitere Informationen

Sonstiges Die Wohnfläche-Nutzfläche-Kombination - Wohnraum-ähnlich - mit den beiden Souterrain-Zimmern beträgt 96,42m².

Die baurechtliche Wohnfläche gemäß der vorliegenden Unterlagen beträgt 73,68m².

Die gesamte Fläche im Haus beträgt rd. 121,5m².


Buchen Sie noch heute Ihren persönlichen, individuellen Besichtigungs-Termin mit mir und lassen sich von diesem besonderen Angebot vor Ort überzeugen. Stichworte Energieversorgung mit alternativen Energien, Nutzfläche: 25,00 m², Grundstücksfläche: 208,00 m², Anzahl der Schlafzimmer: 2, Anzahl der Badezimmer: 1, Anzahl Terrassen: 1, 2 Etagen

Weitere Services

Lust auf eine Besichtigung?
Eine Frage zur Immobilie?
Nachricht hinzufügen
Mit der Nutzung der oben angegebenen Telefonnummer oder durch Klicken auf „Kontaktieren“ akzeptierst Du die Allgemeinen Nutzungsbedingungen, denen Du jederzeit widersprechen kannst. Weitere Informationen zum Datenschutz

Über den Anbieter

Hildebertstr. 4, 50858 Köln
partner badge
Partnerschaft
Jan-Peter   Kind
Jan-Peter KindDein Kontakt
Online-ID: 2nker5f
Referenznummer: 0624711
Kind Immobilien-Kontor
title
Kind Immobilien-Kontor
Nachricht hinzufügen
Mit der Nutzung der oben angegebenen Telefonnummer oder durch Klicken auf „Kontaktieren“ akzeptierst Du die Allgemeinen Nutzungsbedingungen, denen Du jederzeit widersprechen kannst. Weitere Informationen zum Datenschutz
MediumRectangleTop
MediumRectangleBottom
MediumRectangleTop
Wie zufrieden bist du mit dieser Seite (nicht mit der Immobilie selbst)?