Version: 8.22.6Navigation ĂĽberspringen
HausBauHaus GmbH
585.000 €
3 Zimmer  â€˘  125 m²  â€˘  418 m² GrundstĂĽck

Doppelhaushälfte zum Kauf
585000 €
4.680 €/m²
3 Zimmer  â€˘  125 m²  â€˘  418 m² GrundstĂĽck

Freundliche Doppelhaushälfte mit Bergblick

Diese freundliche Doppelhaushälfte bietet auf ca. 125 m² Wohnfläche ein gemütliches Zuhause mit viel Platz und einer angenehmen Atmosphäre. Sie liegt in ruhiger Umgebung und überzeugt durch einen schönen Blick auf die umliegende Berglandschaft.

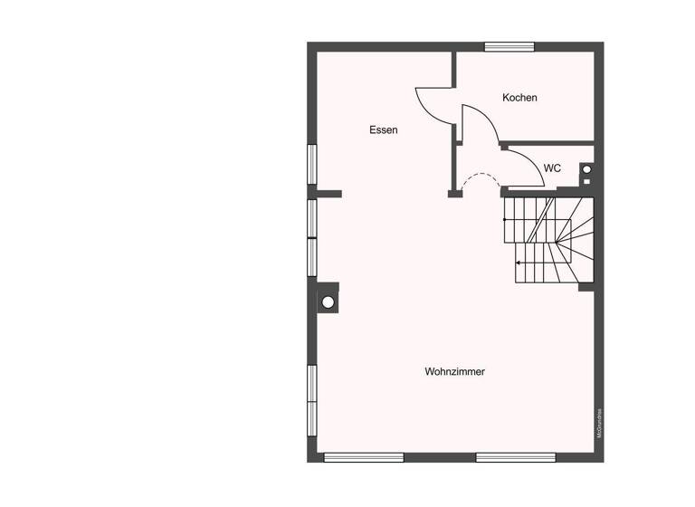
Im Erdgeschoss befinden sich zwei gut geschnittene Schlafzimmer, die sich sowohl als Eltern- oder Kinderzimmer eignen. Das Badezimmer ist mit Badewanne und Dusche ausgestattet und bietet ausreichend Platz für den täglichen Komfort. Zusätzlich steht ein Gäste-WC zur Verfügung.

Im Obergeschoss liegt das großzügige Wohnzimmer, das durch seine helle und freundliche Gestaltung zum Mittelpunkt des Hauses wird. Besonderes Highlight ist hier der Kamin, der an kühlen Tagen eine warme, behagliche Atmosphäre schafft und den Wohnbereich zu einem echten Wohlfühlort macht. Von hier aus gelangt man auf den Balkon, der einen schönen Ausblick ins Grüne und auf die Berge bietet - ideal, um den Feierabend ruhig ausklingen zu lassen. Die Küche ist separat gehalten und bietet Platz für eine kleine Essecke. Auch auf dieser Ebene befindet sich ein weiteres WC, was den Wohnkomfort zusätzlich erhöht.

Der Garten ist überschaubar und pflegeleicht angelegt. Ein kleiner Teich verleiht ihm einen besonderen, gemütlichen Charakter und lädt dazu ein, den Außenbereich in Ruhe zu genießen.

Im Kellergeschoss befindet sich zudem ein zusätzlicher Raum, der vielseitig genutzt werden kann - beispielsweise als Hobbybereich, Gästezimmer für kurze Aufenthalte oder ruhiger Rückzugsort. Damit bietet das Haus noch mehr Flexibilität für individuelle Bedürfnisse.

Zum Haus gehören außerdem eine Garage sowie ein vorgelagerter Stellplatz, die ausreichend Platz für Fahrzeuge und zusätzlichen Stauraum bieten.

Merkmale

  • Bezug: ab sofort
  • 418 m² GrundstĂĽck
  • EinbaukĂĽche
  • Gäste-WC
  • Terrasse
* Zwei Schlafzimmer im Erdgeschoss
* Badezimmer mit Badewanne und Dusche
* Separates Gäste-WC im Erdgeschoss und weiteres WC im Obergeschoss
* GroĂźzĂĽgiges Wohnzimmer mit Zugang zum Balkon
* Separate KĂĽche mit vorgelagerter Essecke
* Balkon mit Bergblick
* Pflegeleichter Garten mit kleinem Teich
* Garage mit vorgelagertem Stellplatz
* Ruhige Lage mit schöner Aussicht
* Solide Bauweise

Grundrisse

Grundrisse
1 / 2

Realisiere Dein Projekt

Bausubstanz und Energie

Energieausweis

E
  • Baujahr1980
  • Zustand der ImmobilieMassivhaus
  • HeizungsartZentralheizung
  • EnergieträgerĂ–l
MediumRectangleTop

Preisdetails

Kaufpreis
585000 €
4.680 €/m²
Provision für Käufer
3,00 % inkl. MwSt.
Die Käuferprovision ist verdient und fällig mit der notariellen Beurkundung des Kaufvertrags.
Geschätzte Gesamtkosten
634.725 €1
Kaufpreis
585.000 €
Notarkosten (1,5%)
8.775 €
Grunderwerbsteuer (3,5%)
20.475 €
Provision für Käufer (3%)
17.550 €
Grundbucheintrag (0,5%)
2.925 €
1Der angezeigte Wert ist eine automatisch berechnete Schätzung von immowelt.
2Bei den Angaben handelt es sich um ortsübliche Werte. Individuelle Kosten können abweichen.

Lage

address-icon
Bergen (83346)
Der Anbieter hat die genaue Adresse nicht freigegeben
Bergen am Hochfelln ist ein liebenswerter Ort im Chiemgau - in sehr zentraler Lage zwischen Salzburg und MĂĽnchen.

Spricht man vom Chiemgau, so sind nicht nur die Chiemgauer Alpen landschaftsprägend, sondern auch die vielen vorgelagerten Seen. Der nahegelegene Chiemsee ist mit 82 km² der größte. Die Vorzüge der Gemeinde Bergen liegen in einer landschaftlichen Schönheit, einem abwechslungsreichen Freizeitangebot im Sommer wie im Winter und einem reichhaltigen Veranstaltungsprogramm.

Alle Geschäfte des täglichen Bedarfs, verschiedenste Betreuungsangebote für Kinder, Schulen und medizinische Versorgung sind vorhanden. Des Weiteren bietet die Gemeinde ein beheiztes Familienschwimmbad mit Tennisplätzen.

Der Haus- und Aussichtsberg Hochfelln (1671 m) kann von Alt und Jung zu FuĂź erklommen oder bequem mit der Seilbahn erreicht werden.

Die Kreisstadt Traunstein sowie die Autobahnanbindung A8 sind in nur wenigen Autominuten erreichbar. Besonders hervorzuheben ist zudem die hervorragende Verkehrsanbindung: Neben der nahen Autobahn liegt Bergen unweit der wichtigen Bahnstrecke Salzburg-München, was den Ort sowohl für Pendler als auch für Reisende äußerst attraktiv macht.

Weitere Informationen

Sonstiges Der Energieausweis wurde bereits angefordert.

Für weitere und ausführliche Informationen oder einen Besichtigungstermin stehen wir Ihnen jederzeit sehr gerne zur Verfügung. Besichtigungen sind nur nach Abstimmung und in unserer Begleitung möglich.

** WERTERMITTLUNG FĂśR IHRE IMMOBILIE **

Das wichtigste Werkzeug fĂĽr einen erfolgreichen Immobilienverkauf

Eine realistische Wertermittlung und damit ein Kaufpreis fĂĽr Ihre Immobilie lassen sich nicht mit ein paar schnellen Angaben bewerkstelligen, wie es manche Online-Preisrechner versprechen. Eine fundierte Preisermittlung bedarf Erfahrung, Kompetenzen, Handarbeit und regionaler Expertise.

Nehmen Sie Kontakt mit uns auf. Sie erreichen uns unter info@hausbauhaus.com oder Telefon 0861 166 . 192 . 25 Stichworte Anzahl der separaten WCs: 2, Anzahl Terrassen: 1

Weitere Services

Lust auf eine Besichtigung?
Eine Frage zur Immobilie?
Nachricht hinzufĂĽgen
Mit der Nutzung der oben angegebenen Telefonnummer oder durch Klicken auf „Kontaktieren“ akzeptierst Du die Allgemeinen Nutzungsbedingungen, denen Du jederzeit widersprechen kannst. Weitere Informationen zum Datenschutz

Ăśber den Anbieter

HausBauHaus GmbH
HausBauHaus GmbHMaklerbĂĽro
Stadtplatz 19, 83278 Traunstein
partner badge
10 Jahre Partnerschaft
Online-ID: 2m59k5n
Referenznummer: 7748#ZRODuS
HausBauHaus GmbH
HausBauHaus GmbH
Bewertung: 4,3 von 5 Sternen
Nachricht hinzufĂĽgen
Mit der Nutzung der oben angegebenen Telefonnummer oder durch Klicken auf „Kontaktieren“ akzeptierst Du die Allgemeinen Nutzungsbedingungen, denen Du jederzeit widersprechen kannst. Weitere Informationen zum Datenschutz
MediumRectangleTop
MediumRectangleBottom
MediumRectangleTop
Wie zufrieden bist du mit dieser Seite (nicht mit der Immobilie selbst)?