

Villa zum Kauf1950000 €5.026 €/m²12 Zimmer • 388 m² • 3.406 m² Grundstück
1950000 €
5.026 €/m²
12 Zimmer • 388 m² • 3.406 m² Grundstück
Anwesen an den Amperauen - Raum für Wohnen, Arbeiten & große Ideen
Merkmale
- Bezug: Ab sofort
- 3.406 m² Grundstück
- Keller
- 5 Stellplätze: 2 Garagen, 3 Außen-Stellplätze
- Gäste-WC
- Balkon
- Terrasse
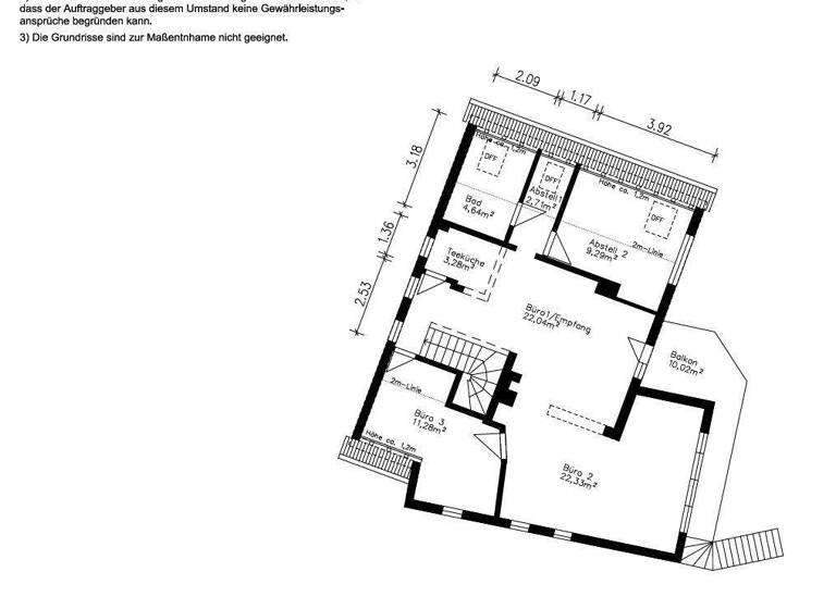
Grundrisse
Grundrisse
1 / 3
Virtueller Rundgang
Realisiere Dein Projekt
Bausubstanz und Energie
Energieausweis
H
- Baujahr1966
- Zustand der Immobilierenovierungsbedürftig / sanierungsbedürftig
- HeizungsartZentralheizung
- EnergieträgerÖl
Preisdetails
Kaufpreis
1950000 €
5.025,77 €/m²
Provision für Käufer
3,57 % inkl. MwSt.
Weitere Preisinformationen
3 Stellplätze
2 Garagenstellplätze
2 Garagenstellplätze
Geschätzte Gesamtkosten
2.126.865 €1
Kaufpreis
1.950.000 €
Kaufnebenkosten
176.865 €
2Notarkosten (1,5%)
29.250 €
Grunderwerbsteuer (3,5%)
68.250 €
Provision für Käufer (3,57%)
69.615 €
Grundbucheintrag (0,5%)
9.750 €
1Der angezeigte Wert ist eine automatisch berechnete Schätzung von immowelt.
2Bei den Angaben handelt es sich um ortsübliche Werte. Individuelle Kosten können abweichen.
Lage

Fürstenfeldbruck (82256)
Der Anbieter hat die genaue Adresse nicht freigegeben
Weitere Informationen
Weitere Services
Lust auf eine Besichtigung?
Eine Frage zur Immobilie?
Über den Anbieter
Kupferhaus ImmobilienMaklerbüro
Hauptstraße 17, 82256 Fürstenfeldbruck
Partnerschaft

Frau Vendi KupferDein Kontakt
Online-ID: 2n57g58
Referenznummer: GroßesAnwesen in FFB


Kupferhaus Immobilien
Wie zufrieden bist du mit dieser Seite (nicht mit der Immobilie selbst)?

