Praktisches Raumwunder- BUNGALOW in der PARK- CITY Wesendorf / Gifhorn
BUNGALOW 106
Der typische Holzbau Bungalow 106 ist ein ideales Zuhause für eine große Familie. Die größte Stärke dieses Bungalows ist die praktische Raumnutzung. Der Wohnbereich, bestehend aus Küche, Esszimmer und Wohnzimmer, ist außergewöhnlich hell und dank des offenen Dachbodens ungewöhnlich luftig.
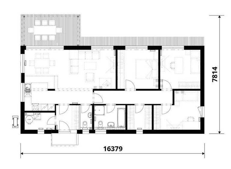
Nutzfläche106 m 2 Bebaute Fläche146 m 2 Haus-Maße16,4 x 7,8 m
Die traditionelle rechteckige Form des Bungalows 106 mit einer Grundfläche von 106 m² ermöglicht eine praktische Aufteilung des Grundrisses . In der einen Haushälfte befindet sich ein Gemeinschaftsbereich für die ganze Familie, der mit dem Garten verbunden ist, sowie technische Einrichtungen. Die andere Haushälfte dient als Ruhebereich, in dem sich Kinder- und Schlafzimmer befinden.
Von außen beeindruckt das moderne Dach ohne Überlappungen, das die klaren, schlichten Linien des gesamten Hauses unterstreicht . Eine noch stärkere Verbindung zur Natur gewährleisten die Holzfassade und die großen Fenster , die den gesamten Innenraum beleuchten und einen ruhigen Blick in den Garten ermöglichen. Das attraktive Design des Hauses wird durch eine Terrasse oder Pergola ergänzt, die auch als Garage genutzt werden kann.
Die Bautechnik, die Hausausstattung und das Projekt selbst des Bungalows 106 gewährleisten einen ganzjährigen wirtschaftlichen Betrieb .
Merkmale
Kein Keller
Das Haus kann auf Wunsch mit Keller gebaut werden. Ein zusätzliches Kellerangebot kann von uns eingeholt werden. Hauspreis ab Oberkante, Keller, Bodenplatte.
HAUS BUNGALOW 106 inkl. Transportkosten 106 m² 4 Zimmer Wohn-/ Esszimmer Bauzeit ca. 18 Werktage Einzugsfertig inklusive Komplettservice inklusive Philips Ambilight Smart Home von Bosch Bodenplatte auf Wunsch mit Aufpreis KFW 40 & QNG auf Wunsch ohne Aufpreis
Preise und Beschreibungen richten sich ausschließlich und ohne Ausnahme nach unseren aktuellen AGB, BLB und ab Oberkante Bodenplatte/Keller. Abbildungen können Sonderausstattungen enthalten. Fehler und Irrtümer vorbehalten. Alle Angaben ohne Gewähr. *Gegen Aufpreis möglich.
Grundrisse
Grundrisse
1 / 1
Realisiere Dein Projekt
Bausubstanz und Energie
Energieausweis
Ein Energieausweis ist für diesen Gebäudetyp nicht notwendig.
Baujahr2026
Zustand der ImmobilieFertighaus, Projektiert
HeizungsartFußbodenheizung
EnergieträgerLuft-/Wasser-Wärmepumpe
Preisdetails
Kaufpreis
371600 €371.600 €
3.505,66 €/m²
Provision für Käufer
Provisionsfrei
Geschätzte Gesamtkosten
410.878 €1
Kaufpreis
371.600 €
Kaufnebenkosten
39.278 €
2
Notarkosten (1,5%)
5.574 €
Grunderwerbsteuer (5%)
18.580 €
Provision für Käufer (3,57%)
13.266 €
Grundbucheintrag (0,5%)
1.858 €
1Der angezeigte Wert ist eine automatisch berechnete Schätzung von immowelt.
2Bei den Angaben handelt es sich um ortsübliche Werte. Individuelle Kosten können abweichen.
Lage
Wesendorf (29392)
Der Anbieter hat die genaue Adresse nicht freigegeben
LAGE: 29392 Wesendorf / Gifhorn GRÖSSE: ca. 106 m² GRUNSTÜCK: m² BEBAUBARKEIT: nach Bebauungsplan: max. 2 Vollgeschosse offene Bauweise geneigtes Dach ERSCHLIESSUNGSGRAD: vollerschlossen NACHBARSCHAFT: Wohnhäuser BESCHAFFENHEIT: eben OPTIMAL: ... für einen Neubau IDEAL: ... ist das Preis-/ Leistungsverhältnis WIR EMPFEHLEN: für den Neubau unsere maßgeschneiderten ökologischen, energieeffizienten und preiswerten Traumhäuser in jeder Bauweise SONSTIGES: Wohnen, Arbeiten, Freizeit....Idylle pur. Dieses Baugebiet bietet Ihnen eine einmalige Investitionsmöglichkeit, die sich langfristig auszahlen wird. In einer naturparkähnlichen Struktur mit gemeinschaftlichen Einrichtungen wie Spielplatz, Kino, Sporthalle, Fitnessstudio, Restaurant, Bowlingbahnen usw., stehen attraktive Baugrundstücke mit Größen zwischen 500m² - 1.700m² zum Erwerb. Die Gemeinde Wesendorf schließt nördlich an die beliebte Kreisstadt Gifhorn an und befindet sich logistisch vorteilhaft zwischen den Städten Celle, Gifhorn/ Braunschweig und Wolfsburg. Der Erwerb der Baugrundstücke erfolgt für den Käufer provisionsfrei. Die Grundstücke werden direkt vom Eigentümer erworben.
Weitere Informationen
Sonstiges
Natürlich bauen mit Holz
Fertighäuser bestehen zu mehr als 60% aus diesem nachwachsenden Rohstoff. Ausgewählte Hölzer - fachmännisch verarbeitet garantieren eine lange Lebensdauer und eine gesunde und behagliche Wohnatmosphäre, das heißt gesundes Wohnen durch umweltbewusste Bauweise.
Kurze Bauzeit
Der Fertighausbau kennt kein schlechtes Wetter - eine witterungsgeschützte Vorfertigung garantiert eine durchgehende kurze Montagezeit. Computergestützte Planung, qualitativ hochwertige Systemlösungen und industrielle Vorfertigung der Bauelemente verkürzen die Herstellung.
Energieeinsparung - serienmäßiger Standard
Unsere Häuser zeichnen sich durch hohe wärmeschutztechnische Eigenschaften aus. Das führt zu optimalem Wärmeschutz, gesundem Raumklima, ökologischem Einklang und Energiespareffekten. Der Einsatz von intelligenter, energieeinsparender Haustechnik - die beste Antwort auf hohe Energiepreise.
Hohe Qualitätssicherung Regelmäßige Qualitätskontrollen durch unabhängige Institutionen sichern einen hohen Qualitätsstandard bei der Herstellung und Montage - Zertifizierte Qualität nach DIN EN ISO 9001 und RAL (für Herstellung und Montage) und Produktsicherheit durch CE- Kennzeichnung.
Große Produktvielfalt und Gestaltungsmöglichkeiten
Bereits vorhanden ist ein breites Angebotsspektrum an Typenhäusern mit vielen Variationsmöglichkeiten und architektonischen Ergänzungen. Gern realisieren wir auch ganz individuelle Vorstellungen von Ihrem Haus.
Komplettservice Hausentwurf, Bemusterung, Hausbau und Gewährleistung - alles aus einer Hand.
Gewährleistung Wir bieten Ihnen auf die tragende, statische Konstruktion Ihres Hauses sowie auf die eingebauten Dachsteine eine 30-jährige Garantie. Alle übrigen Hausbauteile unterliegen der Gewährleistung gemäß BGB. Alle Angaben ohne Gewähr Irrtümer und Änderungen vorbehalten
Stichworte
Anzahl der Badezimmer: 1