Ihr Platz zum Ankommen: Familienfreundliches Wohnen auf gepflegtem Grundstück
Das ca. 1998 errichtete Einfamilienhaus befindet sich in einem sehr gepflegten Zustand und wurde in massiver, voll verklinkerter Bauweise auf einem Erbbaurechtsgrundstück errichtet. Das Grundstück umfasst ca. 576 m² und liegt in ruhiger Wohnlage in Pinnow.
Das Erbbaurecht wird durch die Kirche vergeben und verfügt über eine Restlaufzeit von ca. 71 Jahren; der jährliche Erbbauzins beträgt 984 €. Ein Erbbaurecht kann für Erwerber mit Vorteil verbunden sein, da es den Kaufpreis gegenüber einem Grundstückskauf häufig reduziert und damit eine geringere Anfangsinvestition ermöglicht - ein Pluspunkt für Eigennutzer und Familien.
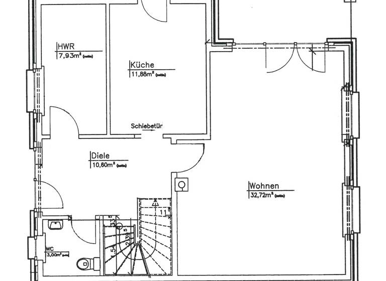
Die Wohnfläche beträgt ca. 123 m² und bietet eine durchdachte, familienfreundliche Aufteilung. Im Erdgeschoss stehen ein großzügiges Wohnzimmer, eine Küche mit Nebeneingang, ein Gäste-WC sowie ein Hauswirtschaftsraum zur Verfügung. Das Dachgeschoss umfasst drei Schlafzimmer, ein Vollbad und einen Flur.
Das liebevoll angelegte Grundstück bietet eine gepflegte Gartenanlage mit kleinem Teich und Wasserlauf. Eine überdachte Terrasse mit gläsernem Windschutz erweitert den Wohnbereich nach draußen. Ein Carport sowie weitere funktionale Außenanlagen ergänzen das Angebot.
Die Immobilie eignet sich aufgrund ihrer Raumaufteilung und ihrer Wohnlage besonders für Eigennutzer und Familie
Merkmale
567 m² Grundstück
voll erschlossen
Badezimmer: Badewanne, Bad mit Dusche, Bad mit Fenster
Im Erdgeschoss sind Küche, Flur und Hauswirtschaftsraum mit Terrakottafliesen ausgestattet; das Wohnzimmer verfügt über moderne Vinylplanken. Das Gäste-WC ist in weiß-grauer Optik gefliest.
Im Dachgeschoss wurden Vinylböden im Flur und zwei der Schlafzimmer verlegt, während das große Schlafzimmer mit Teppichboden versehen ist. Das Vollbad ist klassisch grün-weiß gefliest.
Die Fenster bestehen überwiegend aus doppelt verglasten Holzrahmen aus dem Baujahr; im großen Schlafzimmer wurde ein Kunststofffenster erneuert.
Beheizt wird das Haus derzeit über Fernwärme. Die Fernwärmeversorgung wird im Jahr 2030 eingestellt; eine neue Heizungsanlage ist daher künftig erforderlich.
Ein Kamin ist vorhanden, jedoch aktuell gesperrt. Die Schornsteinfegerprüfung wird von den Eigentümern veranlasst.
Weitere Ausstattungsmerkmale: - Balkon an zwei Schlafzimmern im Dachgeschoss - Dachboden / Kaltdach als praktische Lagerfläche nutzbar - Carport direkt am Haus - Regenwasserzisterne und separate Sickergrube für die Dachflächenentwässerung
Grundrisse
Grundrisse
1 / 2
Realisiere Dein Projekt
Bausubstanz und Energie
Energieausweis
C
Baujahr1998
EnergieträgerFernwärme
Preisdetails
Kaufpreis
258000 €258.000 €
2.097,56 €/m²
Provision für Käufer
3,57 % inkl. MwSt. Unser Immobilienbüro hat einen provisionspflichtigen Maklervertrag mit dem Verkäufer in gleicher Höhe abgeschlossen.
Geschätzte Gesamtkosten
287.851 €1
Kaufpreis
258.000 €
Kaufnebenkosten
29.851 €
2
Notarkosten (1,5%)
3.870 €
Grunderwerbsteuer (6%)
15.480 €
Provision für Käufer (3,57%)
9.211 €
Grundbucheintrag (0,5%)
1.290 €
1Der angezeigte Wert ist eine automatisch berechnete Schätzung von immowelt.
2Bei den Angaben handelt es sich um ortsübliche Werte. Individuelle Kosten können abweichen.
Lage
Pinnow (19065)
Der Anbieter hat die genaue Adresse nicht freigegeben
Dieses Objekt befindet sich in einer ruhigen Dorflage von Pinnow. Die landschaftlich sehr reizvoll gelegene Gemeinde liegt nur unweit östlich der Landeshauptstadt Schwerin entfernt und ist umgeben vom Pinnower See sowie dem Naturschutzgebiet "Trockenhänge am Petersberg". Bis zum Pinnower See und seinen Badestellen sind es nur ca. 1.500 m. In Pinnow findet ein reges Gemeindeleben statt. Der Ort hat eine gute Infrastruktur, verfügt z.B. über einen Arzt, Zahnarzt, Altenheim/ Tagespflege und eine Kindertagesstätte. Pinnow ist über die B 321 gut zu erreichen, die A 14 Anschlussstelle Schwerin-Ost ist nur ca. 3 km entfernt. Bis nach Schwerin sind es ca. 12 km und bis nach Crivitz ca. 7 km.
Weitere Informationen
Sonstiges
Wir weisen darauf hin, dass unsere Angebotsangaben auf uns erteilter Informationen basieren und deshalb für deren Richtigkeit und Vollständigkeit keine Haftung übernommen wird. Unsere Angaben sind freibleibend und unverbindlich. Irrtum und Zwischenverkauf bleibt ausdrücklich vorbehalten.
Stichworte
Anzahl der Schlafzimmer: 3, Anzahl der separaten WCs: 1, Anzahl Balkone: 1, Anzahl Terrassen: 1, Bundesland: Mecklenburg-Vorpommern, 1 Etagen, Laufzeit Erbpacht: 71 Jahre