Version: 8.26.0Navigation überspringen
2.500 €
11 Zimmer  •  teilbar ab 154,6 m²
Immowelt logo

Bürofläche zur Miete
2.500 €
11 Zimmer  •  teilbar ab 154,6 m²

Büro-/Praxisräume mit Stellplätzen in Trier-Heiligkreuz - teilbar und flexibel nutzbar

Enders & Partner Immobilien präsentiert Ihnen vielseitig nutzbare Büro- und Praxisräumlichkeiten in attraktiver Lage von Trier-Heiligkreuz mit einer Gesamtfläche von ca. 202 m².

Die Einheit überzeugt durch eine durchdachte Raumaufteilung: Ein großzügiger Eingangs- und Empfangsbereich bietet einen repräsentativen Empfang für Kunden und Mitarbeitende. Ergänzt wird das Raumangebot durch einen Serverraum, mehrere individuell nutzbare Büroräume auf zwei Etagen sowie separate WC-Anlagen. Die flexible Raumstruktur ermöglicht eine bedarfsgerechte Anpassung an unterschiedlichste Nutzungskonzepte.

Die beiden Etagen können bei Bedarf auch separat angemietet werden, was zusätzlichen Spielraum bei der Nutzung und Vermietung eröffnet.

Ob klassische Büroeinheit, moderne Praxis oder kombinierte Arbeitsfläche - die Immobilie bietet zahlreiche Gestaltungsmöglichkeiten.

Zum Angebot gehören drei Garagenstellplätze sowie zusätzliche Außenstellplätze, die eine komfortable Parksituation gewährleisten.

Vereinbaren Sie noch heute einen Besichtigungstermin. Weitere Informationen stellen wir Ihnen gerne auf Anfrage oder im Rahmen einer persönlichen Begehung zur Verfügung.

Merkmale

  • Bezug: nach Abspache
  • Erdgeschoss
  • Keller
Drei Garagenstellplätze sowie zusätzliche Außenstellplätze bieten komfortable Parkmöglichkeiten für Mitarbeitende und Kunden.

Die Immobilie erstreckt sich über zwei Etagen, die bei Bedarf auch getrennt angemietet werden können - ideal für flexible Nutzungskonzepte oder mehrere Parteien.

Dank der variablen Raumaufteilung eignet sich die Fläche sowohl für klassische Büros als auch für Praxis-, Kanzlei- oder Agenturnutzung.

Die Liegenschaft befindet sich in sehr guter Lage von Trier-Heiligkreuz mit optimaler Anbindung an das Stadtzentrum und den öffentlichen Nahverkehr.

Bereits vorhanden sind zwei Vorrichtungen für Wallboxen, sodass eine zukunftsorientierte Nutzung mit E-Mobilität problemlos möglich ist.

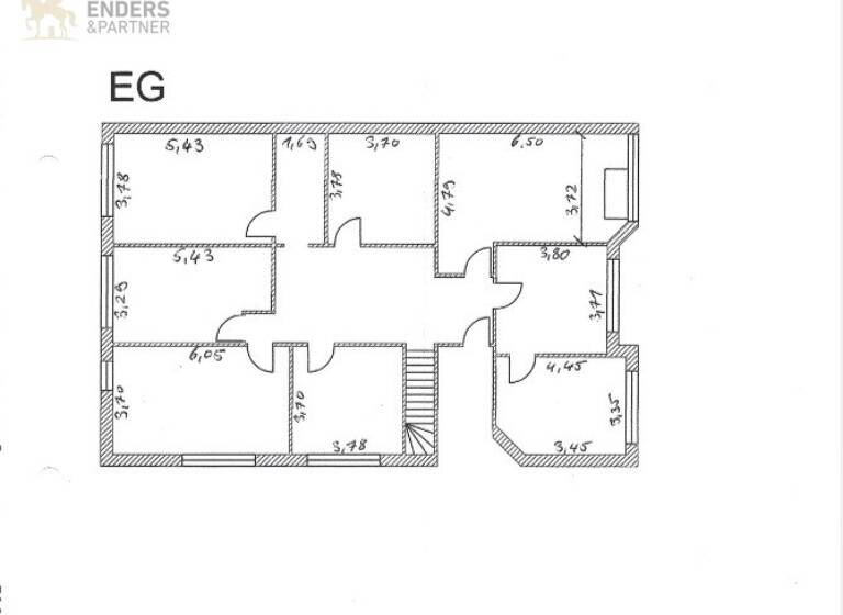
Grundrisse

Grundrisse
1 / 2

Bausubstanz und Energie

Energieausweis

G
  • Baujahr1982
  • Zustand der ImmobilieGepflegt
Immowelt logo

Mietkosten

Warmmiete
2.500 €
Nettomiete
nicht angegeben
Provision für Mieter
2 Warmmieten zzgl. MwSt.
Kaution
5000 €

Lage

address-icon
HeiligkreuzTrier / Heiligkreuz (54295)
Der Anbieter hat die genaue Adresse nicht freigegeben
Die Immobilie befindet sich in der begehrten Bernhardstraße 54, im südlichen Stadtteil Trier-Süd - einer der beliebtesten Wohnlagen der ältesten Stadt Deutschlands. Die Straße zeichnet sich durch ihre zentrale, aber dennoch ruhige Lage aus und verbindet urbanes Lebensgefühl mit angenehmer Wohnqualität.

Dank der ausgezeichneten Infrastruktur erreichen Sie den Hauptbahnhof, die Innenstadt sowie die Universität Trier in wenigen Minuten mit dem Fahrrad, Auto oder öffentlichen Verkehrsmitteln. Eine Bushaltestelle befindet sich in unmittelbarer Nähe. Einkaufsmöglichkeiten, Ärzte, Apotheken, Cafés und Restaurants sind fußläufig erreichbar und machen das tägliche Leben besonders komfortabel.

Die Umgebung ist geprägt von gepflegten Alt- und Neubauten, charmanten Grünflächen und einer freundlichen Nachbarschaft. Der nahegelegene Südbahnhof sowie der Palastgarten und die Mosel bieten attraktive Freizeit- und Erholungsmöglichkeiten.

Durch die Kombination aus citynaher Lage, guter Verkehrsanbindung und einem ruhigen, grünen Umfeld ist die Bernhardstraße 54 eine ideale Adresse für Familien, Berufstätige, Studierende und Kapitalanleger gleichermaßen.

Weitere Informationen

Stichworte Gesamtfläche: 202,87 m², Bundesland: Rheinland-Pfalz

Weitere Services

Lust auf eine Besichtigung?
Eine Frage zur Immobilie?
Mit einer persönlichen Nachricht hast du bessere Chancen auf eine Antwort.
Mit der Nutzung der oben angegebenen Telefonnummer oder durch Klicken auf „Kontaktieren“ akzeptierst Du die Allgemeinen Nutzungsbedingungen, denen Du jederzeit widersprechen kannst. Weitere Informationen zum Datenschutz

Über den Anbieter

Porta-Nigra Platz 4, 54292 Trier
partner badge
10 Jahre Partnerschaft
Online-ID: 25VJNP6QGKJM
Referenznummer: Immoenders -1602
Wie zufrieden bist du mit dieser Seite (nicht mit der Immobilie selbst)?