Ein ganzes Stockwerk für sich: Porec-Penthouse mit 55?m² Balkonfläche
Kurzbeschreibung
wohnung-porec-erstbezug-ruhigelage
Objekt
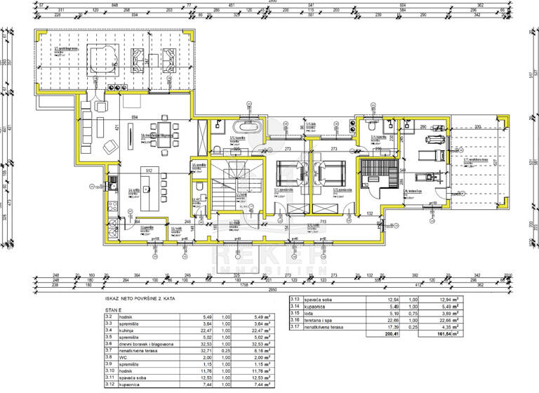
Dieses Penthouse liegt ganz oben - ohne Nachbarn, mit drei Balkonen, zwei Schlafzimmern und einem flexibel nutzbaren Spa-Raum. Alles auf einer Ebene, mit viel Licht und Struktur.
Der Anbieter hat die genaue Adresse nicht freigegeben
Die Lage ist ruhig und angenehm grün ... ideal, wenn Sie dem Alltag entfliehen möchten. Das Meer ist ganz nah: Nur ca. 750?Meter Luftlinie trennen das Grundstück von der Küste. In wenigen Minuten sind Sie am Strand, ganz ohne lange Fahrt. Auch das Stadtzentrum von Porec ist nur etwa 3?Kilometer entfernt. Hier wohnen Sie entspannt und gut angebunden.
Das moderne Gebäude umfasst insgesamt fünf Wohnungen: zwei im Erdgeschoss, zwei im ersten Obergeschoss und ein großzügiges Penthouse im zweiten Stock. Die Fertigstellung ist für den 1. Dezember 2025 geplant. Verkauft wird jede Wohnung schlüsselfertig - das heißt: Badezimmer komplett ausgestattet, alles bereit zum Einzug. Jede Einheit bekommt einen eigenen Parkplatz direkt vor dem Haus.
Weitere Informationen
Stichworte
Stellplatz vorhanden, Anzahl der Schlafzimmer: 3, Anzahl der Badezimmer: 2, Anzahl Balkone: 3, 1 Etagen, Distanz zur nächsten Einkaufsmöglichkeit: 1.50, Distanz zum Flughafen: 62.00