Sanierungsbedürftiges Einfamilienhaus in Bodenwerder
Willkommen in Bodenwerder - einer malerischen Stadt mit reichem historischen Erbe und idyllischer Landschaft.
Zum Verkauf steht ein charmantes Einfamilienhaus aus dem Jahr 1955, das auf eine liebevolle Renovierung wartet. Dieses baufällige Objekt bietet auf zwei Volletagen eine großzügige Wohnfläche von ca. 132 m² und erstreckt sich über fünf geräumige Zimmer, die darauf warten, mit neuem Leben gefüllt zu werden.
Obwohl das Haus derzeit stark sanierungsbedürftig ist, eröffnet es durch seine solide Bausubstanz und kreative Gestaltungsmöglichkeiten das Potenzial für ein einzigartiges Wohnerlebnis. Die Grundstücksgröße beträgt kompakte 74 m².
Insgesamt bietet dieses Einfamilienhaus in Bodenwerder eine wunderbare Gelegenheit, ein Zuhause nach Ihren individuellen Wünschen und Bedürfnissen zu gestalten.
Nutzen Sie die Chance, in einer charmanten Umgebung nahe historischer Sehenswürdigkeiten und einerwohnerfreundlichen Infrastruktur zu wohnen.
Verwirklichen Sie Ihren Traum vom Eigenheim in Bodenwerder!
Merkmale
74 m² Grundstück
- Zentralheizung (Öl)
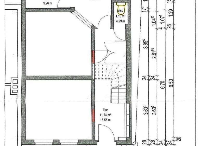
Grundrisse
Grundrisse
1 / 3
Realisiere Dein Projekt
Bausubstanz und Energie
Energieausweis
H
Baujahr1955
Zustand der Immobilierenovierungsbedürftig / sanierungsbedürftig
EnergieträgerÖl
Preisdetails
Kaufpreis
60000 €60.000 €
454,55 €/m²
Provision für Käufer
3,57 zzgl. MwSt.
Geschätzte Gesamtkosten
66.342 €1
Kaufpreis
60.000 €
Kaufnebenkosten
6.342 €
2
Notarkosten (1,5%)
900 €
Grunderwerbsteuer (5%)
3.000 €
Provision für Käufer (3,57%)
2.142 €
Grundbucheintrag (0,5%)
300 €
1Der angezeigte Wert ist eine automatisch berechnete Schätzung von immowelt.
2Bei den Angaben handelt es sich um ortsübliche Werte. Individuelle Kosten können abweichen.
Lage
Bodenwerder (37619)
Der Anbieter hat die genaue Adresse nicht freigegeben
Das charmante Einfamilienhaus befindet sich in einer idyllischen Lage in Bodenwerder, einer malerischen Kleinstadt im Herzen von Niedersachsen.
Bodenwerder, bekannt als Geburtsort des berühmten Lügenbarons Münchhausen, bietet eine reiche Mischung aus Geschichte, Kultur und Naturerlebnissen.
Das Haus liegt in einem ruhigen Wohnviertel, das von einer freundlichen Nachbarschaft und einer familiären Atmosphäre geprägt ist. Die Umgebung ist von weitläufigen grünen Landschaften umgeben und führt am nahegelegenen Ufer der Weser entlang.
Dank der günstigen Verkehrsanbindung sind sowohl das Stadtzentrum von Bodenwerder als auch die umliegenden Gemeinden bequem erreichbar. Verschiedene Einkaufsmöglichkeiten, Bildungs- und Freizeiteinrichtungen befinden sich in unmittelbarer Nähe und bieten alles für den täglichen Bedarf.
Die Region ist zudem für ihre Rad- und Wanderwege bekannt, die zu Erkundungen in der Natur einladen und die Erholung garantieren.
Diese Lage vereint das Beste aus ländlichem Flair und städtischer Infrastruktur, was sie zu einem idealen Wohnort für Familien macht.
Weitere Informationen
Sonstiges
- Art des Energieausweises: Bedarfsausweis - Baujahr laut Energieausweis: 1955 - Wesentlicher Energieträger: Öl
Stichworte
Anzahl der Badezimmer: 2, 2 Etagen