

Mehrfamilienhaus zum Kauf256000 €1.652 €/m²8 Zimmer • 155 m² • 1.000 m² Grundstück
256000 €
1.652 €/m²
8 Zimmer • 155 m² • 1.000 m² Grundstück
Zweifamilienhaus in ruhiger Lage sucht Familie!!! KEINE KÄUFERPROVISION
Merkmale
- 1.000 m² Grundstück
- Balkon
- Terrasse
- Badezimmer: Badewanne, Bad mit Dusche
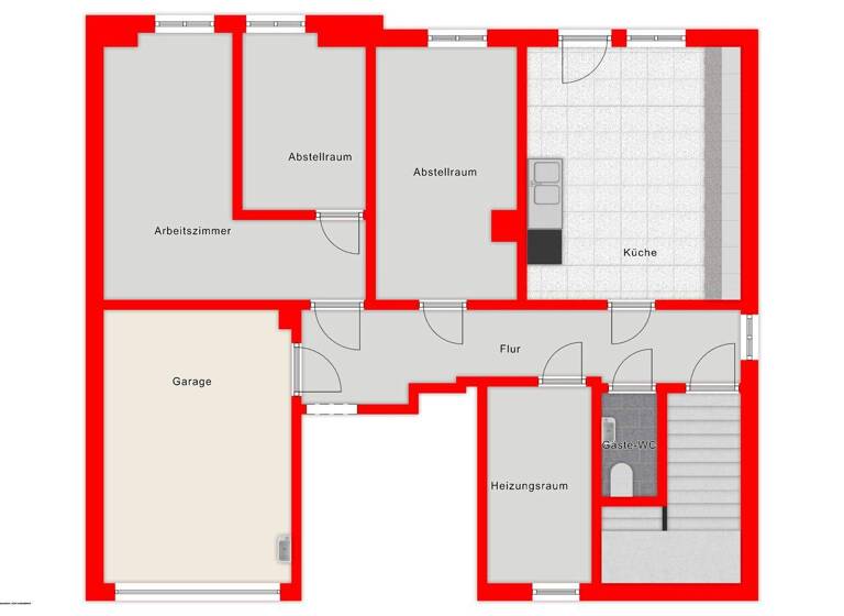
Grundrisse
Grundrisse
1 / 4
Realisiere Dein Projekt
Bausubstanz und Energie
Energieausweis
H
- Baujahr1966
- Zustand der ImmobilieMassivhaus, Gepflegt
- HeizungsartZentralheizung
- EnergieträgerÖl
Preisdetails
Kaufpreis
256000 €
1.651,61 €/m²
Provision für Käufer
Bitte beachte, das Angebot kann bei Vertragsabschluss die Zahlung einer Provision beinhalten. Weitere Informationen erhältst Du vom Anbieter.
Geschätzte Gesamtkosten
285.619 €1
Kaufpreis
256.000 €
Kaufnebenkosten
29.619 €
2Notarkosten (1,5%)
3.840 €
Grunderwerbsteuer (6%)
15.360 €
Provision für Käufer (3,57%)
9.139 €
Grundbucheintrag (0,5%)
1.280 €
1Der angezeigte Wert ist eine automatisch berechnete Schätzung von immowelt.
2Bei den Angaben handelt es sich um ortsübliche Werte. Individuelle Kosten können abweichen.
Lage

Metze, Niedenstein / Metze (34305)
Der Anbieter hat die genaue Adresse nicht freigegeben
Weitere Informationen
Weitere Services
Lust auf eine Besichtigung?
Eine Frage zur Immobilie?
Über den Anbieter
Online-ID: 2lw3d5z
Referenznummer: H 16402

König Immobilien GmbH
Wie zufrieden bist du mit dieser Seite (nicht mit der Immobilie selbst)?

