Version: 8.24.0Navigation überspringen
8.896 €
161,8 m² Gastrofläche
Immowelt logo

Restaurant zur Miete
8.896 €
161,8 m² Gastrofläche

P-Berg Gastrofläche mit Terrasse & Lüftungsanlage Gesucht ? Got it!

Die Gewerbefläche befindet sich in einem klassischen Berliner Altbau und ist direkt von der Straße aus begehbar. Zwei großzügige Schaufenster sorgen für gute Sichtbarkeit und angenehmen Tageslichteinfall im Innenraum.

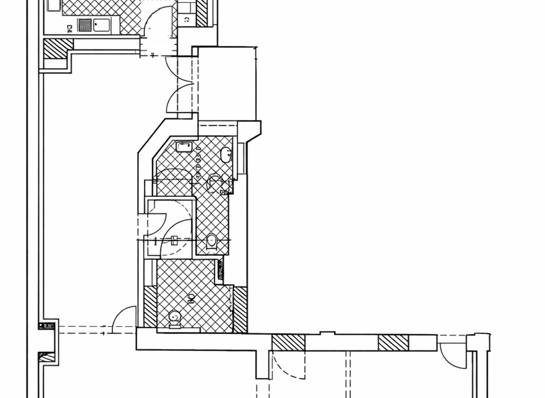
Der Grundriss entspricht einem typischen Restaurantzuschnitt mit einem großzügigen Gastraum im vorderen Bereich. Die Raumaufteilung ermöglicht eine funktionale Trennung zwischen Gastraum, Küche und Nebenflächen. Der straßenseitige Bereich bietet zudem die Möglichkeit, zusätzliche Tische im Außenbereich zu platzieren (vorbehaltlich behördlicher Genehmigung). Dadurch kann die Sitzplatzkapazität erweitert und die Präsenz im Straßenraum zusätzlich gestärkt werden.

Die Fläche verfügt über drei Zugänge: einen straßenseitigen Haupteingang sowie zwei weitere Eingänge von der Hofseite. Dadurch ergeben sich praktische Nutzungsmöglichkeiten für den laufenden Betrieb, beispielsweise für Anlieferung oder Personal.

Ausreichend Platz für eine voll ausgestattete Küche ist vorhanden. Sanitäranlagen für Gäste und Personal sind bereits vorhanden und betriebsbereit.

Zur Fläche gehören ein vorhandener Tresen sowie eine Lüftungsanlage mit Führung bis über das Dach. Die Wartung und Instandhaltung der Lüftungsanlage obliegt dem Mieter.

Insgesamt handelt es sich um eine funktional geschnittene Gastronomiefläche mit klassischem Altbaucharakter und guter Präsenz im Straßenraum.

Merkmale

  • frei ab sofort
  • Keller
  • Badezimmer: Bad mit Dusche, Bad mit Fenster
- Top Lage
- Terrasse vorhanden
- Unterkellert
- Mit Luftung
- Ab sofort verfügbar
- Super Grundriss

Grundrisse

Grundrisse
1 / 1

Realisiere Dein Projekt

Bausubstanz und Energie

Der Anbieter hat keine Informationen zum Energieverbrauch bereit gestellt.
  • Zustand der ImmobilieGepflegt
  • HeizungsartZentralheizung
  • EnergieträgerGas
Immowelt logo

Mietkosten

Warmmiete
9.543,25 €
Kaltmiete
8.896,25 €
Nebenkosten
647 €
Provision für Mieter
3,57 Nettokaltmieten inklusive. 19?%MwSt.
Kaution
Drei Bruttowarmmieten

Lage

address-icon
Oderberger Straße 51Prenzlauer BergBerlin (10435)
Die Oderberger Straße gehört zu den gefragtesten und lebendigsten Adressen im Berliner Stadtteil Prenzlauer Berg. In unmittelbarer Nähe zum Mauerpark gelegen, verbindet der Standort eine ausgeprägte Kiezstruktur mit internationaler Strahlkraft und sorgt ganzjährig für eine überdurchschnittlich hohe Frequenz.

Das direkte Umfeld ist geprägt von einer etablierten Gastronomieszene mit Restaurants, Cafés und Bars, die die Straße zu einer festen "Food-Destination" gemacht haben. Gäste kommen gezielt hierher, um auszugehen, neue Konzepte zu entdecken und Zeit im urbanen Ambiente zu verbringen. Besonders an Wochenenden - nicht zuletzt durch den überregional bekannten Flohmarkt im Mauerpark - entsteht eine starke Besucherfrequenz mit touristischem Publikum.

Gleichzeitig bietet Prenzlauer Berg eine kaufkräftige, internationale und qualitätsbewusste Bewohnerschaft. Familien, Kreative, Selbstständige sowie Mitarbeitende aus Start-ups und Medienunternehmen prägen die Nachbarschaft und sorgen auch unter der Woche für stabile Umsätze. Die Mischung aus Stammkundschaft und wechselndem Publikum schafft optimale Voraussetzungen für nachhaltige gastronomische Konzepte - vom Café über Casual Dining bis hin zur Bar.

Die hervorragende Anbindung über die U-Bahn-Station Eberswalder Straße (U2) sowie mehrere Tramlinien gewährleistet eine unkomplizierte Erreichbarkeit für Gäste und Mitarbeitende.

Insgesamt bietet dieser Standort eine seltene Kombination aus gewachsener Kiezatmosphäre, hoher Sichtbarkeit, touristischer Anziehungskraft und kaufkräftigem Einzugsgebiet - ideale Rahmenbedingungen für eine erfolgreiche gastronomische Nutzung.

Weitere Informationen

Stichworte Gesamtfläche: 161,75 m², Bundesland: Berlin

Weitere Services

Lust auf eine Besichtigung?
Eine Frage zur Immobilie?
Nachricht hinzufügen
Mit der Nutzung der oben angegebenen Telefonnummer oder durch Klicken auf „Kontaktieren“ akzeptierst Du die Allgemeinen Nutzungsbedingungen, denen Du jederzeit widersprechen kannst. Weitere Informationen zum Datenschutz

Über den Anbieter

Kurfürstendamm 133, 10711 Berlin
Herr Tommaso BuccieroDein Kontakt
Online-ID: 2n5wv5m
Referenznummer: 10435ODER51-EG Gastro
Nudelmann & Friends Immobilien GmbH
Nudelmann & Friends Immobilien GmbH
Nachricht hinzufügen
Mit der Nutzung der oben angegebenen Telefonnummer oder durch Klicken auf „Kontaktieren“ akzeptierst Du die Allgemeinen Nutzungsbedingungen, denen Du jederzeit widersprechen kannst. Weitere Informationen zum Datenschutz
Wie zufrieden bist du mit dieser Seite (nicht mit der Immobilie selbst)?