Version: 8.24.0Navigation überspringen
Mietkosten auf Anfrage
400 m² Bürofläche
Immowelt logo

Atelier zur Miete • provisionsfrei
Mietkosten auf Anfrage
400 m² Bürofläche

Büro-Loft * Aufzug * Glasfaser

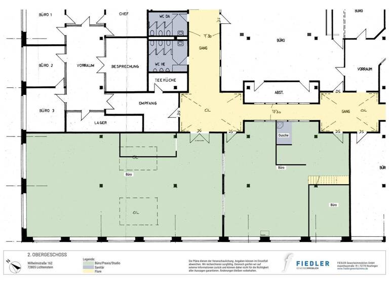
Im BRE Gewerbepark in Lichtenstein steht im 2. Obergeschoss ein großzügiges Büro-Loft mit einer Fläche von ca. 400 m² inklusive Gemeinschaftsfläche zur Vermietung. Das Gebäude wurde im Jahr 1911 errichtet und 1993 umfassend modernisiert. Im Zuge dieser Maßnahmen wurden unter anderem Aufzug, Fenster, Bodenbeläge sowie die Elektroinstallation erneuert.

Das Loft wurde bisher als Fotostudio genutzt. Es eignet sich für vielfältige Nutzungen und überzeugt durch seine helle, lichtdurchflutete Atmosphäre sowie den offenen Loft-Charakter. Die Raumhöhe von ca. 4,27 m sorgt für ein besonders großzügiges Raumgefühl.

Die integrierte Bar kann bei Bedarf zurückgebaut/umgenutzt werden. Darüber hinaus verfügt die Einheit über eine Dusche, während sich das WC in der gemeinschaftlich genutzten Fläche des Gebäudes befindet. Ein erhöhtes Podest innerhalb der Einheit bietet eine zusätzliche Nutzungsmöglichkeiten, etwa als separater Büro- oder Besprechungsbereich.

Der vorhandene Aufzug ist über das Treppenhaus oder eine Rampe zugänglich.

Die Anfahrt erfolgt über den zentralen Eingang des Gewerbeparks. Pkw-Stellplätze sind nach Absprache vorhanden.

Merkmale

  • Bezug: Nach Absprache
  • Personenaufzug
  • Denkmalschutz-Afa
- Personenaufzug
- Glasfaser
- Rampe
- Bar-/Küchenanschlüsse
- Dusche
- Fußbodenheizung
- Pkw-Stellplätze nach Absprache

Gemeinschaftsflächen:
WCs
Besucher-Stellplätze vorhanden

Grundrisse

Grundrisse
1 / 1

Realisiere Dein Projekt

Bausubstanz und Energie

Energieausweis

Endenergieverbrauch (Wärme)

Endenergieverbrauch (Strom)

  • Baujahr1911
  • Zustand der ImmobilieGepflegt
  • HeizungsartZentralheizung: Fußbodenheizung
  • EnergieträgerGas, Holz
Immowelt logo

Mietkosten

Miete auf Anfrage
Provision für Mieter
provisionsfrei
Kaution
keine Angabe

Lage

address-icon
Wilhelmstraße 162UnterhausenLichtenstein (72805)
Der BRE Gewerbepark liegt am Ortseingang der Gemeinde Lichtenstein, direkt an der Durchfahrtsstraße B 312/313 (Engstingen-Metzingen), am Fuße des Albtraufs. Die Büroeinheit liegt zur ruhigen, straßenabgewandten Seite.

Eine Bushaltestelle befindet sich in ca. 300 m Entfernung und wird von vier Linien Richtung Reutlingen und Engstingen angefahren.

In weniger als 10 Minuten sind die umliegenden Gemeinden Pfullingen (ca. 3 km) und Eningen unter Achalm (ca. 6 km) sowie die Stadt Reutlingen (ca. 6 km) zu erreichen. Engstingen liegt ca. 10 Minuten, Metzingen etwa 15 Autominuten entfernt und Mössingen sowie Trochtelfingen sind innerhalb von rund 20 Minuten Fahrzeit erreichbar.

Zur B 28 (Herrenberg-Ulm) sind es ca. 8 km, die A 8 (Stuttgart-München) liegt ca. 32 km entfernt.

Weitere Informationen

Sonstiges Provisionsfrei, Vermittlung im Eigentümerauftrag.
Wir bitten um Ihr Verständnis dafür, dass wir in der Internetpräsentation keine Preise nennen können. Die Preisfindung bei Gewerbeobjekten ist erst möglich, wenn der Bedarf eines Interessenten erfasst sowie eventuell notwendige Gebäudeanpassungen und vertragliche Rahmenbedingungen bekannt sind. Deshalb sollten Preis- und Finanzierungsfragen in einem persönlichen Gespräch geklärt werden. Stichworte Stellplatz vorhanden, Nutzfläche: 400,00 m², Gesamtfläche: 400,00 m², modernisiert: 1993 Aufzug, Fenster, Böden, Elektro lt. ET-Workshop

Weitere Services

Lust auf eine Besichtigung?
Eine Frage zur Immobilie?
Nachricht hinzufügen
Mit der Nutzung der oben angegebenen Telefonnummer oder durch Klicken auf „Kontaktieren“ akzeptierst Du die Allgemeinen Nutzungsbedingungen, denen Du jederzeit widersprechen kannst. Weitere Informationen zum Datenschutz

Über den Anbieter

Aspenhaustraße 19, 72770 Reutlingen
partner badge
10 Jahre Partnerschaft
Herr Paul Schafran
Herr Paul SchafranDein Kontakt
Online-ID: 2mbfr56
Referenznummer: 1391_7
FIEDLER Gewerbeimmobilien GmbH
title
FIEDLER Gewerbeimmobilien GmbH
Nachricht hinzufügen
Mit der Nutzung der oben angegebenen Telefonnummer oder durch Klicken auf „Kontaktieren“ akzeptierst Du die Allgemeinen Nutzungsbedingungen, denen Du jederzeit widersprechen kannst. Weitere Informationen zum Datenschutz
Wie zufrieden bist du mit dieser Seite (nicht mit der Immobilie selbst)?