Version: 8.25.1Navigation überspringen
McMakler GmbH
495.000 €
8 Zimmer  •  189,1 m²  •  710 m² Grundstück

Mehrfamilienhaus zum Kauf
495000 €
2.618 €/m²
8 Zimmer  •  189,1 m²  •  710 m² Grundstück

Schönes 2-Familienhaus mit großem Garten und zahlreichen Parkmöglichkeiten

Objektnr: 1067965

Als ideale Option für Eigennutzung oder Investment präsentiert sich dieses Objekt in Fluorn-Winzeln (Ortsteil Fluorn), beschaulich und sicher in einer Nebenstraße. Die idyllische Lage bietet eine friedliche Umgebung, die vor allem Ruhesuchende und Familien mit Kindern anspricht. Seinen einladenden Zustand verdankt das 2006 erbaute Objekt einem stets pfleglichen Umgang.

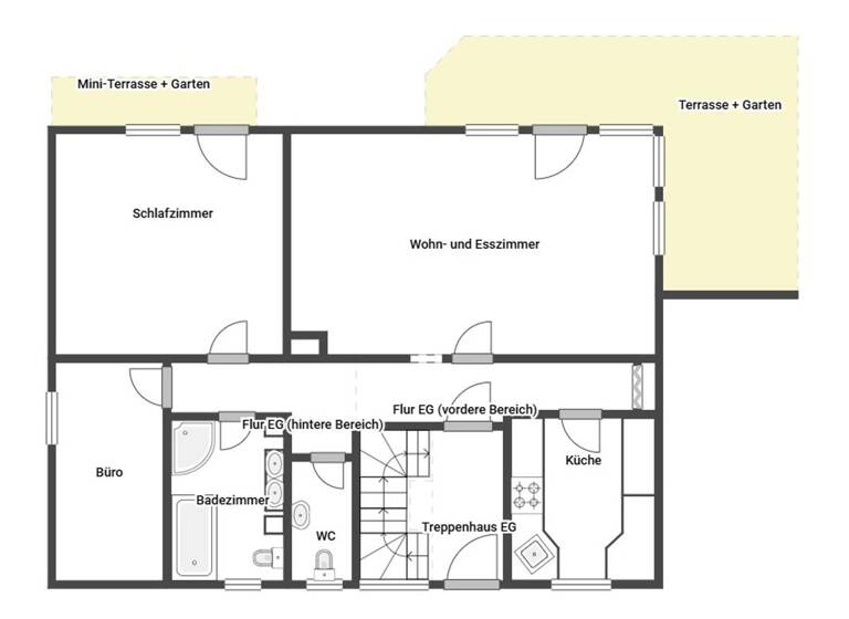
Die 2-stöckige Liegenschaft verfügt über eine vermietbare Fläche von insgesamt ca. 189,08 m², die 2 Wohneinheiten mit insgesamt 8 Zimmern umfasst. Die Ausstattung mit zwei Einbauküchen und zwei Bädern erleichtert den zukünftigen Bewohnern den Alltag.

Zur Regeneration lädt das ca. 710 m² große Grundstück ein. Punkten kann das Haus durch einen großen Garten sowie mit einer Terrasse (EG) und Dachterrasse (OG), der zahlreiche Möglichkeiten eröffnet. Das Haus ist unterkellert, sodass Sie über zusätzlichen Stauraum und ein Gästezimmer verfügen. Abschließend sorgen 5 Stellplätze (2 Garagenstellplätze + 3 Außenstellplätze) für eine entspannte Parksituation und runden so das Angebot ab.

Merkmale

  • Bezug: nach Absprache
  • 710 m² Grundstück
  • Einbauküche
  • Badezimmer: Badewanne, Bad mit Dusche
  • Keller
  • Terrasse
  • Garten
  • 5 Stellplätze
+ Wohnhaus mit 2 Einheiten in Fluorn-Winzeln (Ortsteil Fluorn); 2 Einbauküchen, 2 Bäder, .... alles vorhanden
+ Das Objekt präsentiert sich in einem gepflegten Zustand - Dachgeschoss ist ausbaufähig
+ Terrasse und Garten im Erdgeschoss, Dachterrasse (über Garagen) im Obergeschoss
+ Großer gepflegter Garten
+ 2 Garagenstellplätze, 3 Außenstellplätze

Grundrisse

Grundrisse
1 / 4

Virtueller Rundgang

3D tour

Realisiere Dein Projekt

Bausubstanz und Energie

Energieausweis

D
  • Baujahr2006
  • Zustand der ImmobilieGepflegt
  • HeizungsartZentralheizung
  • EnergieträgerSolar, Pellets
MediumRectangleTop

Preisdetails

Kaufpreis
495000 €
2.617,93 €/m²
Provision für Käufer
Die Provision i.H.v. 3,57 % inkl. MwSt. ist mit Kaufvertragsbeurkundung fällig, sofern der Verkaufspreis über 83.000,00 € liegt.

Liegt der Verkaufspreis dagegen bei/unter 83. Weitere Informationen siehe Provisionshinweis.
Geschätzte Gesamtkosten
529.749 €1
Kaufpreis
495.000 €
Notarkosten (1,5%)
7.425 €
Grunderwerbsteuer (5%)
24.750 €
Provision für Käufer (0,02%)
99 €
Grundbucheintrag (0,5%)
2.475 €
1Der angezeigte Wert ist eine automatisch berechnete Schätzung von immowelt.
2Bei den Angaben handelt es sich um ortsübliche Werte. Individuelle Kosten können abweichen.

Lage

address-icon
FluornFluorn-Winzeln (78737)
Der Anbieter hat die genaue Adresse nicht freigegeben
Lage: Attraktive Lage in Fluorn-Winzeln (Ortsteil Fluorn) mit besten Möglichkeiten für Eigennutzer oder Anleger
Bildung und Betreuung: Vor Ort für Bildung und Betreuung eine Grundschule und Kindergarten vorhanden
Nahversorgung: Spontan einkaufen dank Supermarkt und Bankfiliale in max. 800 m Entfernung
Anbindung: Nächste Bushaltestelle, nächster Bahnhof und nächste Autobahn komfortabel erreichbar

Weitere Informationen

Provisionshinweis Die Provision i.H.v. 3,57 % inkl. MwSt. ist mit Kaufvertragsbeurkundung fällig, sofern der Verkaufspreis über 83.000,00 € liegt.

Liegt der Verkaufspreis dagegen bei/unter 83.000,00 €, ist die fest vereinbarte Mindestprovision i.H.v. mind. 5.950,00 € inkl. MwSt. mit Kaufvertragsbeurkundung fällig. Die Mindestprovision fällt insg. nur einmal an, wodurch Verkäufer und Käufer die Mindestprovision dann jeweils mit 2.975,00 € inkl. MwSt. tragen. Sonstiges Vereinbaren Sie noch heute einen Besichtigungstermin!
_____________________________________________________

Alle Angaben sind ohne Gewähr und basieren ausschließlich auf Informationen, die uns von unserem Auftraggeber zur Verfügung gestellt wurden. Wir übernehmen keine Gewähr für die Vollständigkeit, Richtigkeit und Aktualität der Angaben. Stichworte Nutzfläche: 137,69 m², Gesamtfläche: 189,08 m², Anzahl der Schlafzimmer: 4, Anzahl der Badezimmer: 2, Anzahl Terrassen: 2, 2 Etagen

Weitere Services

Lust auf eine Besichtigung?
Eine Frage zur Immobilie?
Nachricht hinzufügen
Mit der Nutzung der oben angegebenen Telefonnummer oder durch Klicken auf „Kontaktieren“ akzeptierst Du die Allgemeinen Nutzungsbedingungen, denen Du jederzeit widersprechen kannst. Weitere Informationen zum Datenschutz

Über den Anbieter

Am Postbahnhof 17, 10243 Berlin
Ihr McMakler TeamDein Kontakt
Online-ID: 262IZMQNQJMQ
Referenznummer: 65c2ea9a7e
McMakler GmbH
McMakler GmbH
Nachricht hinzufügen
Mit der Nutzung der oben angegebenen Telefonnummer oder durch Klicken auf „Kontaktieren“ akzeptierst Du die Allgemeinen Nutzungsbedingungen, denen Du jederzeit widersprechen kannst. Weitere Informationen zum Datenschutz
MediumRectangleTop
MediumRectangleBottom
MediumRectangleTop
Wie zufrieden bist du mit dieser Seite (nicht mit der Immobilie selbst)?