Version: 8.26.0Navigation überspringen
148.000 €
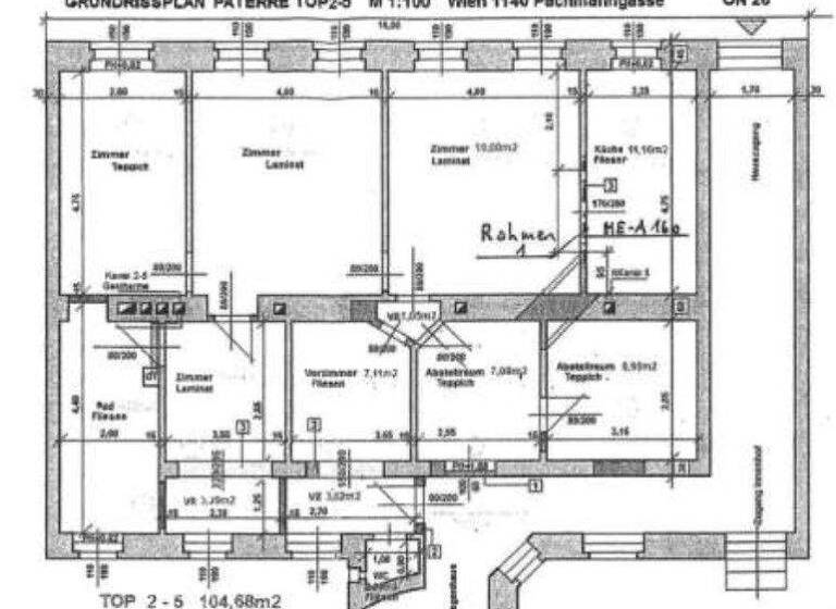
4 Zimmer  •  104,7 m²
Immowelt logo

Wohnung zum Kauf
148000 €
1.414 €/m²
4 Zimmer  •  104,7 m²

Investieren mit Weitblick - unbefristet vermietet zum Preis von € 1.400,-/m²

Solide Anlagechance unbefristet vermietete Altbauwohnung im 14. Bezirk!

Diese unbefristet vermietete Immobilie in der gut gelegenen Pachmanngasse bietet eine interessante Möglichkeit zur langfristigen Kapitalanlage in einem klassischen Wiener Gründerzeithaus.

Die rund 105 m² große Wohnung befindet sich im Erdgeschoss und überzeugt durch eine großzügige Raumaufteilung.

Die Details:

- Wohnungseigentumsobjekt
- 4 Zimmer, 1 Badezimmer, 2 Abstellräume
- Beheizung mittels Gasetagenheizung
- Unbefristet vermietet
(keine Eigennutzung; Alter des Bestandnehmers ca. 80 Jahre)
- Aktuelle monatliche Netto-Mieteinnahmen: € 237,03
(Betriebskosten nicht inkludiert)

Öffentlicher Verkehr:

Im Nahbereich der Liegenschaft befinden sich Stationen der folgenden öffentlichen
Verkehrsmittel:
- U-Bahnlinien: U4 Unter St. Veit
- S-Bahnlinien: S45 - Bhf Breitensee via Linie 49
- Straßenbahnlinien: 49, 52
- Buslinien: 47A, 51A

Diese Immobilie eignet sich ideal als langfristige Kapitalanlage mit solidem Entwicklungspotenzial in einem aufstrebenden Teil des 14. Bezirks.

Der Mindestkaufpreis für diese in ausgezeichneter Lage und Infrastruktur befindliche Eigentumswohnung beträgt Euro 148.000,-. Der Verkauf aus der gegenständlichen Konkursmasse erfolgt an die/den Höchstbietende(n).

Weiterführende Information, sowie das zugrundeliegende Sachverständigengutachten erhalten Sie unmittelbar nach Anfrage.

Wir möchten darauf hinweisen, dass unsere Antwort möglicherweise in Ihrem Spamordner landen könnte. Bitte kontrollieren Sie diesen, wenn Sie keine Rückmeldung auf Ihre Anfrage erhalten haben.

Merkmale

  • Bezug: nach Absprache
  • Personenaufzug
  • Keller
  • Bodenbelag: Parkett

Grundrisse

Grundrisse
1 / 1

Bausubstanz und Energie

Heizwärmebedarf (HWB)

E

Gesamtenergieeffizienz (fGEE)

E
  • Baujahr1913/Altbau
  • Zustand der ImmobilieAltbau (bis 1945)
  • HeizungsartEtagenheizung
  • EnergieträgerGas
Immowelt logo

Preisdetails

Kaufpreis
148000 €
1.413,83 €/m²
Provision für Käufer
3%
Weitere Preisinformationen

GrESt 3,5% + Grundbucheintragung 1,1% des Gesamtkaufpreises /
Vertragserrichtung 1,0% + Barauslagen, Beglaubigungskosten +USt. (Dr. Angela Steger; 1010 Wien, Rabensteig 1) / Provision 3% +USt. des Kaufpreises

Lage

address-icon
Wien (1140)
Der Anbieter hat die genaue Adresse nicht freigegeben

Weitere Informationen

Stichworte Anzahl der Badezimmer: 1

Weitere Services

Lust auf eine Besichtigung?
Eine Frage zur Immobilie?
Nachricht hinzufügen
Mit der Nutzung der oben angegebenen Telefonnummer oder durch Klicken auf „Kontaktieren“ akzeptierst Du die Allgemeinen Nutzungsbedingungen, denen Du jederzeit widersprechen kannst. Weitere Informationen zum Datenschutz

Über den Anbieter

Paulanergasse 15, 1040 Wien
partner badge
Partnerschaft
Frau Vivienne SpicakDein Kontakt
Keine Telefonnummer hinterlegt
Keine Telefonnummer hinterlegt
Online-ID: 242NGNUIHV2G
Referenznummer: 247/04390
Wie zufrieden bist du mit dieser Seite (nicht mit der Immobilie selbst)?