

Wohnung zum Kauf - Erstbezug481500 €5.427 €/m²3 Zimmer • 88,7 m² • EG
481500 €
5.427 €/m²
3 Zimmer • 88,7 m² • EG
Zentral. Zeitgemäß. Zuhause. (Angerweg 2 - Top 1)
Merkmale
- Erdgeschoss
- Personenaufzug
- Kelleranteil
- Terrasse
- Barrierefrei
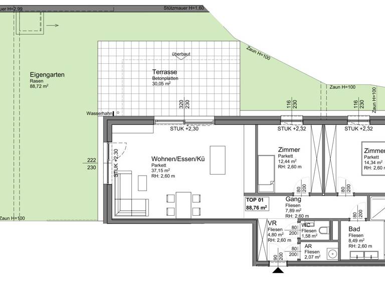
Grundrisse
Grundrisse
1 / 2
Realisiere Dein Projekt
Bausubstanz und Energie
Heizwärmebedarf (HWB)
B
Gesamtenergieeffizienz (fGEE)
- Baujahrca. 2025
- Zustand der ImmobilieMassivhaus, Erstbezug
- HeizungsartEtagenheizung
Preisdetails
Kaufpreis
481500 €
5.427,19 €/m²
Provision für Käufer
Bitte beachte, das Angebot kann bei Vertragsabschluss die Zahlung einer Provision beinhalten. Weitere Informationen erhältst Du vom Anbieter.
Lage

Ohlsdorf (4694)
Der Anbieter hat die genaue Adresse nicht freigegeben
Weitere Informationen
Weitere Services
Lust auf eine Besichtigung?
Eine Frage zur Immobilie?
Über den Anbieter
RE/MAX Traunsee Ges.m.b.H.Maklerbüro
Ebenzweierstr. 34, 4813 ALTMÜNSTER
10 Jahre Partnerschaft
Herr Christian SammerDein Kontakt
Online-ID: 2jvfk5j
Referenznummer: 1068/4954

RE/MAX Traunsee Ges.m.b.H.
Wie zufrieden bist du mit dieser Seite (nicht mit der Immobilie selbst)?

