
Greens Only Berlin GmbH
Herr Bodo Fischer
030 ···
Nr. anzeigenPreise & Kosten
Provision für Käufer
3,57%
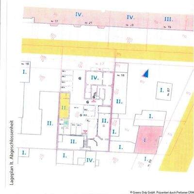
Lage
Berlin-Reinickendorf ist ein lebendiger und vielfältiger Bezirk im Nordwesten Berlins, der sich hervorragend für Unternehmen eignet. Die Lage zeichnet sich durch eine gute Anbindung an das Berliner Stadtzentrum sowie an die umliegenden Regionen aus. Mit mehreren Autobahnen, wie der A111, und gut ausgebauten öffentlichen...
Das Objekt
Baujahr
1900
Energie & Heizung
Warum sehe ich diese Anzeige? – Du siehst diese Anzeige basierend auf Ihrer Navigation auf unserer Website und den Suchkriterien, die du verwendet hast.
Weitere Energiedaten
Energieträger
Öl
Heizungsart
Zentralheizung
Details
Objektbeschreibung
Willkommen in dieser einzigartigen Trilogie aus drei charmanten Remisen im zentralen Berliner Norden, genauer gesagt im begehrten Stadtteil Reinickendorf. Diese drei Einheiten befinden sich in einer attraktiven Lage mit besten Verkehrsanbindungen, was sie sowohl für gewerbliche Nutzung als auch für zukünftige Umnutzungen...
Ausstattung
Neues Öl-Brennwertheizgerät von Viessmann aus dem Jahr 2024
Energieausweis ist beantragt
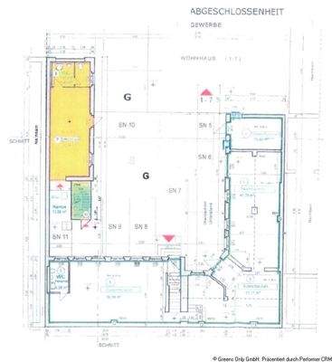
TE 8: 345,08m² MEA 288/1.000
inkl. Stellplätze: SN5 ; SN6 ; SN7 ; SN8 ; SN9 und SN10 Hoffläche
TE 9: 50,83m² MEA 42/1.000
WE 10: 46,22m² MEA...
Weitere Informationen
Sonstiges
Haftungsausschluss: Trotz sorgfältiger Bearbeitung von Daten und Informationen können wir keine Haftung für die Richtigkeit der Angaben übernehmen. Ebenso nicht für die Lieferfähigkeit des Angebotes bei Verkauf oder Vermietung.
Bitte geben Sie im Kontaktformular Ihren Namen, komplette Adresse und...
Anbieter der Immobilie

Greens Only Berlin GmbH
Brunsbütteler Damm 446, 13591 Berlin
Online-ID: 2me7j5m
Referenznummer: 101359
Finde Angebote wie dieses
Hier geht es zu unserem Impressum, den Allgemeinen Geschäftsbedingungen, den Hinweisen zum Datenschutz und nutzungsbasierter Online-Werbung.