Version: 8.25.1Navigation überspringen
423.800 €
5 Zimmer  •  152 m²  •  600 m² Grundstück
Immowelt logo

Einfamilienhaus zum Kauf • provisionsfrei
423800 €
2.788 €/m²
5 Zimmer  •  152 m²  •  600 m² Grundstück

Das perfekte Familienhaus auf einem 600 m² Grundstück.

Ideal für Familien und alle, die viel Platz brauchen: Auf fünf Zimmern bietet das Haus Signum viel Freiraum zur Entfaltung und maximale Geborgenheit.

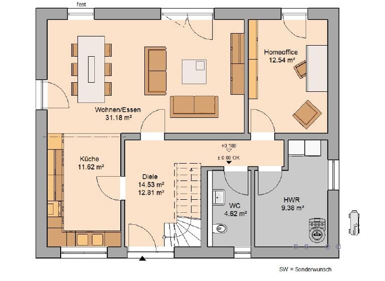
Im Erdgeschoss befindet sich die große Küche mit Blick zur Straße und das Wohn- und Esszimmer. Große Fensterelemente laden zum Gang in den Garten ein. Zudem bietet die Wohnebene ein Homeoffice, ebenfalls mit Zugang zum eigenen Garten, ein WC und einen geräumigen Hauswirtschaftsraum für die Technik.

Das Dachgeschoss beherbergt zwei Kinderzimmer, ein Elternschlafzimmer und - zentral gelegen - eine Ankleide. Die persönliche Wohlfühloase: das herrlich große Familienbadezimmer, in dem sich die ganze Familie entspannen kann!

Dieses Haus wird nach Ihren individuellen Wünschen geplant und ausgestattet!

Merkmale

  • 600 m² Grundstück
  • Badewanne
  • Gäste-WC
  • 2 Stellplätze
5 Zimmer, Küche, Diele, Flur, Bad, WC, Ankleide, Hauswirtschaftsraum

Das gezeigte Traumhaus im Überblick:

+ Schlüsselfertiges Massivhaus im Sinne der Ausstattungsbeschreibung "Easy"
+ Inklusive Bodenplatte

Beste Markenausstattung in jedem Kern-Haus:

+ Zimmermannsmäßiger Dachstuhl aus Konstruktionsvollholz
+ Dacheindeckung mit Betondachsteinen von Braas
+ Hochwertiger Kunstharz-Außenputz für eine langlebige Fassade
+ Vollständige Badausstattung von Villeroy & Boch mit Badewanne und flacher Duschwanne
+ Fliesen von Villeroy & Boch in Bad und WC
+ Haustür mit 3-fach-Sicherheitsverriegelung
+ Erstklassige Innentüren der Marke Herholz
+ Fenster mit 3-Scheiben-Wärmeschutzverglasung und Rollläden
+ Stahl-Holz-Treppe mit individueller Farbgestaltungsmöglichkeit
+ Elektroausstattung inklusive Klingelanlage
+ Rauchmelder für Ihre Sicherheit
+ Alle Leistungen aus einer Hand
+ Alle Planungs- und Architektenleistungen
+ Einsatz regionaler Handwerksbetriebe
+ Individuelle Anpassung auf Ihre Bedürfnisse
+ Auf Wunsch mit Keller erhältlich
+ Auf Wunsch mit weiteren Energietechniken erhältlich

Grundrisse

Grundrisse
1 / 2

Realisiere Dein Projekt

Bausubstanz und Energie

Energieausweis

Der Anbieter hat keine Daten zum Energieausweis hinterlegt.
  • Baujahr2026
  • Zustand der ImmobilieNeubau, Projektiert
  • HeizungsartZentralheizung: Fußbodenheizung
Immowelt logo

Preisdetails

Kaufpreis
423800 €
2.788,16 €/m²
Provision für Käufer
provisionsfrei
Geschätzte Gesamtkosten
453.466 €1
Kaufpreis
423.800 €
Notarkosten (1,5%)
6.357 €
Grunderwerbsteuer (5%)
21.190 €
Grundbucheintrag (0,5%)
2.119 €
1Der angezeigte Wert ist eine automatisch berechnete Schätzung von immowelt.
2Bei den Angaben handelt es sich um ortsübliche Werte. Individuelle Kosten können abweichen.

Lage

address-icon
LobensteinBad Lobenstein (07356)
Der Anbieter hat die genaue Adresse nicht freigegeben
Mitten im grünen Herzen Deutschlands zwischen Frankenwald, Thüringer Schiefergebirge und Saaletal erwartet Sie das idyllische Bad Lobenstein.
Erleben sie Kultur direkt vor Ihrer Haustür - die Burgruine Lobenstein befindet sich nur fünf Minuten zu Fuß entfernt und führt sie von dort aus in das grüne Zentrum, welches von allerlei Geschäften und gemütlichen Parks durchzogen ist. Sollte es Sie doch einmal in die Ferne ziehen, können Sie die 700m entfernte Bushaltestelle nutzen und sich in einen durch die L1 angebundenen Ort bringen lassen. Für mehr Alternativen können Sie den Busbahnhof oder auch den Bahnhof im Zentrum nutzen, der besonders gut an Saalfeld angebunden ist.
Das Grundstück selbst liegt in der Nähe eines kleinen Waldstückes und erlaubt die nötige Ruhe im Trubel der Stadt.

Weitere Informationen

Sonstiges Kern-Haus

Kern-Haus baut individuelle und massive Architektenhäuser zu einem attraktiven Preis-Leistungs-Verhältnis - und das bereits mit einer Erfahrung seit 1980.

Maximale Sicherheit bei Kern-Haus:
+ 10 Jahre Gewährleistung auf die wesentlichen Bauleistungen
+ Bis zu 24 Monate Festpreisbindung
+ 50 Jahre Gewährleistung auf das DuoTherm-Mauerwerk
+ Verbindliche Bauzeit
+ Zahlung nach Baufortschritt

Preise und Auszeichnungen von Kern-Haus:
- German Brand Award in den Jahren 2018 und 2021
- Hausbau Design Award: Sieger in den Jahren 2017, 2018, 2019, 2020, 2021, 2022 und 2023
- Deutscher Traumhauspreis: Sieger in den Jahren 2014, 2015, 2016 und 2018 und Silber 2017, 2020 und 2021
- Mittelstandspreis "Top 100" in den Jahren 2014, 2016, 2018, 2020 und 2022
- German Design Award im Jahr 2018

Weitere Informationen

Der gezeigte Preis versteht sich inklusive Grundstück und exklusive der Baunebenkosten.

Ihre Ansprechpartnerin Katrin Klein vom Kern-Haus-Team in Erfurt freut sich darauf Ihre Fragen zu beantworten. Jetzt anrufen: 0361 / 551450

Kern-Haus in Erfurt - https://www.kern-haus.de/erfurt/

Weitere Architektenhäuser - https://www.kern-haus.de/haeuser Stichworte Stellplatz vorhanden, Anzahl der Schlafzimmer: 5, Anzahl der separaten WCs: 1

Weitere Services

Lust auf eine Besichtigung?
Eine Frage zur Immobilie?
Nachricht hinzufügen
Mit der Nutzung der oben angegebenen Telefonnummer oder durch Klicken auf „Kontaktieren“ akzeptierst Du die Allgemeinen Nutzungsbedingungen, denen Du jederzeit widersprechen kannst. Weitere Informationen zum Datenschutz

Über den Anbieter

Gustav-Freytag-Straße 12, 99096 Erfurt
partner badge
Partnerschaft
Online-ID: 25T8AKG4GA7W
Referenznummer: KEF 73212
Kern-Haus AG, Niederlassung Erfurt
Kern-Haus AG, Niederlassung Erfurt
Nachricht hinzufügen
Mit der Nutzung der oben angegebenen Telefonnummer oder durch Klicken auf „Kontaktieren“ akzeptierst Du die Allgemeinen Nutzungsbedingungen, denen Du jederzeit widersprechen kannst. Weitere Informationen zum Datenschutz
Wie zufrieden bist du mit dieser Seite (nicht mit der Immobilie selbst)?