Version: 8.26.0Navigation überspringen
2.500 €
Immowelt logo

Büro zur Miete
2.500 €

Büro-Ordination Salzburg-Anif

Im Erdgeschoss des bereits von weitem sichtbaren Ge­bäudes befindet sich die angebotene Büro- bzw. Ordi­nationseinheit mit fünf vorgelagerten dieser zugeordneten Parkplätzen.

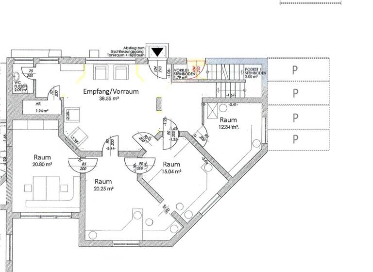
Die Räumlichkeiten im Ausmaß von ca. 210 m² erstre­cken sich über zwei (intern verbundene) Ebenen - Hoch­parterre und Tiefparterre - sie sind nach drei Seiten (NO, SO u. SW) orientiert.

Sie verfügen über gute Raumhöhen und schöne Ausbli­cke ins Grüne und zum Untersberg. Auch das Tiefpar­terre verfügt (mit Ausnahme der Nebenräume) über gute Tagesbelichtung. Die Beheizung erfolgt zentral, ebenso verfügen die wesentlichen Räume über neuwertige funk­gesteuerte Klimageräte.

Zuletzt waren die Räumlichkeiten als Arztpraxis genutzt und wurden für die Neuvermietung adaptiert. Die Räume verfügen über Holz- und Natursteinböden, in den Neben- u. Abstellräumen über PVC-Belag. Die beiden Ebenen sind auch mit einem Lastenaufzug verbunden, es besteht eine Alarmanlage, der Zugang ist mit Transponder Key sperrbar.

Ein Teil der Einrichtung sowie Einbauten sind noch vorhanden und könnten kostenfrei genützt werden, anderenfalls werden sie auf Wunsch entfernt.

Es ist die einzige gewerbliche Fläche im nur drei Einheiten umfas­senden Objekt. Die Liegenschaft wird vom Eigentümer verwaltet und weist somit eine schlanke Kostenstruktur und kurze Entscheidungs­wege auf. Die Betriebskosten-Akontierung wurde auf Basis eines Bürobetriebes inklusive Energiekosten (Heizung u. Warmwasser) mit EUR 550,- + USt. kalkuliert. Das Objekt ist parifiziert, die Verwaltung und jährliche Abrechnung erfolgt gemäß Wohnungseigentumsgesetz.

Der Vermittler ist als Doppelmakler tätig.

Infrastruktur / Entfernungen

Gesundheit
Arzt <500m
Apotheke <1.000m
Krankenhaus <4.500m
Klinik <4.000m

Kinder & Schulen
Schule <1.000m
Kindergarten <500m
Universität <3.000m
Höhere Schule <3.500m

Nahversorgung
Supermarkt <2.000m
Bäckerei <500m
Einkaufszentrum <4.500m

Sonstige
Bank <500m
Geldautomat <500m
Post <2.500m
Polizei <1.500m

Verkehr
Bus <500m
Autobahnanschluss <1.500m
Bahnhof <2.000m
Flughafen <7.000m

Angaben Entfernung Luftlinie / Quelle: OpenStreetMap

Merkmale

  • Bezug: ab sofort
  • 5 Stellplätze: 5 Außen-Stellplätze

Grundrisse

Grundrisse
1 / 2

Bausubstanz und Energie

Heizwärmebedarf (HWB)

C

Gesamtenergieeffizienz (fGEE)

C
Immowelt logo

Mietkosten

Nettokaltmiete
2.500 €
Betriebskosten
550 €
Provision für Mieter
3 Bruttomonatsmieten zzgl. 20% USt.
Kaution
3 Bruttomonatsmieten
Weitere Preisinformationen
5 Stellplätze
Nettokaltmiete: 2.500,00 EUR

Lage

address-icon
Anif (5081)
In bester Lage von Anif bei Salzburg befindet sich die villenartige Liegenschaft Dr.-Franz-Burda-Straße 6, die Lage an der Grünzone ist verkehrsfrei und ruhig.
Nur wenige Meter vom Ortskern (Gemeindeamt, Friesacher-Betriebe, Bushaltestelle, Bäcker, etc.) entfernt, endet die nur von Anrainern befahrene Straße nach etwa 200 m an der weitläufigen Grünzone als Sackgasse.
Die Autobahn (Knoten Salzburg-Süd) sowie die Salzburger Innenstadt sind in wenigen Minuten erreichbar. Anif verfügt über eine umfassende Infrastruktur mit sehr guten Restaurants, Cafés, Bäcker, Apotheke, Gartencenter, bis hin zu SPAR Express/Turmöl Tankstelle, Lidl und Maxi-Markt.

Weitere Informationen

Stichworte Stellplatz vorhanden, Nutzfläche: 210,00 m², Anzahl der separaten WCs: 2, Bundesland: Salzburg, 2 Etagen

Weitere Services

Lust auf eine Besichtigung?
Eine Frage zur Immobilie?
Mit einer persönlichen Nachricht hast du bessere Chancen auf eine Antwort.
Mit der Nutzung der oben angegebenen Telefonnummer oder durch Klicken auf „Kontaktieren“ akzeptierst Du die Allgemeinen Nutzungsbedingungen, denen Du jederzeit widersprechen kannst. Weitere Informationen zum Datenschutz

Über den Anbieter

Joseph-Messner-Str 8-14, 5020 SALZBURG
partner badge
Partnerschaft
Online-ID: 26KY3PABQYLL
Referenznummer: OBGC20260402094433346c6ae10b4d9
Wie zufrieden bist du mit dieser Seite (nicht mit der Immobilie selbst)?