Version: 8.26.0Navigation überspringen
Schwabenhaus Hamburg - Gunda Kuhlen -  Handelsvertretung für die Schwabenhaus GmbH
2.099 €
5 Zimmer  •  131 m²  •  760 m² Grundstück

Einfamilienhaus zur Miete - Erstbezug
2.099 €
5 Zimmer  •  131 m²  •  760 m² Grundstück

Einfamilienhaus zu mietähnlichen Konditionen - Bauen statt Mieten

Hier kannst du deine Miete in Eigentum umwandeln, denn jeder zahlt in seinem Leben mindestens EIN Haus, die Frage ist nun das Haus eines anderen oder endlich das eigene, denn es ist nie zu spät und selten zu früh. Unsere Immobilien können kombiniert werden mit Fördergeldern.
Dieses Objekt ist noch nicht gebaut und kann nicht besichtigt werden! Die Bilder zeigen ein Beispiel wie dein Traumhaus aussehen könnte. Andere Haustypen sind natürlich auch möglich!

Merkmale

  • 760 m² Grundstück
  • Gäste-WC
Hey! Das White&Black-Haus,, das hier geplant ist, ist offiziell als Nachhaltiges Gebäude zertifiziert und erhält dadurch eine exklusive Förderung von der KfW.

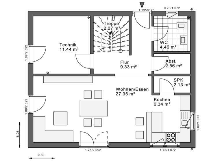
Grundrisse

Grundrisse
1 / 2

Bausubstanz und Energie

Möchtest du Details zum Energieverbrauch?info_energy_calculation-icon
  • Zustand der ImmobilieNeubau, Erstbezug
  • HeizungsartFußbodenheizung

Mietkosten

Kaltmiete
16,02 €/m²
2.099 €
Kaution
keine Angabe
Weitere Preisinformationen
Nettokaltmiete: 2.099,00 EUR

Lage

address-icon
Hartenholm (24628)
Der Anbieter hat die genaue Adresse nicht freigegeben
Dies ist ein real vorhandener Bauplatz, auf dem wir ein Beispiel Haus geplant haben.
Bitte haben Sie dafür Verständnis, dass wir die genaue Adresse erst in einem persönlichen Gespräch bekannt geben! Anfragen werden nur mit komplett angegebenen Kontaktdaten bearbeitet.

Weitere Informationen

Sonstiges Finanzierung ohne Eigenkapital möglich, bestehende Altschulden kein Hindernis, Bonität vorausgesetzt. Fragen Sie nach unserem Mietkaufmodell.
Bitte beachten Sie, dass die dargestellten Bilder und Grundrisse nur Beispiele sind. Zudem können sie Sonderbauteile sowie Sonderausstattungen enthalten, die nicht im Preis enthalten sind. Preise beinhalten keines Erwerbs- oder Baunebenkosten. Alle Angaben verstehen sich ohne Gewähr sowie unter Vorbehalt des Zwischenverkaufs. Preisbasis 2026. Stichworte Anzahl der Schlafzimmer: 2, Anzahl der Badezimmer: 1, Anzahl der separaten WCs: 1

Weitere Services

Lust auf eine Besichtigung?
Eine Frage zur Immobilie?
Mit einer persönlichen Nachricht hast du bessere Chancen auf eine Antwort.
Mit der Nutzung der oben angegebenen Telefonnummer oder durch Klicken auf „Kontaktieren“ akzeptierst Du die Allgemeinen Nutzungsbedingungen, denen Du jederzeit widersprechen kannst. Weitere Informationen zum Datenschutz

Über den Anbieter

Versmannstraße 54, 20457 Hamburg-Mitte
partner badge
Partnerschaft
Gunda KuhlenDein Kontakt
Online-ID: 265TXW7Q68KJ
Referenznummer: WB-33417
Wie zufrieden bist du mit dieser Seite (nicht mit der Immobilie selbst)?