Version: 8.26.0Navigation überspringen
493.968 €
5 Zimmer  •  151 m²  •  460 m² Grundstück
Immowelt logo

Doppelhaushälfte zum Kauf • provisionsfrei
493967.8 €
3.271 €/m²
5 Zimmer  •  151 m²  •  460 m² Grundstück

Verwirklichen Sie Ihre Wohnwünsche mit einem Ausbauhaus von Kern-Haus!

Ein perfektes Zuhause für die ganze Familie: Twin XXL steht für Freiraum und Wohnkomfort auf drei Ebenen - große Fenster verwandeln den Innenraum in ein helles Zuhause.

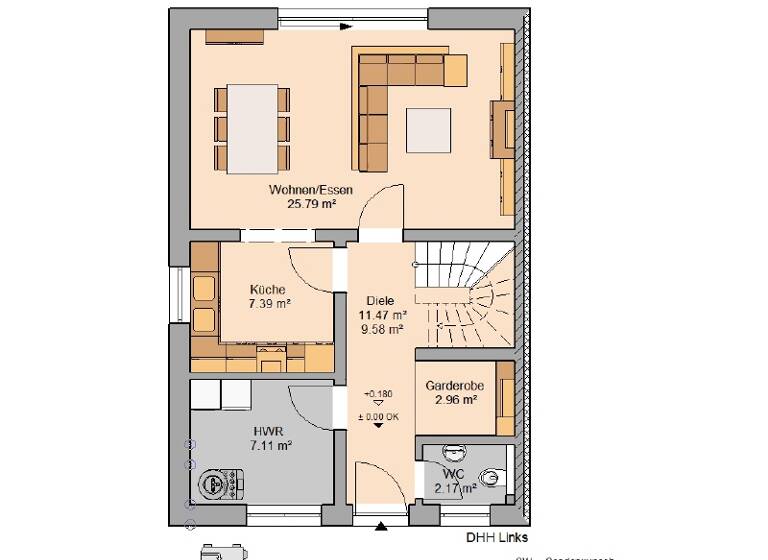
Im Erdgeschoss befinden sich neben Küche und Wohn-Esszimmer auch ein Gäste-WC, der Hauswirtschaftsraum und eine praktische Garderobe.

Das Obergeschoss beherbergt entweder ein großes Elternschlafzimmer mit Ankleide und ein Kinderzimmer (Variante links) oder drei Kinderzimmer (Variante rechts). Das Highlight ist ein großes Badezimmer für die ganze Familie.

Im Dachgeschoss befinden sich zwei weitere Räume wie z.B. ein Kinderzimmer und ein Studio. Die zweite Variante beinhaltet ein großes Elternschlafzimmer mit Ankleide und ein Studio. Ein zusätzliches Duschbad im Dachgeschoss ist auf Wunsch erhältlich.

Die Individualität spiegelt sich auch im Äußeren wider: Wählen Sie zwischen einer klassisch anmutenden oder einer modernen Variante oder entscheiden Sie selbst über Farben und Materialien der Fassade!

Dieses Haus wird nach Ihren individuellen Wünschen geplant und ausgestattet!

Merkmale

  • 460 m² Grundstück
  • 2 Stellplätze
5 Zimmer, Küche, Diele, WC, 2 x Flur, Bad, Hauswirtschaftsraum, Garderobe, Ankleide

Das gezeigte Traumhaus im Überblick:

+ Massivhaus als Ausbauhaus im Sinne der Bau- und Ausstattungsbeschreibung "Paulo"
+ Gebäudehülle ist für Effizienzhaus 40 optimiert
+ Inklusive Bodenplatte
+ Architekten- und Ingenieurleistungen (u. a. Bauantrag, Werkplanung, Statik und Wärmeschutzberechnung)
+ Zimmermannsmäßiger Dachstuhl aus Konstruktionsvollholz
+ Dacheindeckung mit Betondachsteinen von Braas mit Star-Oberfläche
+ Hochwertiger Kunstharz-Außenputz für eine langlebige Fassade
+ Haustür mit 5-fach-Sicherheitsverriegelung
+ Fenster mit 3-Scheiben-Wärmeschutzverglasung und Rollläden
+ Dachflächenfenster von Velux oder Roto
+ Granitaustrittsschwellen an bodengleichen Terrassentüren

Grundrisse

Grundrisse
1 / 3

Bausubstanz und Energie

Energieausweis

Der Anbieter hat keine Daten zum Energieausweis hinterlegt.
  • Baujahr2026
  • Zustand der ImmobilieNeubau, Projektiert
  • HeizungsartZentralheizung
Immowelt logo

Preisdetails

Kaufpreis
493967.8 €
3.271,31 €/m²
Provision für Käufer
provisionsfrei
Geschätzte Gesamtkosten
531.016 €1
Kaufpreis
493.968 €
Notarkosten (1,5%)
7.410 €
Grunderwerbsteuer (5,5%)
27.168 €
Grundbucheintrag (0,5%)
2.470 €
1Der angezeigte Wert ist eine automatisch berechnete Schätzung von immowelt.
2Bei den Angaben handelt es sich um ortsübliche Werte. Individuelle Kosten können abweichen.

Lage

address-icon
Struppen-SiedlungStruppen (01796)
Der Anbieter hat die genaue Adresse nicht freigegeben
Struppen ist eine Gemeinde im Landkreis Sächsische Schweiz-Osterzgebirge, Freistaat Sachsen.
Sie liegt in einem breiten Tal links der Elbe und gehört zur Verwaltungsgemeinschaft Königstein.
Die Gemeinde Struppen liegt rund 25 Kilometer elbaufwärts des Dresdner Stadtzentrums in der Sächsischen Schweiz.
Zwischen Stadt Wehlen, Rathen, Königstein und der Kreisstadt Pirna schmiegt sich das Gemeindegebiet an eine Elbschleife, ohne dabei den Flusslauf als Gemeindegrenze zu haben.
Vom Dresdner Zentrum bis zum Baugebiet benötigt man mit dem PKW ca. 25 bis 30 Minuten und aus der Neustadt ca. 40 Minuten.
Struppen ist an das S-Bahnnetz angeschlossen.
Vom Bahnhof Pirna bis zum Baugebiet ist eine Buslinie vorhanden.

Dieses kleines Baugebiet hat Bauplätze für 5 Einfamilien- und 2 Doppelhäuser.
Die hier angebotenen Grundstücke liegen an einer erschlossenen Straße.
Es können Häuser mit 1,5 bis 2 Geschossen errichtet werden.
In der Straße sind folgende Medien vorhanden:
Trinkwasserversorgung, Abwasser- und Regenwasserentsorgung, Strom und Telefon.
Das Gebiet liegt innerhalb eines Bebauungsplans. Die Bebauung kann mit Bauanzeige genehmigt werden.

Weitere Informationen

Sonstiges Kern-Haus

Kern-Haus baut individuelle und massive Architektenhäuser zu einem attraktiven Preis-Leistungs-Verhältnis - und das bereits mit einer Erfahrung seit 1980.

Maximale Sicherheit bei Kern-Haus:
+ 10 Jahre Gewährleistung auf die wesentlichen Bauleistungen
+ Bis zu 18 Monate Festpreisbindung
+ 50 Jahre Gewährleistung auf das DuoTherm-Mauerwerk
+ Verbindliche Bauzeit
+ Zahlung nach Baufortschritt

Preise und Auszeichnungen von Kern-Haus:
- German Brand Award in den Jahren 2018 und 2021
- Hausbau Design Award: Sieger in den Jahren 2017, 2018, 2019, 2020, 2021, 2022 und 2023
- Deutscher Traumhauspreis: Sieger in den Jahren 2014, 2015, 2016 und 2018 und Silber 2017, 2020 und 2021
- Mittelstandspreis "Top 100" in den Jahren 2014, 2016, 2018, 2020 und 2022
- German Design Award im Jahr 2018

Weitere Informationen

Der gezeigte Preis versteht sich inklusive Grundstück und exklusive der Baunebenkosten und bezieht sich auf die Variante links des Hauses.

Ihre Ansprechpartnerin Nicole Ulbricht vom Kern-Haus-Team in Dresden freut sich darauf Ihre Fragen zu beantworten. Jetzt anrufen: 0351 / 8391319 Stichworte Stellplatz vorhanden, Anzahl der Schlafzimmer: 4, Anzahl der separaten WCs: 1

Weitere Services

Lust auf eine Besichtigung?
Eine Frage zur Immobilie?
Nachricht hinzufügen
Mit der Nutzung der oben angegebenen Telefonnummer oder durch Klicken auf „Kontaktieren“ akzeptierst Du die Allgemeinen Nutzungsbedingungen, denen Du jederzeit widersprechen kannst. Weitere Informationen zum Datenschutz

Über den Anbieter

Am Sandberg 2, 01468 Moritzburg
Frau Nicole Ulbricht
Frau Nicole UlbrichtDein Kontakt
Online-ID: 25PM6U6V7WGA
Referenznummer: WDD 10347
Wie zufrieden bist du mit dieser Seite (nicht mit der Immobilie selbst)?