Version: 8.25.1Navigation überspringen
498.000 €
1.661,2 m² Lagerfläche
Immowelt logo

Werkstatt zum Kauf
498000 €
1.661,2 m² Lagerfläche

Gewerbeflächen in ansprechendem Gewerbekomplex zu verkaufen

Gut sichtbar, direkt an der stark frequentierten östlichen Ortseingangsstraße von Naumburg steht ein denkmalgeschützter, zweigeschossigen Gewerbekomplex, in dem Sie noch freie Gewerbeflächen ankaufen können.

Grundriss, Ausstattung und Größe der Fläche -von ca. 270m² bis ca. 2.300m²- sind frei wählbar.

Die Außenfassade, die Fenster und das Dach werden vom Eigentümer denkmalgerecht saniert. Die Baukosten hierfür werden dem im Exposé genannten Ankaufspreis noch aufgeschlagen und sind nicht im Kaufpreis enthalten.
Gern übernimmt der Eigentümer auch den Innenausbau sowie den Einbau neuer Fenster Ihren Wünschen entsprechend gegen Kostenübernahme.
Auf dem Grundstück stehen Flächen zur Errichtung von Kfz-Stellplätzen zur Verfügung.

Dienstleister, Handel, Kleingewerbetreibende, Versicherungsbüros etc. können sich in diesem Gewerbekomplex ansiedeln.

Beispielhaft bieten wir Ihnen hier eine Fläche von ca. 1.661m² im linken Gebäudeteil über zwei Etagen an.

Die Grundstücksfläche beträgt gemäß beigefügten Lageplan ca.1.900m².

Merkmale

  • Kein Keller
  • Raumaufteilung flexibel

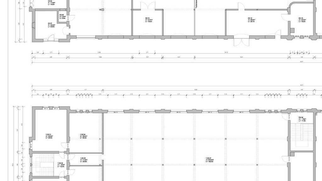
Grundrisse

Verschaffe dir einen genauen Überblick über die Raumaufteilung.selection_property_house-icon

Realisiere Dein Projekt

Bausubstanz und Energie

Energieausweis

Ein Energieausweis ist für diesen Gebäudetyp nicht notwendig.
Immowelt logo

Preisdetails

Kaufpreis
498000 €
Provision für Käufer
Bitte beachte, das Angebot kann bei Vertragsabschluss die Zahlung einer Provision beinhalten. Weitere Informationen erhältst Du vom Anbieter.
Geschätzte Gesamtkosten
498.000 €1
Kaufpreis
498.000 €
1Der angezeigte Wert ist eine automatisch berechnete Schätzung von immowelt.

Lage

address-icon
Naumburg (06618)
Der Anbieter hat die genaue Adresse nicht freigegeben
Verkehrsgünstig sehr gut gelegen, Richtung östlichem Ortsausgang von Naumburg, direkt an der B180. In nur 15min erreicht man die Autobahnauffahrt A9 Richtung Leipzig und Berlin bzw. München.

Weitere Informationen

Sonstiges Mit diesem Exposé bieten wir Ihnen das Objekt an. Sämtliche Angaben in dieser Offerte beruhen auf Aussagen des Verkäufers. Bei aller Sorgfalt können wir keine Gewähr dafür übernehmen, dass alle Angaben richtig sind und das Objekt im Augenblick des Zugangs dieser Offerte noch verfügbar ist. Wir bitten um Verständnis, dass wir nur vollständig ausgefüllte Kontaktanfragen beantworten können.
Es fällt keine Käuferprovision an. Stichworte Lagerfläche: 1.661,20 m², Nutzfläche: 1.661,20 m², Gesamtfläche: 1.661,20 m²

Weitere Services

Lust auf eine Besichtigung?
Eine Frage zur Immobilie?
Nachricht hinzufügen
Mit der Nutzung der oben angegebenen Telefonnummer oder durch Klicken auf „Kontaktieren“ akzeptierst Du die Allgemeinen Nutzungsbedingungen, denen Du jederzeit widersprechen kannst. Weitere Informationen zum Datenschutz

Über den Anbieter

Marienring 1, 06618 Naumburg (Saale)
partner badge
Partnerschaft
Herr Tobias MierschDein Kontakt
Online-ID: 235ZDPS2RGB7
Referenznummer: RY090
Tobias Miersch Immobilienservice e.K.
Tobias Miersch Immobilienservice e.K.
Bewertung: 5 von 5 Sternen
Nachricht hinzufügen
Mit der Nutzung der oben angegebenen Telefonnummer oder durch Klicken auf „Kontaktieren“ akzeptierst Du die Allgemeinen Nutzungsbedingungen, denen Du jederzeit widersprechen kannst. Weitere Informationen zum Datenschutz
Wie zufrieden bist du mit dieser Seite (nicht mit der Immobilie selbst)?